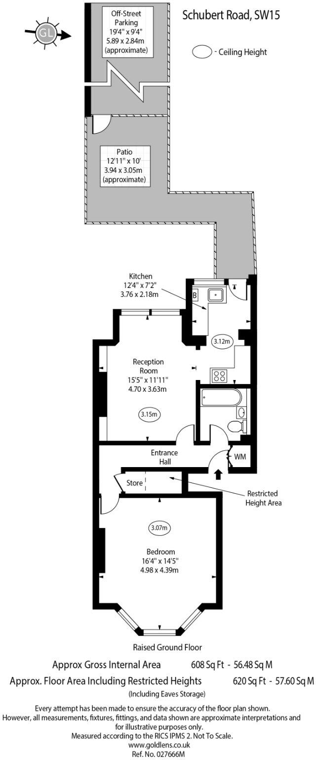
Bright newly renovated one-bedroom with patio and private parking in East Putney.
One double bedroom with large bay window and built-in storage
Private rear patio with pedestrian gate to off-street parking
Newly renovated kitchen and bathroom; move-in ready
Share of freehold with 108 years remaining on the lease
High ceilings and period features throughout
Service charge approximately £2,548 (average)
Solid-brick walls assumed uninsulated — potential heating inefficiency
Average broadband speeds; excellent mobile signal
A bright, newly renovated one-bedroom ground-floor flat that blends Victorian character with contemporary finish. High ceilings, bay windows and original mouldings give the principal rooms a spacious feel, while the updated kitchen and bathroom make the apartment move-in ready.
Outdoor space and practical city living combine here: a private patio leads to an off-street parking space accessed via a pedestrian gate onto Manfred Road. The flat comes with a share of freehold and a long lease (108 years), making it a straightforward option for first-time buyers or professionals seeking a low-hassle central Putney home.
Notable running costs and fabric notes are upfront: the Service Charge is £2,548 (average) and the building’s solid-brick walls are assumed to lack cavity insulation, which could mean higher heating demand despite the mains-gas boiler and double glazing. Broadband speeds are average. Overall this is a characterful, convenient property with clear potential to personalise and potentially reduce running costs with targeted insulation work.
1 bedroom apartment for sale in Schubert Road, Putney, London, SW15 — £575,000 • 1 bed • 1 bath • 637 ft²
2 bedroom flat for sale in Schubert Road,
East Putney, SW15 — £650,000 • 2 bed • 1 bath • 765 ft²
2 bedroom flat for sale in Schubert Road, Putney, London, SW15 — £700,000 • 2 bed • 1 bath • 763 ft²
1 bedroom flat for sale in Upper Richmond Road, London, SW15 — £450,000 • 1 bed • 1 bath • 517 ft²
1 bedroom flat for sale in Carlton Drive, London, SW15 — £475,000 • 1 bed • 1 bath • 708 ft²
2 bedroom flat for sale in Schubert Road, Putney, SW15 — £525,000 • 2 bed • 1 bath • 668 ft²


































