Bright, well-located home near Pinner Station and local amenities.
Share of freehold with 229-year lease remaining
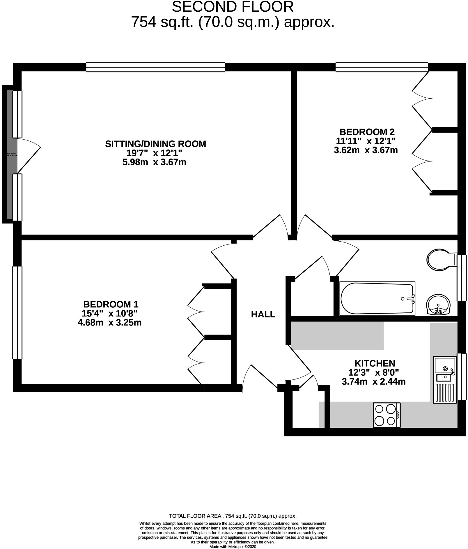
754 sq ft two-bedroom layout, practical for family living
Bright open-plan living/dining with parquet flooring
Modern kitchen and contemporary bathroom, move-in ready
Allocated parking and small communal garden space
Approximately 8-minute walk to Pinner Station, strong transport links
Service charge ~£1,200pa and moderate council tax
Average broadband and mobile signal — not for heavy remote workers
Set within a small, well-maintained block in Pinner, this two-bedroom flat offers practical family living with good transport links. The open-plan reception room with large windows and parquet flooring creates a bright, flexible living and dining space. The modern kitchen and contemporary bathroom offer move-in-ready convenience.
The apartment is an average-sized 754 sq ft with two double bedrooms and a long lease (229 years) under a share of freehold tenure, giving security and low long-term ownership cost. Allocated parking and a small communal garden add outside space, while Pinner Station is an approximately eight-minute walk away, convenient for commuters.
Costs are straightforward: an annual service charge around £1,200 and moderate council tax. Broadband and mobile signals are average locally. The building is set in a generally affluent, low-crime area with good local schools and plentiful amenities nearby.
This property suits a family or commuter couple seeking a low-maintenance, well-located flat with potential to personalise. It’s not a large home, and buyers seeking generous outdoor space or high-speed connectivity should note the average broadband and modest communal garden.
2 bedroom apartment for sale in Exchange Walk, Pinner, HA5 — £349,950 • 2 bed • 2 bath • 669 ft²
2 bedroom flat for sale in Exchange Walk, Pinner, HA5 — £375,000 • 2 bed • 1 bath • 577 ft²
2 bedroom ground floor flat for sale in Pinner Grove, Pinner, HA5 — £310,000 • 2 bed • 1 bath
2 bedroom apartment for sale in Elm Park Road, Pinner, HA5 — £400,000 • 2 bed • 1 bath • 605 ft²
2 bedroom flat for sale in Uxbridge Road, Pinner, HA5 — £400,000 • 2 bed • 1 bath • 664 ft²
2 bedroom apartment for sale in Pinner Grove, Pinner, HA5 — £285,000 • 2 bed • 1 bath • 750 ft²






























