Sunlit rooms and park views ideal for growing families seeking space and parking.
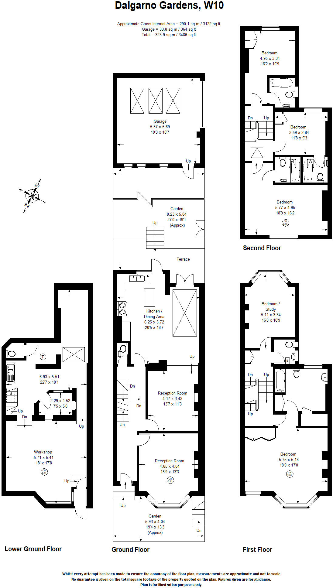
Approximately 3,100 sq ft across multiple floors
Five bedrooms, four bathrooms; principal en-suite and three further en-suites
South-facing landscaped garden with park views from principal bedroom
Double garage for two cars with electric shutters, Brewster Gardens access
Lower-ground workshop with separate front access and laundry/WC
Retained Victorian features: high ceilings, bay windows, cornicing
Small plot in a constrained inner-city neighbourhood; limited external space
Local area: very deprived; council tax described as quite expensive
This substantial Victorian end-of-terrace offers generous family accommodation across approximately 3,100 sq ft with far-reaching park views and a sunny, south-facing garden. Two reception rooms and an extended open-plan kitchen/family area provide flexible living and entertaining space, while five bedrooms (four bathrooms) suit a growing household and guests.
Practical strengths include a double garage with electric shutters accessed from Brewster Gardens, a lower-ground workshop with separate street access and plentiful storage, plus fast broadband and excellent mobile signal. The house retains attractive period features — high ceilings, bay windows and cornicing — alongside modern kitchen fittings and skylights.
Buyers should note this is a freehold property on a relatively small plot in a constrained, inner-city neighbourhood with significant local deprivation. Council tax is described as quite expensive. Period maintenance and ongoing upkeep of original features should be factored into budgets.
Positioned within walking distance of parks, schools, shops and White City station, this home will appeal to families wanting generous internal space, outdoor and off-street parking, and strong links to central London amenities.
5 bedroom house for sale in St. Quintin Gardens, North Kensington, W10 — £4,000,000 • 5 bed • 3 bath • 3289 ft²
5 bedroom house for sale in St. Lawrence Terrace, North Kensington, W10 — £4,350,000 • 5 bed • 4 bath • 3000 ft²
6 bedroom terraced house for sale in Dalgarno Gardens, North Kensington, W10 — £2,850,000 • 6 bed • 2 bath • 2447 ft²
5 bedroom house for sale in Barlby Road,
North Kensington, W10 — £1,950,000 • 5 bed • 3 bath • 1927 ft²
3 bedroom terraced house for sale in Highlever Road, London, W10 — £1,495,000 • 3 bed • 2 bath • 1344 ft²
3 bedroom terraced house for sale in Scarsdale Villas, London, W8 — £5,495,000 • 3 bed • 3 bath • 2600 ft²


































































