Move-in ready two-bedroom home with parking and wraparound gardens..
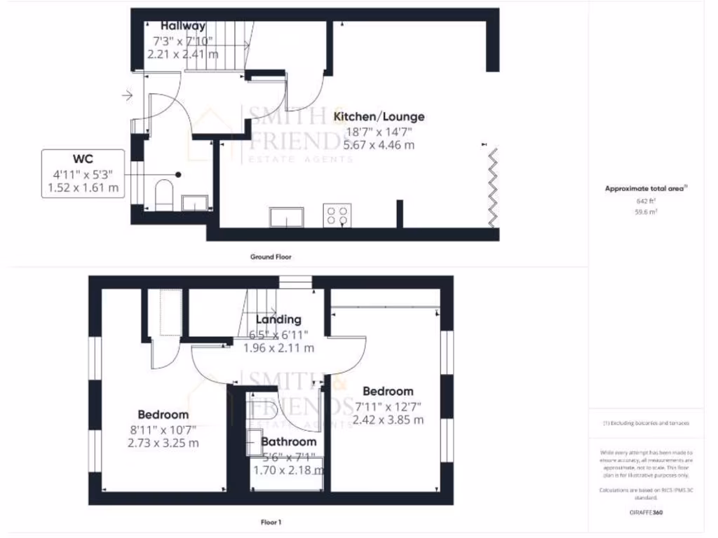
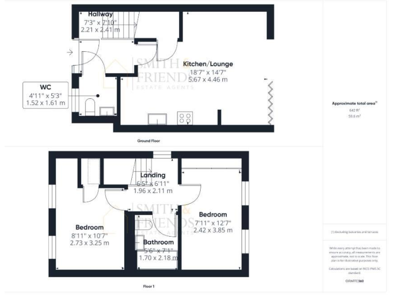
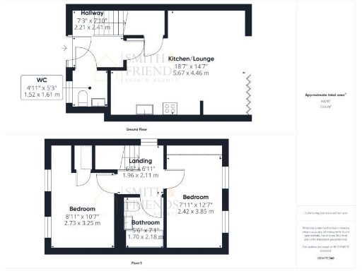
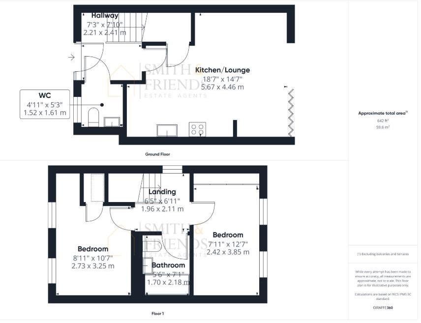
End-of-terrace two-bedroom home on a corner plot
Move-in ready with fitted kitchen and integrated appliances
Two double bedrooms and contemporary family bathroom
Downstairs cloakroom for extra convenience
Wraparound gardens but overall plot and house are small
Off-street parking and double glazing; gas central heating
Modest total floor area ~595 sq ft; average room sizes
Low crime area, fast broadband, no flood risk
This end-of-terrace, two-bedroom home on a corner plot is a practical, move-in ready option for first-time buyers or professionals. The bright open-plan living space and fitted kitchen with integrated appliances suit everyday life and occasional entertaining, while a downstairs cloakroom adds useful practicality.
Both bedrooms are double-sized and share a contemporary family bathroom; the home benefits from double glazing, gas central heating and off-street parking. The wraparound gardens give a sense of outdoor space unusual for a property of this footprint, and the property sits in a generally affluent, low-crime area with fast broadband and good mobile signal.
Be aware the overall internal size is modest at about 595 sq ft and the plot is small. Room sizes and ceiling heights are average, so storage and layout flexibility are more limited than in larger family homes. There are no reported flooding risks and council tax is low, making running costs comparatively affordable.
2 bedroom end of terrace house for sale in Meadowsweet Lane, Stockton-on-Tees, Durham, TS19 — £140,000 • 2 bed • 2 bath • 632 ft²
2 bedroom end of terrace house for sale in Newton Way, Stockton-On-Tees, TS20 — £160,000 • 2 bed • 2 bath • 621 ft²
2 bedroom end of terrace house for sale in Aristotle Drive, Stockton-on-Tees, TS19 — £120,000 • 2 bed • 1 bath • 646 ft²
2 bedroom terraced house for sale in Hazelwood Gardens, Eston, TS6 — £129,950 • 2 bed • 2 bath • 636 ft²
2 bedroom end of terrace house for sale in Bamburgh Drive, Ormesby, Middlesbrough, TS7 — £110,000 • 2 bed • 1 bath • 786 ft²
2 bedroom end of terrace house for sale in Low Gill View, Marton, TS7 — £165,000 • 2 bed • 2 bath • 700 ft²














































