Characterful three-bedroom barn with large gardens and double garage, chain free.
Three-bedroom attached barn conversion with exposed beams and vaulted ceilings
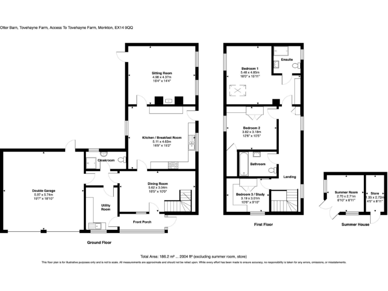
A substantial three-bedroom attached barn conversion set within 0.68 acres in the Blackdown Hills Area of Outstanding Natural Beauty. The property combines exposed beams and vaulted ceilings with contemporary conveniences — a light-filled sitting room with multi-fuel stove, a generous kitchen/breakfast room and a glazed entrance porch that welcomes natural light. Solar panels and double glazing contribute to energy efficiency, while the oil-fired boiler and radiators provide primary heating.
The layout suits family life and flexible working: three first-floor bedrooms including a vaulted master with ensuite, a ground-floor shower room, a large utility room and internal garage access. Mature, well-planned gardens provide several outdoor zones — patio from the sitting room, lawns, vegetable beds, fruit trees, a summerhouse and a stream-crossing feature — ideal for children, hobbies or entertaining. A gravelled driveway offers ample parking for multiple vehicles plus the double garage.
Practical considerations are straightforward and important to note. The main heating fuel is oil, which can mean higher running costs and periodic deliveries. The installation date for glazing is not specified. The property sits in a remote hamlet setting with excellent mobile and broadband, but local services are limited and the nearest larger town (Honiton) is nearly two miles away. Crime levels in the immediate area are reported as high, which may concern some buyers.
Offered chain-free, this house will appeal to buyers seeking a sizeable, character-filled country home with ready outdoor space. It is particularly suitable for families wanting rural living within driving distance of Honiton and the A30, or for those seeking a quiet country retreat with good connectivity for remote work. Some minor updating may tailor the house to modern tastes, but the structural character and large plot are key long-term assets.
4 bedroom barn conversion for sale in Bishopswood, Chard, Somerset, TA20 — £795,000 • 4 bed • 2 bath • 3213 ft²
2 bedroom barn conversion for sale in Ottery St Mary, Devon, EX11 — £475,000 • 2 bed • 2 bath • 1494 ft²
4 bedroom barn conversion for sale in Farringdon Lane, North Petherton, Bridgwater, Somerset, TA6 — £929,950 • 4 bed • 3 bath • 2575 ft²
5 bedroom detached house for sale in Northleigh, Colyton, Devon, EX24 — £950,000 • 5 bed • 5 bath • 3669 ft²
3 bedroom terraced house for sale in Orchards Farm, Buckerell, Honiton, EX14 — £400,000 • 3 bed • 1 bath • 1498 ft²
4 bedroom detached house for sale in Monkton, Honiton, Devon, EX14 — £690,000 • 4 bed • 2 bath • 1480 ft²


























































































































































