Sun-filled inner-city home with exceptional private outdoor space and strong transport links.
- Private large roof terrace plus separate balcony
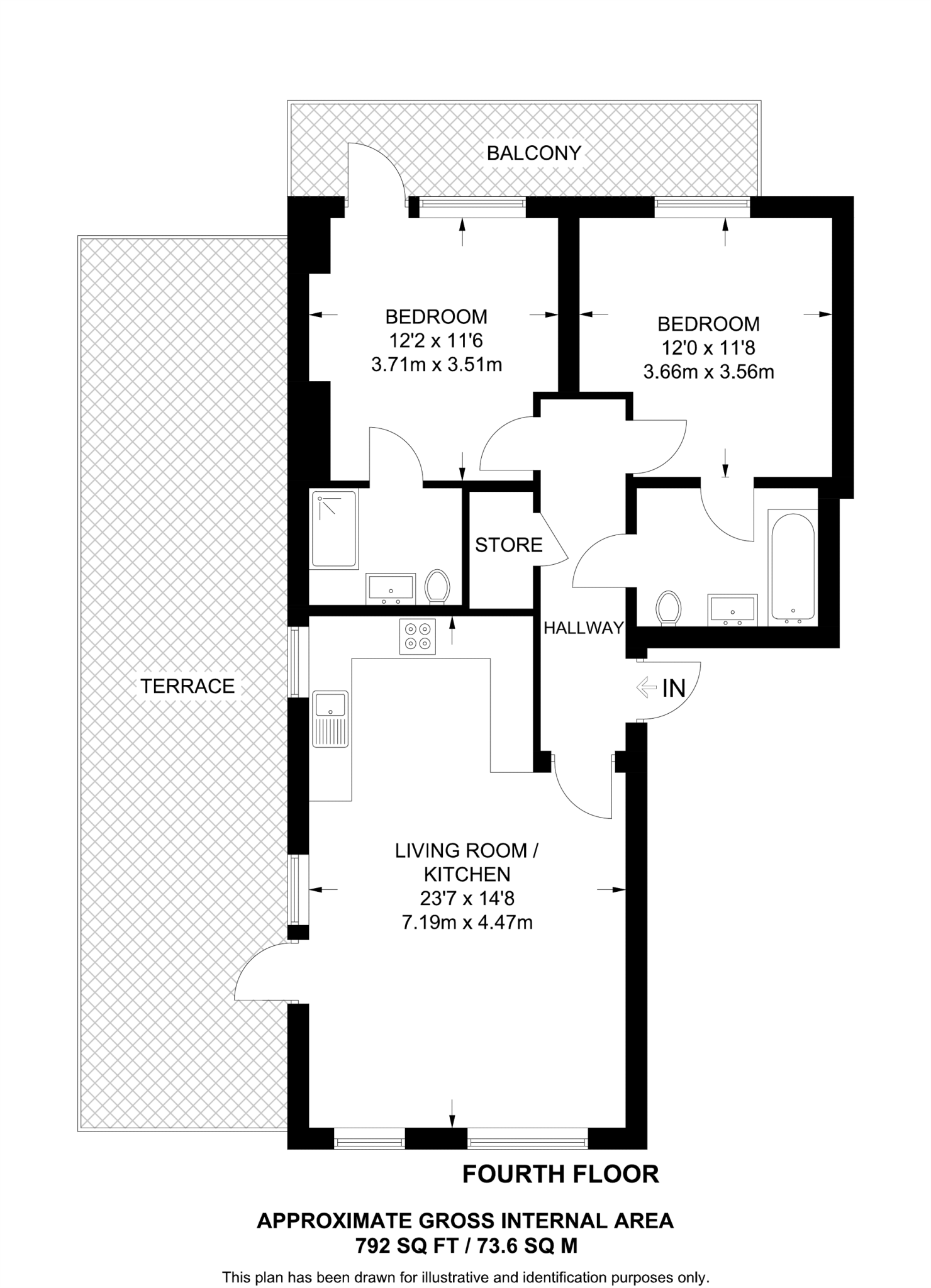
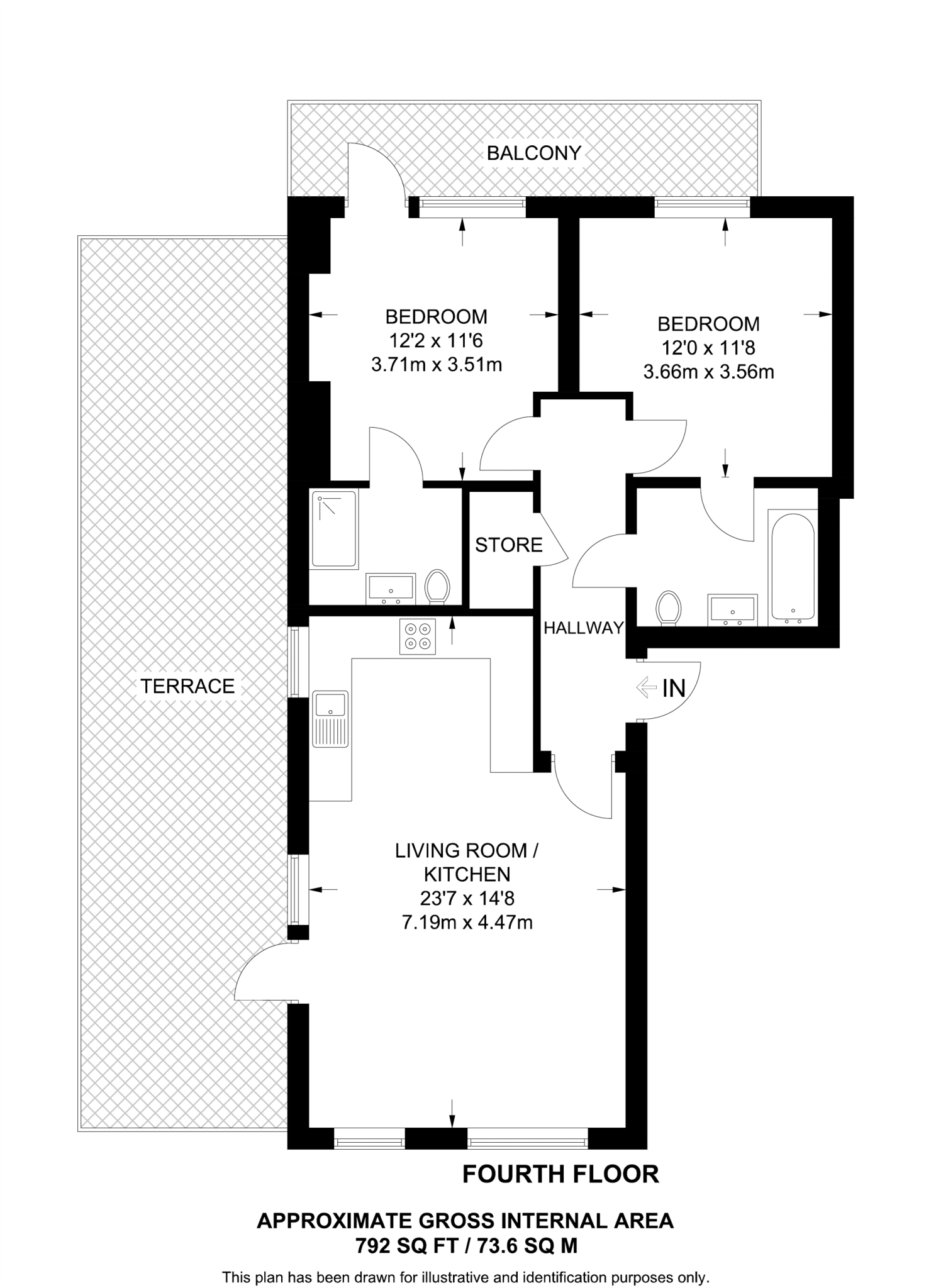
Bright, modern two-bedroom flat arranged around a sunny open-plan reception and fully fitted kitchen. The property benefits from a large private roof terrace plus a separate balcony, providing rare outdoor space for inner-city living. Two sleek bathrooms and good storage make it practical for a couple or small family.
Set within a gated development with landscaped shared gardens and very low local crime, the home sits close to Bartlett Park, Limehouse Cut and Mile End Park leisure facilities. Strong transport links (Langdon Park and Mile End stations nearby) and several well-rated primary and secondary schools make this a convenient family location.
Practical details: the flat is leasehold with 241 years remaining, a community heating system and average-sized 792 sq ft accommodation. Annual service charge around £2,890 and ground rent circa £496 — factor these costs into running expenses. Note the wider area is classified as very deprived, which affects local services and long-term socio-economic indicators despite low crime.
Overall this apartment offers immediate move-in comfort, generous private outdoor space and excellent connectivity. It suits buyers wanting modern, low-maintenance living with strong outdoor amenity, but budget-conscious purchasers should account for service charges and communal heating arrangements.
2 bedroom flat for sale in Celestial House, Tower Hamlets, London, E14 — £425,000 • 2 bed • 1 bath • 670 ft²
2 bedroom flat for sale in Upper North Street, Tower Hamlets, London, E14 — £500,000 • 2 bed • 2 bath • 972 ft²
2 bedroom flat for sale in Casson Apartments, E14, Tower Hamlets, London, E14 — £475,000 • 2 bed • 2 bath • 829 ft²
2 bedroom flat for sale in Palmers Road, Mile End, E2 — £500,000 • 2 bed • 1 bath • 707 ft²
2 bedroom flat for sale in Candle Street, Stepney, London, E1 — £425,000 • 2 bed • 1 bath • 651 ft²
2 bedroom flat for sale in Geoff Cade Way, E3, Bow, London, E3 — £550,000 • 2 bed • 2 bath • 877 ft²






































































































































































































































































































































