First-floor apartment with en-suite and generous living space in desirable Chesham.
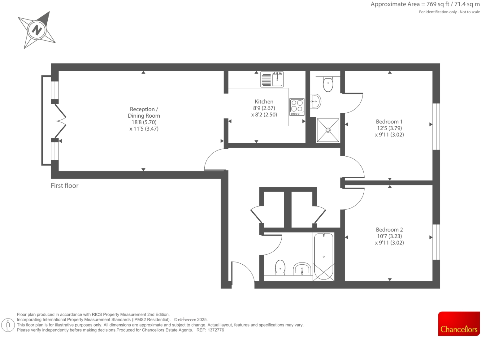
- Two double bedrooms, main with en-suite
- Spacious interior: approx. 769 sqft (over 760 sqft)
- First-floor apartment in sought-after Chesham location
- Chain free; long-term tenant in situ
- Lease 76 years remaining — lenders may refuse mortgages
- Service charge approx. £2,200 per annum
- Electric storage heating; double glazing pre-2002
- Medium flood risk and higher local crime level
Set on the south side of Chesham in a sought-after development, this first-floor two-bedroom apartment offers a generous living space of approximately 769 sqft and comes to market chain free. The main bedroom benefits from an en-suite, there is a separate family bathroom and the property has been kept in good decorative order by a long-term tenant. The layout suits a couple or sharers and offers straightforward, low-maintenance living.
Practical details: the building dates from the 1980s, has double glazing installed before 2002 and electric storage heating. Annual service charge is around £2,200 and the lease runs for 76 years from 2002. Because of the remaining lease length, some mortgage lenders may refuse to lend; cash buyers or specialist lending advice will be needed.
Location strengths include proximity to good local schools (including Chesham Grammar and Dr Challoner's) and a range of nearby amenities. Broadband speeds are average and mobile signal is excellent. There is a medium flood risk for the area and a higher local crime level; these are important factors to consider alongside the home's practical benefits.
This apartment represents a sensible buy for someone able to proceed without standard mortgage reliance — either a cash purchaser or an investor familiar with lease considerations. The property is liveable as-is and provides scope for modest modernisation to boost appeal and rental value.
2 bedroom flat for sale in Waterside, Lordsmill Court Waterside, HP5 — £280,000 • 2 bed • 2 bath • 667 ft²
2 bedroom apartment for sale in Hospital Hill, Chesham HP5 — £235,000 • 2 bed • 1 bath • 463 ft²
2 bedroom flat for sale in Red Lion Street, Chesham, HP5 — £330,000 • 2 bed • 2 bath • 570 ft²
2 bedroom flat for sale in Severalls Avenue, Chesham, HP5 — £325,000 • 2 bed • 2 bath • 724 ft²
2 bedroom flat for sale in Chesham, Buckinghamshire, HP5 — £260,000 • 2 bed • 2 bath • 678 ft²
2 bedroom flat for sale in Chesham, Buckinghamshire, HP5 — £250,000 • 2 bed • 1 bath • 548 ft²














































































