Chain-free bungalow with garage, garden and scope to personalise on a decent plot.
Detached three-bedroom bungalow with single-level living
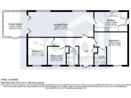
A detached three-bedroom bungalow on Main Road, offered chain-free and presenting straightforward, single-level living. The property has a long lounge/diner, a modern fitted kitchen with integrated appliances, a conservatory and a primary bedroom with ensuite — practical features for families or downsizers wanting immediate comfort.
The house sits on a decent plot with a rear garden and decking area, garage and driveway for private parking. Built in the early 1990s with a timber-frame construction and additional insulation, the home benefits from double glazing, mains gas central heating and fast broadband — conveniences for everyday life and working from home.
This is a sensible project for buyers looking to personalise: the layout is sound but the bungalow is presented as a blank canvas, offering scope to update finishes and add value. Note the local context — the area is classified as deprived with average crime levels and one nearby secondary school rated Inadequate — factors to weigh for families considering schooling and community services.
Practical positives include no flood risk, affordable council tax, and good local amenities within walking distance plus regular bus services and easy A38 access. Buyers should be aware of the timber-frame build (early 1990s) when considering long-term maintenance or insurance, and that some cosmetic and possible system updates may be desirable to maximise the property’s potential.
3 bedroom detached bungalow for sale in Meadow Farm View, Kirkby-In-Ashfield, Nottingham, NG17 — £270,000 • 3 bed • 1 bath • 1141 ft²
3 bedroom bungalow for sale in York Grove, Kirkby-in-Ashfield, Nottingham, Nottinghamshire, NG17 — £240,000 • 3 bed • 1 bath • 792 ft²
3 bedroom detached bungalow for sale in Sutton Middle Lane, Kirkby-In-Ashfield, Nottingham, NG17 — £237,500 • 3 bed • 1 bath • 804 ft²
2 bedroom detached bungalow for sale in Hartley Road, Kirkby-in-ashfield, NG17 — £210,000 • 2 bed • 1 bath • 747 ft²
3 bedroom bungalow for sale in Sutton Road, Kirkby-in-Ashfield, Nottingham, Nottinghamshire, NG17 — £240,000 • 3 bed • 1 bath • 1150 ft²
3 bedroom bungalow for sale in Greenacres, Kirkby-in-Ashfield, Nottingham, Nottinghamshire, NG17 — £200,000 • 3 bed • 2 bath • 958 ft²






















































