**Standout Features:**
- **Three bedrooms** with good-sized dimensions, ideal for families or investors
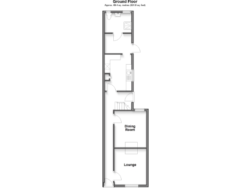
- **Spacious living areas**: separate lounge and dining room
- **Generous rear garden** perfect for outdoor activities and potential landscaping
- **Freehold tenure** offering permanent ownership
- **In need of updating**, presenting a valuable opportunity to add personal touches or increase property value
- **Located in a vibrant residential area** with fast broadband and excellent mobile signal
**Potential Concerns:**
- Requires **renovation**, which may involve time and resources
- Built between 1991-1995, may necessitate updates to modern standards, particularly in the cottage-style kitchen and bathroom facilities
Located in the well-established Winchester Road district, this mid-terrace property presents an exciting opportunity for renovation enthusiasts and families looking to create their dream home. With three well-proportioned bedrooms and generous living areas, it provides ample space for family life or rental potential. The property features a good-sized rear garden, perfect for outdoor entertaining or play.
While it does require updating, this gives you the perfect chance to personalize your space and add value, ultimately tailoring it to suit your needs. Nestled in a family-friendly community with convenient access to local amenities and reputable schools, this auction property offers a blend of comfort and future potential. Don’t miss your chance to secure this home and bring your vision to life—opportunities like this don't last long, so act fast!



















































