Comfortable low-maintenance living close to village amenities and rail links.
First-floor retirement scheme apartment with communal gardens
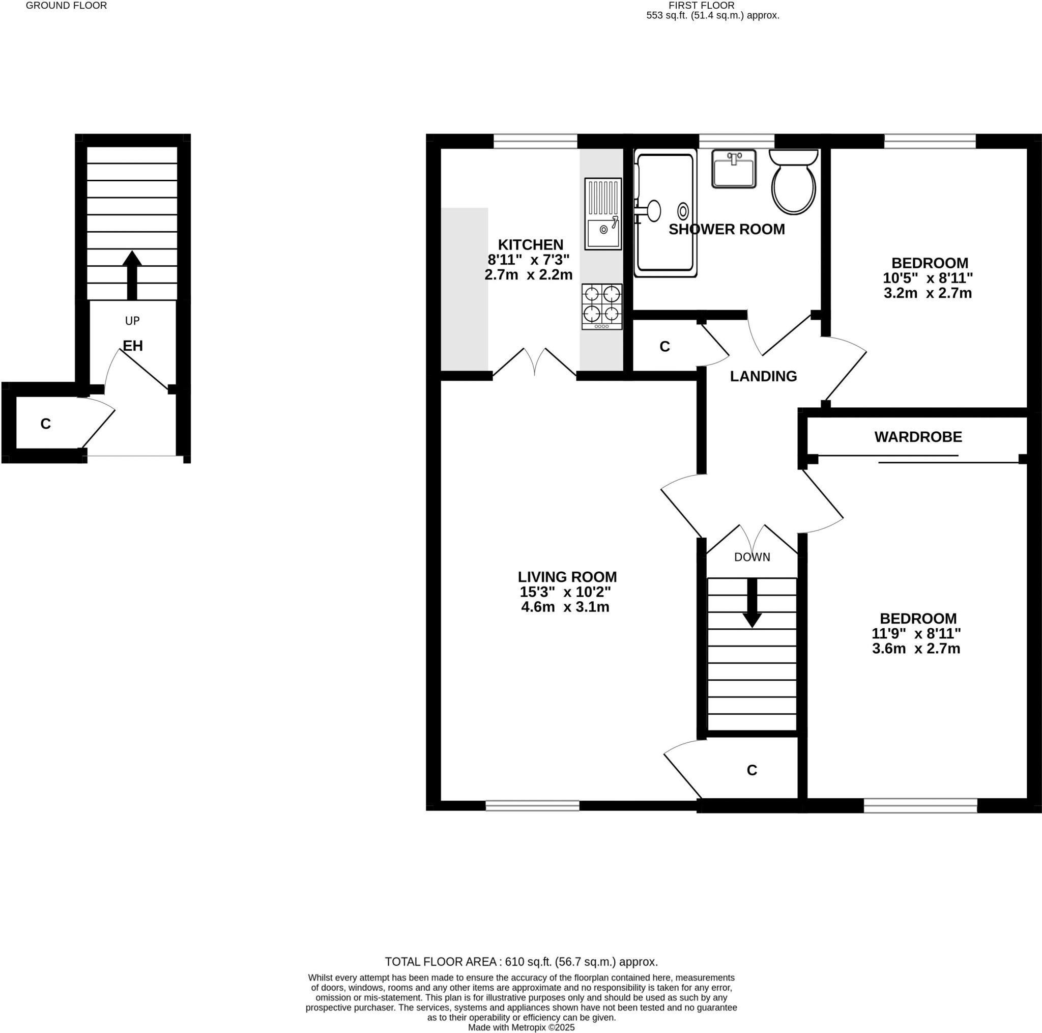
Two double bedrooms and spacious living room
Modern fitted kitchen and ample storage throughout
No onward chain — quick completion possible
Leasehold with 61 years remaining — lender restrictions likely
Annual service charge £2,441.94; ground rent £75
About 610 sq ft — overall size small
Excellent transport links: short walk to train station
This first-floor, two-double-bedroom apartment sits within a well-maintained retirement scheme in the heart of Barnt Green village. With a modern fitted kitchen, spacious living room and double glazing, it offers comfortable, low-maintenance living and direct access to local shops and the train station.
The apartment is offered with no onward chain and benefits from communal gardens, ample storage and an EPC rating of C. Annual service charges are £2,441.94 and ground rent is £75. Council tax band B keeps running costs relatively modest for the area.
Important practical note: the property is leasehold with 61 years remaining. This may restrict mortgage options and some lenders could refuse to lend; buyers should obtain legal and mortgage advice before committing. The overall footprint is modest at about 610 sq ft, suited to downsizers rather than those needing larger living space.
2 bedroom apartment for sale in Willow Tree Drive, Barnt Green, Birmingham, Worcestershire, B45 — £160,000 • 2 bed • 1 bath • 602 ft²
2 bedroom apartment for sale in Hewell Road, Barnt Green, Birmingham, Worcestershire, B45 — £155,000 • 2 bed • 1 bath • 592 ft²
2 bedroom flat for sale in Ashill Road, Rednal, B45 — £85,000 • 2 bed • 1 bath • 704 ft²
2 bedroom apartment for sale in Recreation Road, Bromsgrove, Worcestershire, B61 — £260,000 • 2 bed • 1 bath • 742 ft²
2 bedroom apartment for sale in The Green, Kings Norton, Birmingham, West Midlands, B38 — £139,000 • 2 bed • 1 bath • 549 ft²
2 bedroom apartment for sale in Butterwick Close, Barnt Green, Birmingham, Worcestershire, B45 — £375,000 • 2 bed • 2 bath • 702 ft²






















































































































