Bright, move-in ready home with strong transport links and private parking.
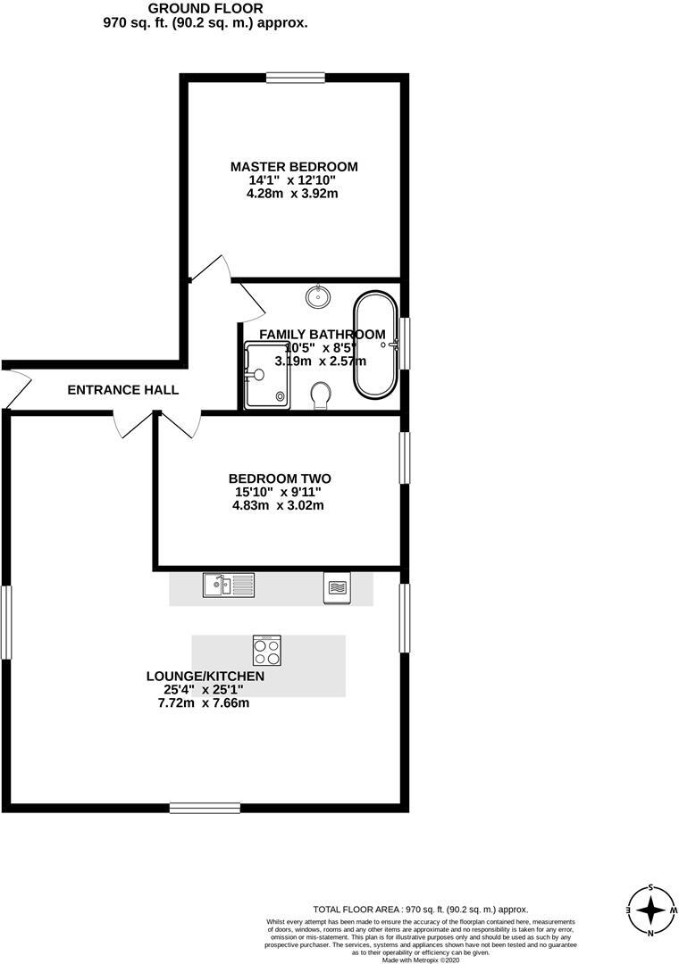
Large open-plan apartment — approx 970 sq ft
Recently refurbished to a contemporary standard throughout
Two generous double bedrooms, one modern four-piece bathroom
EPC rating B and long lease (990 years)
Allocated off-street parking; no private garden
Upper-floor level (listed as second/third floor in documents)
Very high local crime rate and very deprived area classification
Council tax described as very cheap
This large two-bedroom apartment offers surprisingly spacious town-centre living — about 970 sq ft — with a recently refurbished interior and contemporary fittings. The open-plan living space, bespoke kitchen with island and a four-piece bathroom create a modern, comfortable home ready to move into. The long lease (990 years) and EPC B add practical reassurance for buyers.
Situated within a gated courtyard development a short walk from Chorley train station, restaurants and a new cinema, the property has strong transport and amenity appeal for first-time buyers who want convenience and nightlife on the doorstep. One allocated off-street parking space is included, though there is no private garden.
Buyers should note the property sits on an upper floor (documents reference second/third floor) and the surrounding locality is recorded as very deprived with a very high crime level; these factors can affect future resale and rental demand. Council tax is described as very cheap, which helps running costs. Overall, this is a roomy, low-maintenance city-centre home best suited to those prioritising location and modern interiors over suburban quiet.
2 bedroom apartment for sale in Denham Wood Close, Chorley, PR7 — £119,995 • 2 bed • 1 bath • 563 ft²
1 bedroom apartment for sale in St. Thomas's Road, Chorley, PR7 — £69,995 • 1 bed • 1 bath • 492 ft²
2 bedroom terraced house for sale in Geoffrey Street, Chorley, PR6 — £119,995 • 2 bed • 1 bath • 760 ft²
2 bedroom apartment for sale in Standish Street, Chorley, PR7 — £170,000 • 2 bed • 1 bath • 626 ft²
2 bedroom apartment for sale in Standish Street, Chorley, PR7 3AH, PR7 — £220,000 • 2 bed • 1 bath • 5094 ft²
2 bedroom terraced house for sale in Alker Street, Chorley, PR7 — £129,995 • 2 bed • 1 bath • 766 ft²


























































































