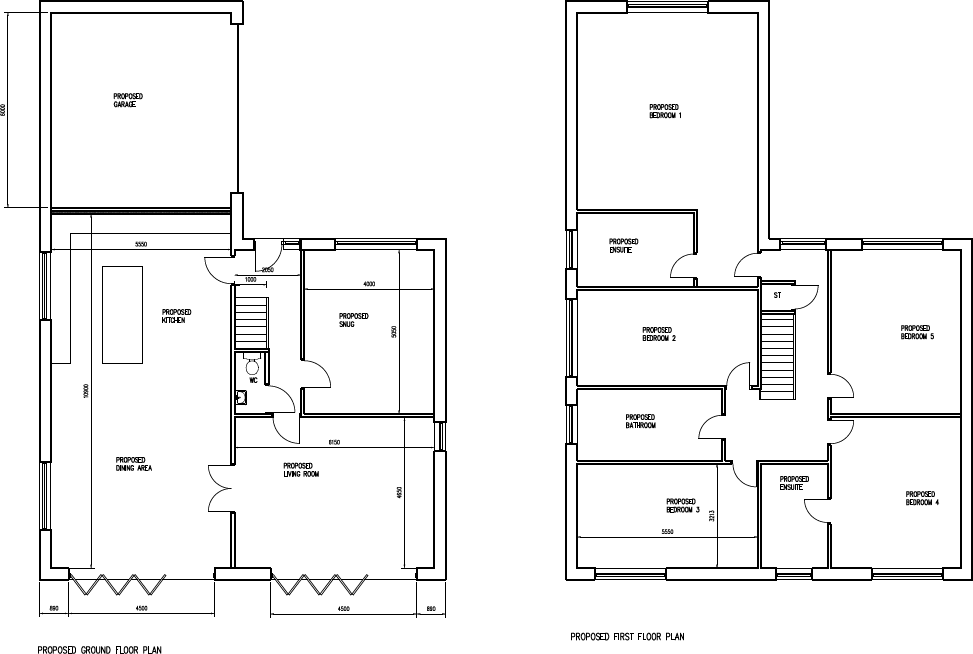
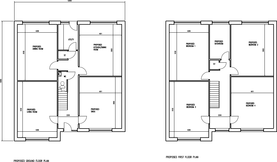
**Standout Features:**
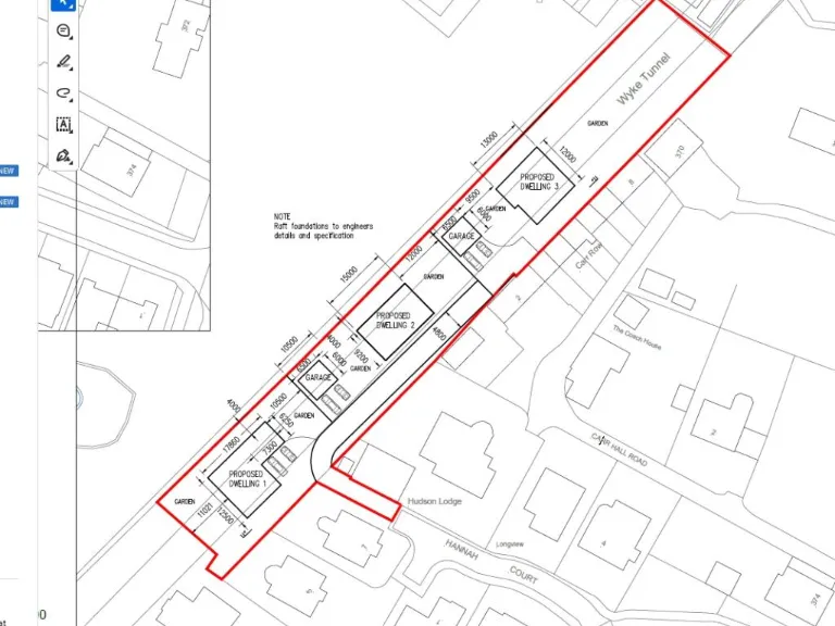
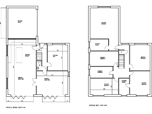
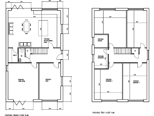
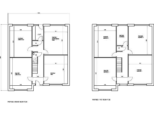
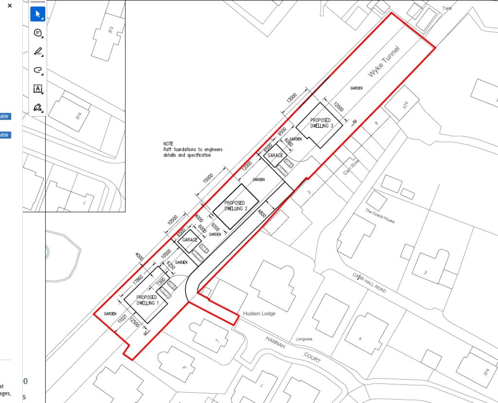
- Large plot with pre-planning permission for three detached homes
- Prime location near schools and amenities
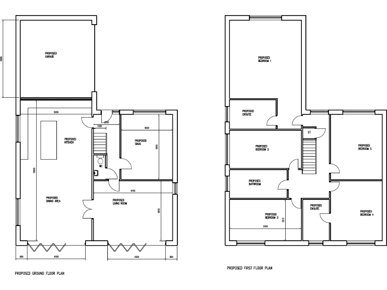
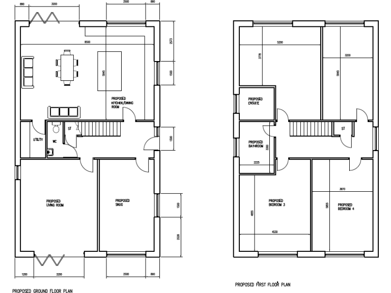
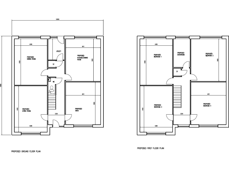
- Opportunity for four and five-bedroom family homes
- Good-sized gardens and garages
- Fast broadband and excellent mobile signal
- A decent plot size catering to various development possibilities
**Potential Concerns:**
- Area classification: high crime and high deprivation
- Requires full planning consent for development
Nestled in the desirable Wyke area, this expansive plot presents a unique opportunity for investors and developers looking to capitalize on a prime residential location. With pre-planning applications suggesting support from Bradford Planners for three large detached homes, this could become a select executive development featuring four and five-bedroom family properties. The site is conveniently located near reputable schools, such as Appleton Academy and Worthinghead Primary, making it ideal for families seeking a nurturing environment.
With a significant garden space and garage provision, each proposed home would blend comfort with modern living. While the area faces challenges with high crime rates and deprivation, the potential for fast broadband and excellent mobile connectivity offers practical advantages. This is a rare opportunity to create enduring family homes in a locale poised for growth. Don’t miss the chance to invest in this promising development that holds substantial future potential—contact us to learn more about this unique opportunity today!
Property for sale in Post Office Road, Bradford, West Yorkshire, BD2 — £170,000 • 1 bed • 1 bath
Land for sale in Halifax Road, Bradford, BD6 — £50,000 • 1 bed • 1 bath
Land for sale in The Common, Dewsbury, WF12 — £90,000 • 1 bed • 1 bath
Land for sale in Batley Road, Wrenthorpe, Wakefield, West Yorkshire, WF2 — £325,000 • 1 bed • 1 bath • 2300 ft²
Plot for sale in Leeds Road, Eccleshill, Bradford, BD2 — £75,000 • 1 bed • 1 bath
Detached house for sale in Kings Road, Bingley, West Yorkshire, BD16 2HA, BD16 — £155,000 • 1 bed • 1 bath






































