Manageable one‑bed flat with parking, loft storage and quick access to Chesham high street..
Allocated off‑street parking for one car
Communal gardens and full‑footprint loft storage
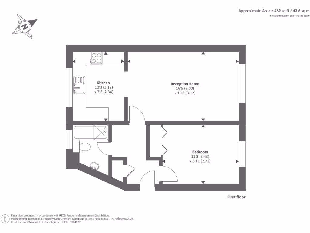
Approximately 469 sq ft; one double bedroom
Upper‑floor flat with good natural light
Double glazing and gas central heating throughout
Leasehold: 87 years remaining (sub‑90 years)
Ground rent £125 pa; service charge £1,106 pa
No onward chain — quicker completion possible
This bright one-bedroom upper‑floor flat in Chesham offers an accessible, low‑maintenance step onto the property ladder. Located a 10–15 minute walk from the high street and station, the flat is well placed for commuting, local shops and nearby countryside. The apartment benefits from allocated off‑street parking, communal gardens and a full‑footprint loft for useful additional storage.
The interior is a traditional, average‑sized layout (approximately 469 sq ft) with double glazing and gas central heating via boiler and radiators. Fast broadband, excellent mobile signal and very low local crime add practical comfort for first‑time buyers or commuters seeking a secure base close to amenities and green space.
Buyers should note this is a leasehold property with 87 years remaining. Annual costs include ground rent (£125) and a service charge currently stated at £1,106 per year; these running costs and the sub‑90‑year lease may affect mortgage options and future resale value. There is no onward chain, which can speed completion for a motivated purchaser.
Overall this flat suits a first‑time buyer or investor looking for a manageable, well‑located home with parking and storage. While fairly move‑in ready, the lease length and ongoing charges are material considerations to check before offer.
1 bedroom flat for sale in Highview Court, Eskdale Avenue, Chesham, HP5 — £199,950 • 1 bed • 1 bath • 441 ft²
1 bedroom flat for sale in Chesham, Buckinghamshire, HP5 — £180,000 • 1 bed • 1 bath • 338 ft²
2 bedroom flat for sale in Severalls Avenue, Chesham, HP5 — £325,000 • 2 bed • 2 bath • 724 ft²
2 bedroom flat for sale in Chesham, Buckinghamshire, HP5 — £240,000 • 2 bed • 1 bath • 613 ft²
1 bedroom flat for sale in Chesham, Buckinghamshire, HP5 — £180,000 • 1 bed • 1 bath • 398 ft²
1 bedroom flat for sale in Chesham, Buckinghamshire, HP5 — £180,000 • 1 bed • 1 bath • 355 ft²


































































