Large garden and driveway near South Ruislip station, ideal for family life.
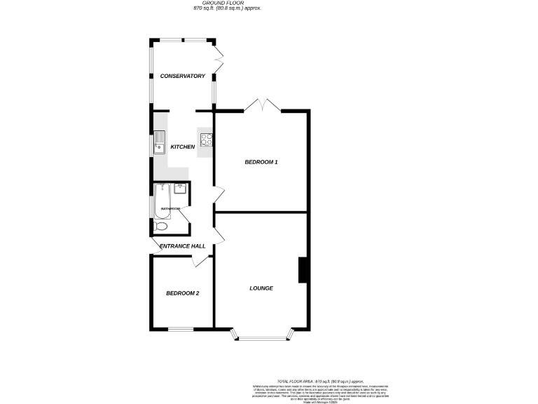
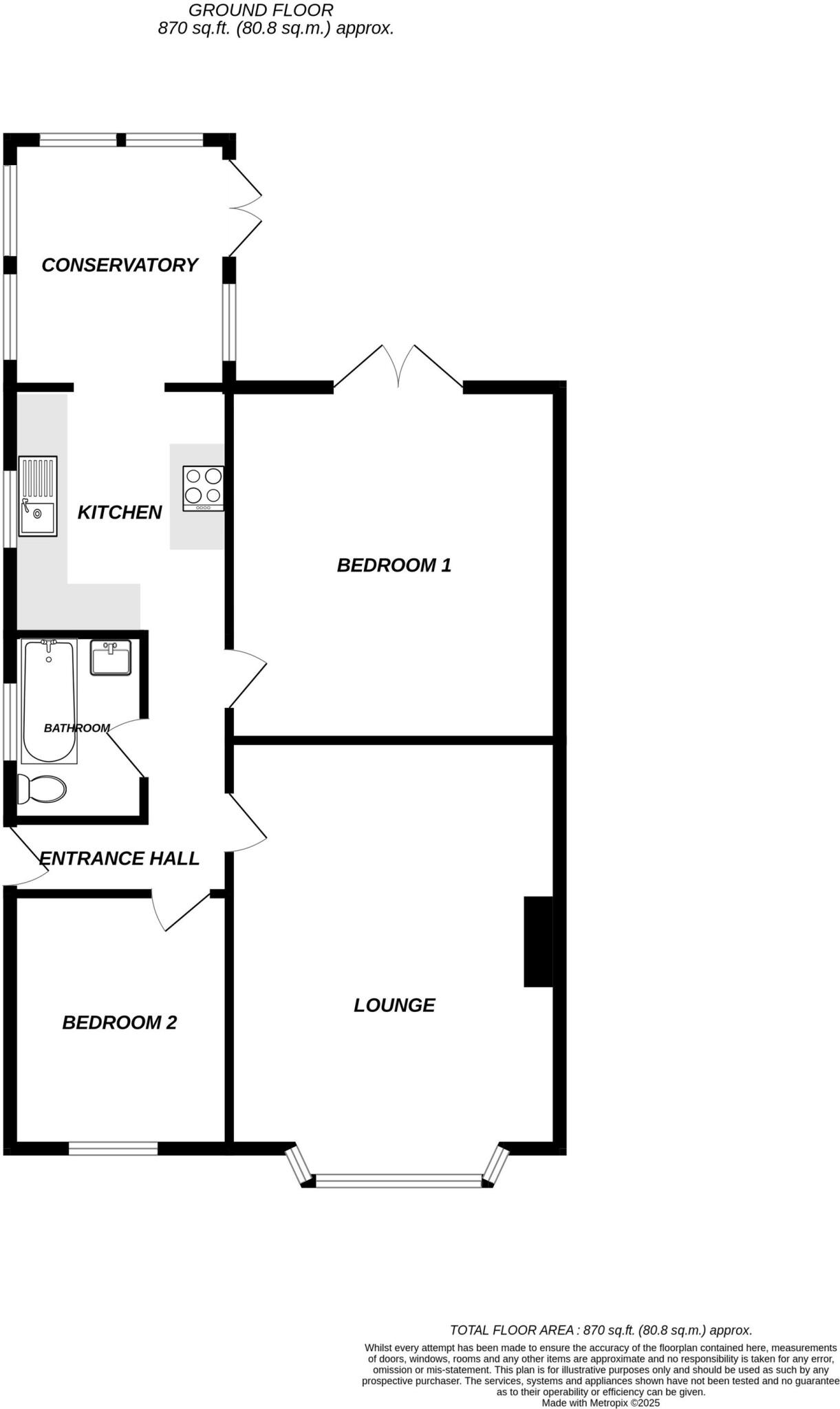
Extremely large 1,446 sq ft single-storey bungalow
This spacious 2-bedroom semi-detached bungalow sits on a decent plot in Ruislip, a short walk from South Ruislip station (Central Line and Overground). At about 1,446 sq ft overall, the single-storey layout offers easy living with a private landscaped rear garden and off-street driveway parking — practical for families and downsizers who value outdoor space and simple access.
The house is freehold and chain free, so ownership and moving arrangements can be straightforward. Internally the property retains mid-20th-century character with standard ceiling heights and a bay-windowed frontage; gas central heating provides year-round comfort. Excellent mobile signal and fast broadband make the home convenient for remote working and family connectivity.
Buyers should note material local considerations: the property lies in an area recorded with very high crime levels, and council tax is above average — both factors to weigh in budgeting and lifestyle choices. There is no identified flood risk. The bungalow’s size and single-storey plan give clear potential for adaptation subject to planning and building regulations, appealing to buyers looking for a long-term home or investment with scope to personalise.
Nearby schools are rated Good and local amenities include sports facilities, playgrounds and easy transport links for commuters. Overall, this bungalow will suit purchasers seeking a roomy, accessible home in a well-connected suburban neighbourhood, but sensible due diligence on security and running costs is recommended.
2 bedroom semi-detached bungalow for sale in Royal Crescent, Ruislip, HA4 — £500,000 • 2 bed • 1 bath • 999 ft²
3 bedroom semi-detached bungalow for sale in Herlwyn Avenue, Ruislip, HA4 — £650,000 • 3 bed • 1 bath • 1121 ft²
2 bedroom detached bungalow for sale in Woodville Gardens, Ruislip, HA4 — £598,000 • 2 bed • 1 bath • 888 ft²
4 bedroom bungalow for sale in The Croft, Ruislip, HA4 — £625,000 • 4 bed • 2 bath • 902 ft²
2 bedroom bungalow for sale in Herlwyn Avenue, Ruislip, Middlesex, HA4 — £625,000 • 2 bed • 1 bath • 1105 ft²
4 bedroom bungalow for sale in Hardy Avenue, Ruislip, HA4 — £700,000 • 4 bed • 2 bath • 1647 ft²


















































