Chain-free two-bed bungalow with garage, garden and scope to modernise in Istead Rise.
- Chain free — ready for a quick sale
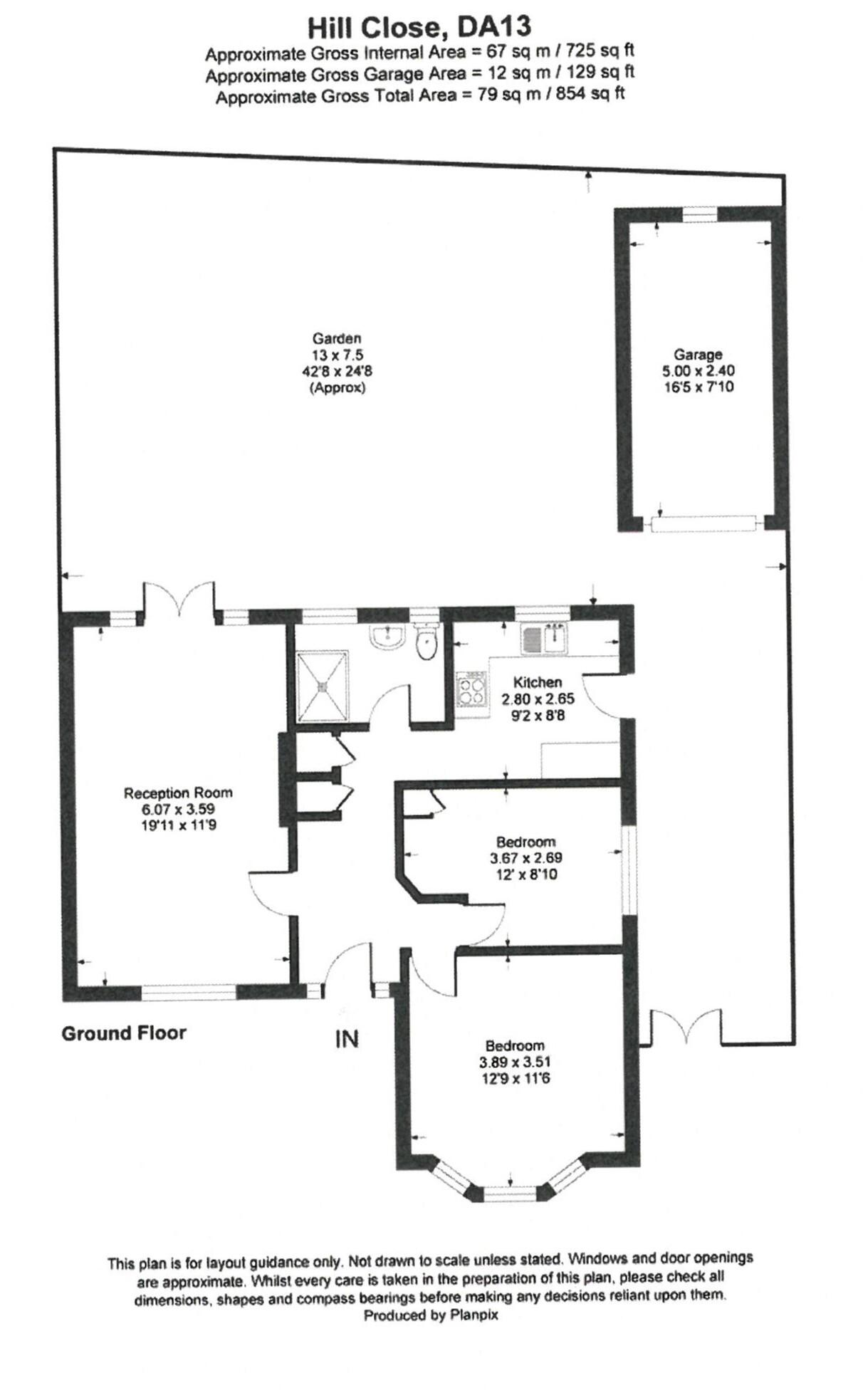
- Single-storey bungalow, all on the flat
- Substantial frontage with long driveway and detached garage
- Enclosed rear garden, private and low-maintenance
- Two bedrooms, bright living room with patio doors
- Wet room present; bathroom will likely need modernising
- Property dated and requires renovation; assumed no wall insulation
- Double glazing and mains gas boiler already installed
Quiet, single-level living in Istead Rise: this semi-detached bungalow sits entirely on the flat and is offered chain free, making it easy to move into or renovate. The property occupies a generous plot with a substantial frontage, long driveway for multiple cars and a detached garage. An enclosed rear garden provides private outdoor space for potting, seating or safe play.
Inside are two bedrooms, a bright living room with patio doors and a wet room. The home is structurally conventional (cavity walls, mains gas boiler and radiators) and benefits from double glazing fitted after 2002. The bungalow totals about 725 sq ft — comfortable for downsizers or buyers seeking a modest single-storey home.
The bungalow needs updating and modernisation throughout; the interior is dated and there is assumed lack of wall insulation. This property is best suited to buyers willing to invest in refurbishment to realise full value. There is no flood risk, broadband speeds are fast and mobile signal is excellent, and local shops are within walking distance.
Practical points: freehold tenure, moderate council tax banding and no onward chain. Early viewing is recommended to assess the renovation potential and layout for accessible, single-level living in a peaceful village fringe location.
2 bedroom semi-detached bungalow for sale in Haven Close, Istead Rise, Gravesend, DA13 — £325,000 • 2 bed • 1 bath • 655 ft²
3 bedroom bungalow for sale in Upper Avenue, Istead Rise, Gravesend, Kent, DA13 — £450,000 • 3 bed • 1 bath • 1000 ft²
3 bedroom semi-detached house for sale in Hill Close, Istead Rise, Kent, DA13 — £475,000 • 3 bed • 1 bath • 901 ft²
3 bedroom bungalow for sale in Northumberland Road, Istead Rise, Gravesend, Kent, DA13 — £375,000 • 3 bed • 1 bath • 879 ft²
3 bedroom semi-detached house for sale in Fairview Road, Istead Rise, Gravesend, Kent, DA13 — £500,000 • 3 bed • 2 bath • 1477 ft²
2 bedroom detached bungalow for sale in Northumberland Road, Istead Rise, Gravesend, Kent, DA13 9JP, DA13 — £375,000 • 2 bed • 1 bath • 1007 ft²






































































































