Substantial garden and approved plans for a large family home.
Detached two‑bed bungalow in good condition and chain‑free
Honeysuckle Cottage is a tidy detached two‑bed bungalow set on a very large, private plot in semi‑rural Woodchurch. The current home is ready to occupy with open‑plan living, engineered oak floors and mature lawned gardens that wrap around the house. It is chain‑free and offers off‑street parking via a gated shared driveway.
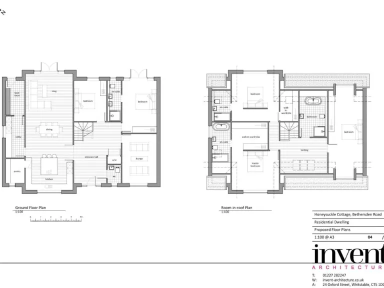
The site’s principal value is the full planning permission (PA/2023/0989; variation PA/2025/0063) to replace the bungalow with a five‑bed detached house and garage. The consented design provides substantial family accommodation over two storeys, a boot/utility room, pantry and multiple ensuites — an attractive redevelopment opportunity for a growing household or developer. Permission must be begun by 30 July 2027.
Practical details are straightforward: freehold tenure, mains water and electricity, UPVC double glazing and oil central heating. There is private drainage and broadband speeds are reported as very slow, which may affect home working. The property sits in an ageing rural neighbourhood with average crime and area deprivation statistics, and council tax is above average.
This offering suits buyers seeking countryside privacy with immediate liveability and clear scope for extension or replacement. Purchasers should factor in the costs of redevelopment, the need for private drainage management, reliance on oil heating, and limited broadband when assessing future plans.
3 bedroom detached bungalow for sale in Front Road, Woodchurch, TN26 — £550,000 • 3 bed • 2 bath • 1346 ft²
2 bedroom detached bungalow for sale in Front Road, Woodchurch, Ashford, TN26 — £450,000 • 2 bed • 1 bath
2 bedroom detached house for sale in Front Road, Woodchurch, Ashford, TN26 — £599,995 • 2 bed • 2 bath • 1805 ft²
3 bedroom detached bungalow for sale in Kirkwood Avenue, Woodchurch, TN26 — £450,000 • 3 bed • 1 bath • 1248 ft²
2 bedroom detached house for sale in Pearsons Green Road, Brenchley, TN12 — £695,000 • 2 bed • 1 bath • 908 ft²
4 bedroom detached house for sale in Shadoxhurst Road, Woodchurch, Kent, TN26 3PW, TN26 — £1,150,000 • 4 bed • 2 bath • 2382 ft²






















































































































