**Standout Features:**
- Generous four-bedroom Victorian terraced house
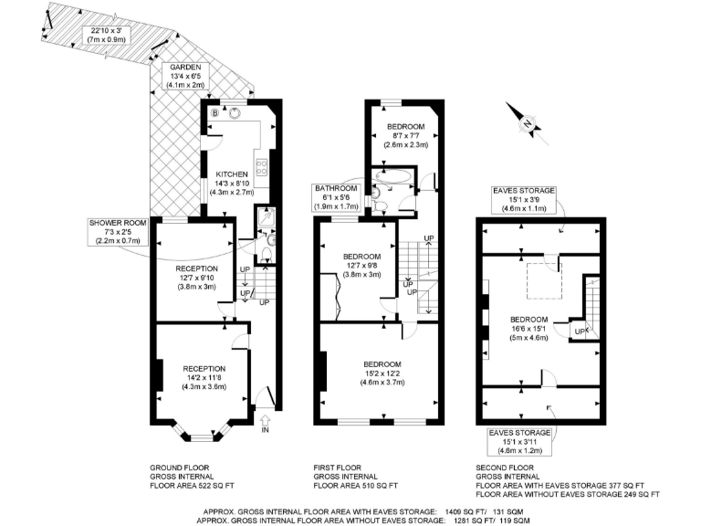
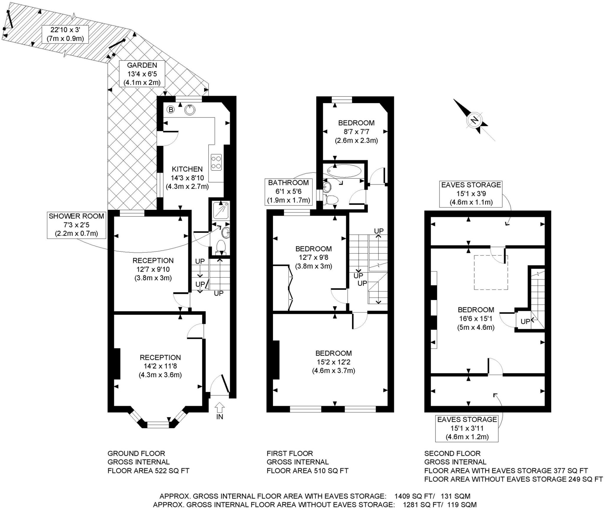
- Over 1400 sq. ft. with three double bedrooms and a spare/study room
- Two bathrooms and two reception rooms
- Existing planning permissions for extensions (ref: 2022/02466/FUL, 2022/02051/FUL)
- Private patio and off-street parking eligibility
- Excellent transport links near Shepherd's Bush stations
- Close proximity to Westfield London for shopping and leisure
**Concerns:**
- High crime rate in the area
- Higher council tax band (Band F)
Welcome to this spacious Victorian terraced house situated on Caxton Road, London W12, ideal for families or investors looking for a blend of character and modern conveniences. This thoughtfully laid out home offers over 1400 square feet spread over three storeys, featuring two large reception rooms, an inviting kitchen-dining area, three generous double bedrooms, and a versatile spare/study room. Each space is filled with natural light, creating a warm and welcoming atmosphere throughout.
For those looking to expand, this property already has planning permissions in place, providing flexibility for renovations to suit your lifestyle. Step outside to enjoy your own private patio, perfect for alfresco dining or unwinding after a busy day. The property is well-connected, just a short walk from Shepherd’s Bush and Shepherd’s Bush Market stations, along with the bustling amenities of Westfield London.
With a competitive asking price of £925,000, this home presents a rare opportunity in a bustling urban area. Don’t miss the chance to make this Victorian gem your own!
3 bedroom apartment for sale in Tadmor Street, London, W12 — £825,000 • 3 bed • 2 bath • 1027 ft²
4 bedroom maisonette for sale in Aldine Street, London, W12 — £950,000 • 4 bed • 2 bath • 1286 ft²
4 bedroom house for sale in Bloemfontein Road, Shepherds Bush, W12 — £1,200,000 • 4 bed • 2 bath • 2125 ft²
3 bedroom house for sale in Tunis Road, London, W12 — £850,000 • 3 bed • 1 bath • 923 ft²
5 bedroom terraced house for sale in Ingersoll Road, Shepherd's Bush, London, W12 — £1,500,000 • 5 bed • 3 bath • 1894 ft²
5 bedroom terraced house for sale in Ingersoll Road, London, W12 — £1,500,000 • 5 bed • 3 bath • 2030 ft²






























