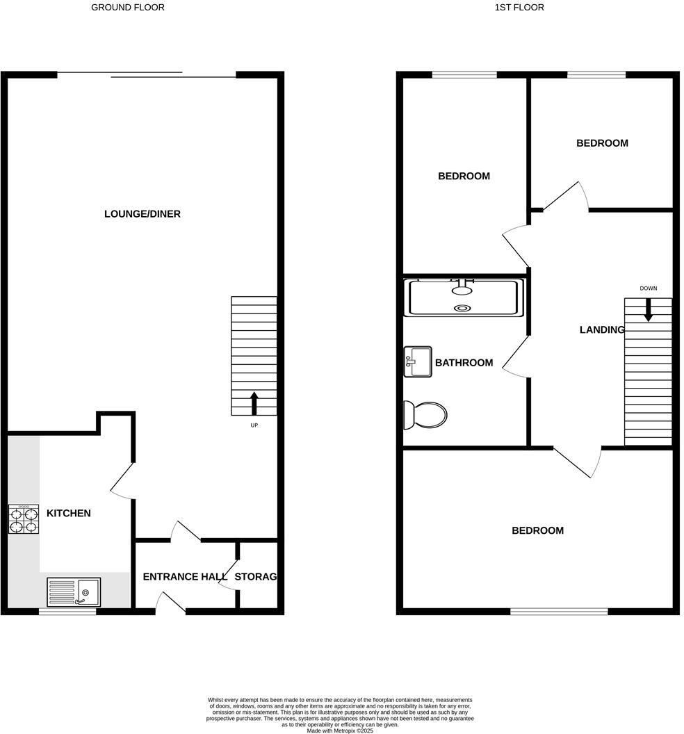
Comfortable three-bed home with loft room and generous parking for growing families.
- Large open-plan lounge and dining area for family living
- Bright loft room provides flexible home office or extra bedroom
- Rear garden backs onto woodland, offering privacy and quiet
- Driveway for 2–3 cars plus garage with new roof and door
- Modern kitchen with durable granite worktops
- Single shower room only; one bathroom for three bedrooms
- Overall internal area is modest at ~791 sq ft on small plot
- Built c.1976–82; likely cosmetic updating may be desired
This three-bedroom terraced house on Latimer Drive offers practical family living with a quiet woodland backdrop. The large open-plan lounge/diner provides flexible communal space, while a bright loft room adds versatile accommodation for a home office, playroom or occasional bedroom. The kitchen’s granite worktops add a durable, modern finish to everyday cooking.
Outside, a low-maintenance rear garden borders peaceful woodland, giving privacy and a natural outlook rarely found in similar-sized town properties. Parking is well catered for: a driveway fits 2–3 cars and the garage has a newly fitted roof and door for secure storage or vehicle use. Double glazing and a mains gas boiler with radiators contribute to efficient, comfortable year-round living.
Practical points to note: internal living space and plot are modest (approximately 791 sqft on a small plot) and two of the bedrooms are compact. There is a single shower room only, so families should consider bathroom routines. Built c.1976–82 with filled cavity walls, the house appears sound but may benefit from cosmetic updating to personalise finishes.
Positioned close to several well-regarded primary and secondary schools and with good rail links (Laindon, Basildon, Billericay stations within easy reach), this property suits families seeking a commuter-friendly home with outdoors privacy. Freehold tenure and low flood risk are practical advantages. Overall, this is a straightforward, move-in-ready family house with scope to add value through modest improvements.
3 bedroom semi-detached house for sale in Kennel Lane, Billericay, Essex, CM12 — £450,000 • 3 bed • 1 bath • 737 ft²
4 bedroom terraced house for sale in Chenies Drive, Laindon, SS15 4AE, SS15 — £400,000 • 4 bed • 1 bath • 1112 ft²
3 bedroom terraced house for sale in Latimer Drive, Steeple View, Basildon, Essex, SS15 — £350,000 • 3 bed • 1 bath • 560 ft²
4 bedroom semi-detached house for sale in Buller Road, Basildon, SS15 — £375,000 • 4 bed • 1 bath • 989 ft²
3 bedroom terraced house for sale in Trinity Road, Billericay, CM11 — £425,000 • 3 bed • 3 bath • 1307 ft²
3 bedroom semi-detached house for sale in Upland Road, Billericay, CM12 — £550,000 • 3 bed • 1 bath • 950 ft²


















































































