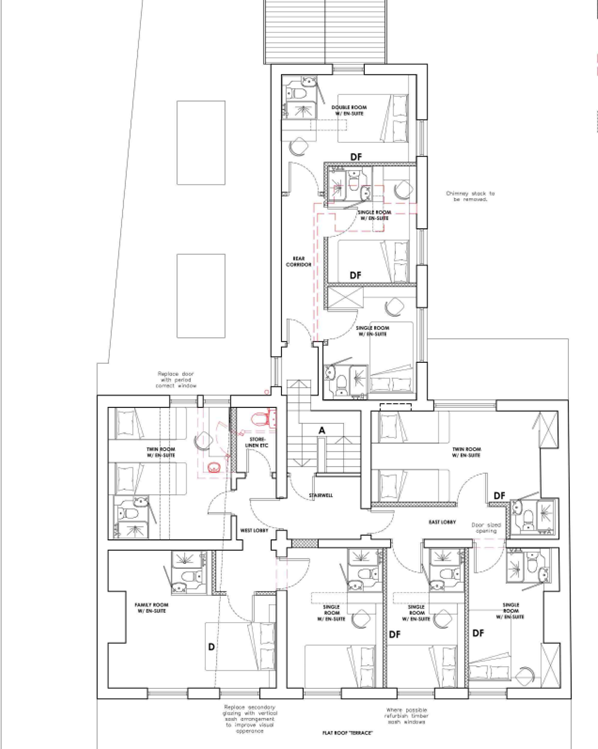
**Standout Features:**
- **Planning Permission** for a 26-bedroom hotel and restaurant, granted July 2023.
- **Grade II Listed** Victorian building, showcasing historic architectural charm.
- **Prime Town Centre Location**, surrounded by amenities and excellent transport links.
- **Freehold and Vacant Possession** allows for flexible usage (subject to planning).
- **Off-street parking** available adjacent to the property.
**Potential Concerns:**
- Derelict condition; may require significant renovation.
- Listed status may impose restrictions on modifications.
- Located in a high-crime area, may complicate certain uses.
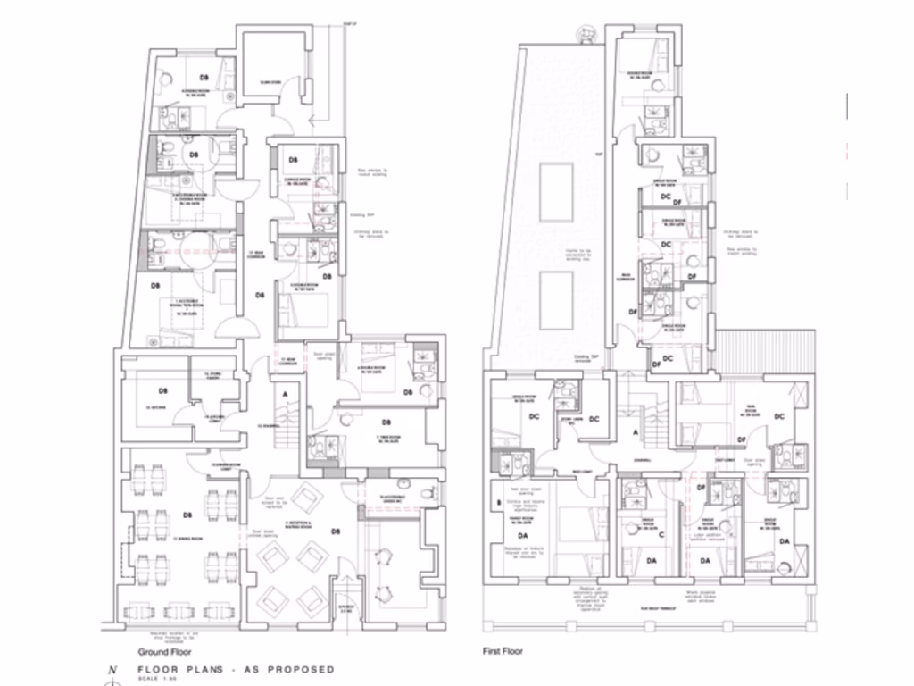
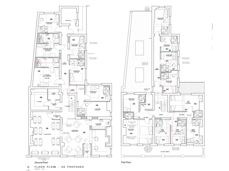
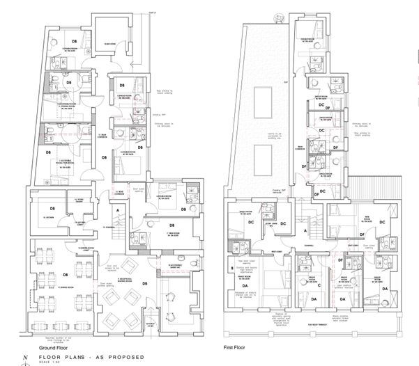
Discover an exceptional investment opportunity in the heart of Boston with this prominent corner former office building, now available for auction. This Grade II Listed property has full planning permission for converting into a 26-bedroom hotel and restaurant, promising a lucrative venture in a bustling town center. Spread across three floors, the planned layout includes a welcoming reception, a kitchen, a restaurant, and all en-suite bedrooms, ensuring a comfortable stay for future guests.
While the property's historic elegance offers unique charm, it is in a derelict state needing refurbishment. Its listing status may require careful consideration during renovation planning. The central location guarantees proximity to various amenities, creating attractive rental or service potential, whether you envision a new hotel, assisted living facility, or mixed-use development. Don't miss out on this unique chance to reshape a piece of Boston's heritage into a thriving business; act now, as opportunities like this are rare and sought-after!
Terraced house for sale in High Street, Boston, PE21 — £80,000 • 1 bed • 1 bath
Town house for sale in 17B Wide Bargate, Boston, Lincolnshire, PE21 6SR, PE21 — £170,000 • 1 bed • 1 bath
Commercial development for sale in South Street, Boston, Lincolnshire, PE21 6HT, PE21 — £200,000 • 1 bed • 1 bath • 3165 ft²
4 bedroom terraced house for sale in High Street, Boston, PE21 — £65,000 • 4 bed • 1 bath
Healthcare facility for sale in Pen Street, Boston, Lincolnshire, PE21 6TJ, PE21 — £275,000 • 2 bed • 1 bath • 4950 ft²
High street retail property for sale in Horncastle Road, Boston, Lincolnshire, PE21 9BN, PE21 — £75,000 • 1 bed • 1 bath • 614 ft²


























































