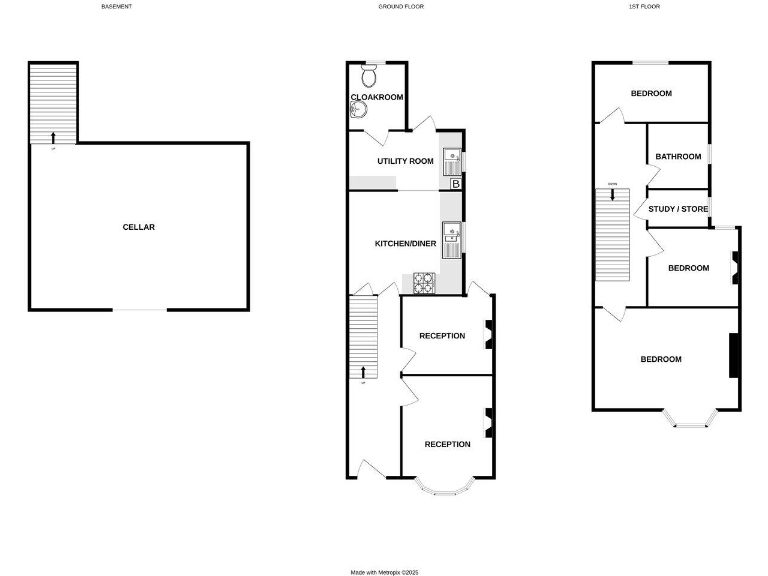
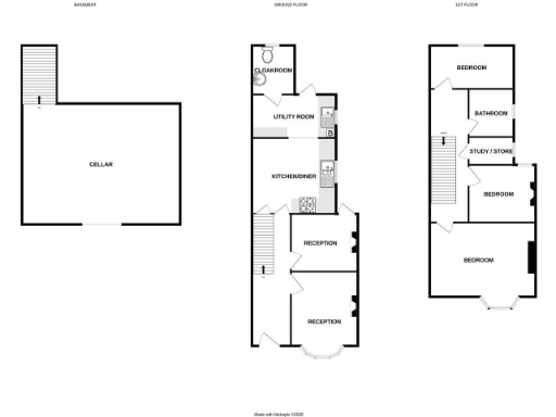
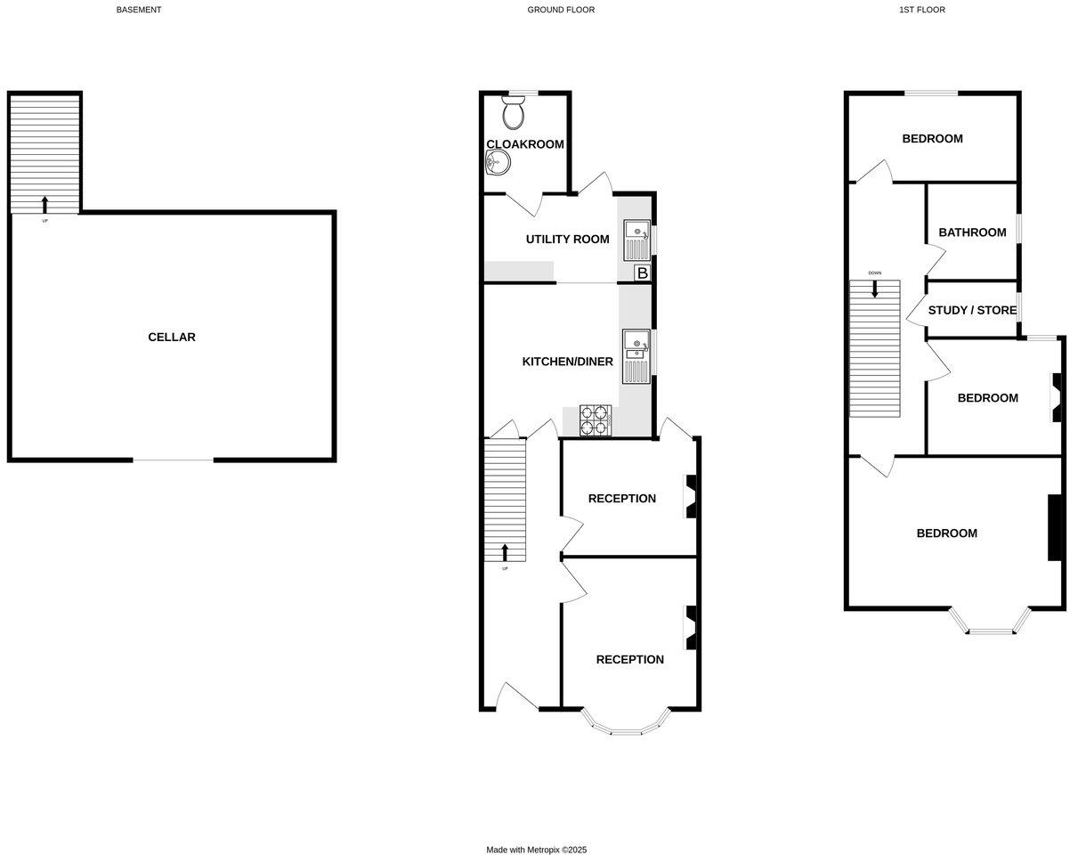
Spacious period house with renovation potential, minutes from Hereford city centre..
- Approximately 1,300 sqft across multiple storeys, generous room sizes
- Edwardian features: bay windows, fireplaces, high ceilings
- Freehold and offered chain free
- No central heating system; electric heaters assumed
- Solid brick walls with no insulation; energy upgrades likely needed
- Small rear garden; well-defined by hedging and brick walls
- Main-street location — convenient but potential traffic/noise
- Local crime levels reported higher than average for Hereford
A substantial Edwardian mid-terrace offering c.1300 sqft of generous living space across multiple levels. High ceilings, bay windows and original fireplaces retain strong period character and provide scope for an elegant family layout. The property is offered chain free and freehold — a rare longer-term family home coming to market for the first time in decades.
Set on St Owen Street just east of Hereford city centre, the location places shops, transport links and several well-regarded schools within easy reach. The rear garden is modest but private, and the plot is well-defined by hedging and brick walls. Broadband speeds are fast and the property has no reported flood risk.
Important practical points: there is currently no central heating system (electric heaters assumed) and the building has solid brick walls with no installed insulation (typical of its era). Internal photos show original finishes but also dated areas and cosmetic wear; the house will require modernization and potential energy-efficiency upgrades. Crime in the immediate area is reported as high relative to wider Hereford — buyers should consider security and local context.
This house will suit a family or buyer seeking spacious period rooms and renovation potential rather than a move-in-ready property. With its size, layout and proximity to schools and city amenities, it offers strong potential for sympathetic refurbishment to create a comfortable, characterful home.
2 bedroom end of terrace house for sale in St Owen Street, Hereford, HR1 — £199,950 • 2 bed • 1 bath • 1228 ft²
3 bedroom terraced house for sale in Ryelands Street, Hereford, HR4 — £299,950 • 3 bed • 1 bath • 1256 ft²
3 bedroom terraced house for sale in Cotterell Street, Hereford, HR4 — £200,000 • 3 bed • 1 bath • 926 ft²
2 bedroom terraced house for sale in Grandstand Road, Hereford, HR4 — £190,000 • 2 bed • 1 bath • 902 ft²
3 bedroom terraced house for sale in Victoria Street, Hereford, HR4 — £195,000 • 3 bed • 1 bath • 1202 ft²
3 bedroom house for sale in Whitecross Road, Hereford, HR4 — £384,950 • 3 bed • 1 bath • 1368 ft²






































































































































