Bright two-bedroom flat with balcony, parking and long lease near Port Meadow..
Panoramic views over Binsey Meadows and Port Meadow walks nearby
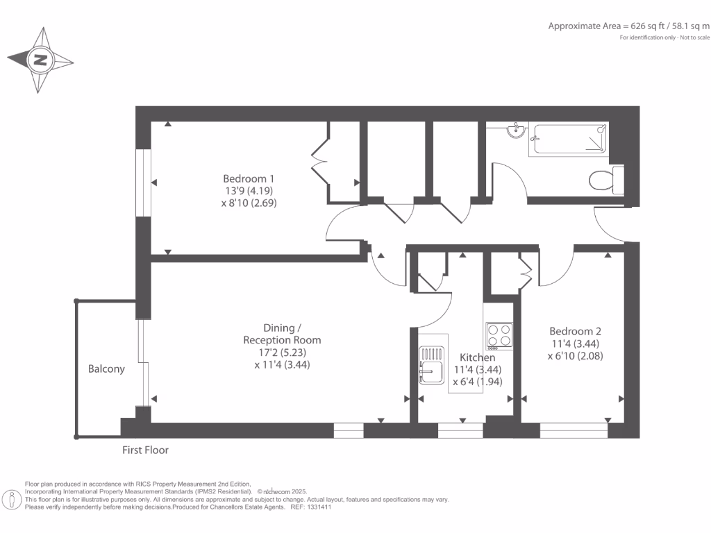
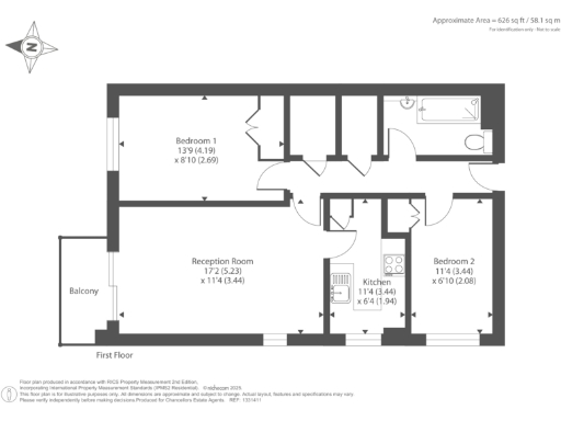
Two double bedrooms with fitted wardrobes and bright double-aspect reception
Private balcony accessed from reception room
Secure allocated underground parking space included
Long lease (999 years from 1978) and chain free sale
High local flood risk — insurance and suitability implications
Above-average local crime rate — consider security/insurance costs
Slow broadband speeds; building likely uninsulated cavity walls
Set above the Binsey meadows with long, elevated views across open green space, this first-floor two-double-bedroom apartment offers a bright, practical home within easy reach of central Oxford. The double-aspect reception room opens onto a private balcony, maximising light and the outlook; the fitted kitchen and family bathroom complete straightforward, move-in-ready accommodation of roughly 626 sq ft. A secure underground allocated parking space is included — a rare convenience so close to the city.
The property sits on a very long lease (999 years from 1978) and is offered chain free, making purchase and remortgage administratively simple. The building dates from the late 1960s/early 1970s and benefits from double glazing installed after 2002 and gas-fired central heating with a boiler and radiators. The layout is traditional and sensible, with two built-in wardrobes and useful hallway storage.
Buyers should note some material local and technical limitations: the location has a high flood risk and the area records above-average crime levels, which may affect insurance and suitability for some purchasers. Broadband speeds in the building are slow; anyone working from home should confirm connectivity options. The building’s cavity walls are assumed uninsulated, so there may be opportunities and costs to improve thermal efficiency.
This apartment will suit a first-time buyer or couple seeking a convenient Oxford base with strong local amenities, quick access to the station and Port Meadow on the doorstep. It also offers straightforward rental potential for an investor comfortable with the neighbourhood profile and the flood/crime considerations.
1 bedroom flat for sale in Edwin Court, Binsey Lane, OX2 — £250,000 • 1 bed • 1 bath • 476 ft²
2 bedroom apartment for sale in Water Eaton Road, North Oxford, OX2 — £400,000 • 2 bed • 2 bath • 590 ft²
2 bedroom apartment for sale in Baynhams Drive, Wolvercote, Oxford, OX2 — £425,000 • 2 bed • 1 bath • 770 ft²
2 bedroom apartment for sale in Walton Well Road, Oxford, Oxfordshire, OX2 — £575,000 • 2 bed • 2 bath • 846 ft²
2 bedroom apartment for sale in Binsey Lane, Oxford, OX2 — £375,000 • 2 bed • 1 bath • 628 ft²
2 bedroom apartment for sale in Turner Drive, Oxford, Oxfordshire, OX2 — £310,000 • 2 bed • 2 bath • 611 ft²














































































