16th-century Grade II cottage with large gardens and country views, needs sympathetic renovation..
- Grade II listed 16th-century cottage with strong period character
- Large, mature wrap-around gardens with landscaped areas and patio
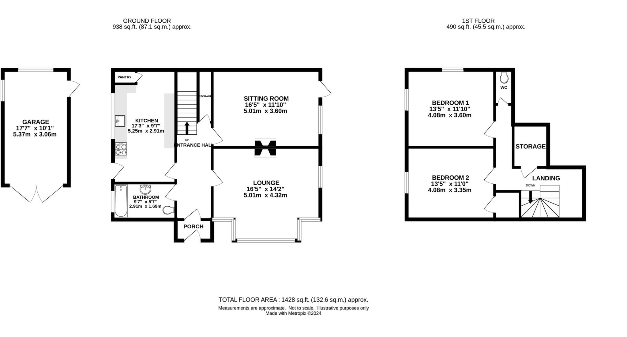
- Two double bedrooms plus loft/eaves storage and separate WC
- Detached single garage and off-road parking for two cars
- Outstanding open countryside views, Peak District border location
- Requires renovation and updating throughout
- Listed status restricts changes and may increase repair costs
- Stone walls likely uninsulated; glazing install date unknown
A rare Grade II listed 16th-century cottage set in a peaceful hamlet on the edge of the Peak District National Park. The house retains much period character — stone walls, stone path, bay window and fireplaces — and sits within large, mature, landscaped wrap-around gardens that provide privacy and excellent open countryside views.
Internally the cottage offers two double bedrooms, a lounge with bay window and fireplace, a separate sitting room, breakfast kitchen with pantry, bathroom, and useful eaves/storage. A detached single garage and off-road parking for two cars add practical convenience for daily use.
The property does require renovation and updating, and the listed status will place legal restrictions on alterations and repairs. The stone walls are assumed to lack insulation and the glazing install date is unknown; heating is by mains gas boiler and radiators. Council tax is described as expensive. These factors mean the house will suit buyers comfortable with conservation-led repairs or wishing to invest in sympathetic restoration rather than those seeking a turnkey home.
This cottage will appeal to downsizers or buyers seeking character and a large private garden in an affluent, low-crime rural setting, close to excellent village and nearby schools. For anyone wanting to modernise while preserving historic features, the site offers strong long-term appeal and scope to create a highly individual country home.
2 bedroom semi-detached house for sale in Cophurst, Shrigley Road, Pott Shrigley, SK10 5SE, SK10 — £432,500 • 2 bed • 1 bath • 918 ft²
2 bedroom terraced house for sale in King Sterndale, Buxton, SK17 — £335,000 • 2 bed • 1 bath • 384 ft²
3 bedroom detached house for sale in Kettleshulme, High Peak, SK23 — £585,000 • 3 bed • 1 bath • 6458 ft²
2 bedroom detached house for sale in Heald Wood Road, Woodley, Stockport, Greater Manchester, SK6 — £475,000 • 2 bed • 2 bath • 883 ft²
3 bedroom semi-detached house for sale in Macclesfield Road, Kettleshulme, High Peak, SK23 — £620,000 • 3 bed • 1 bath • 2048 ft²
3 bedroom semi-detached house for sale in Gin Clough, Rainow, Macclesfield, SK10 — £450,000 • 3 bed • 2 bath • 1734 ft²


















































