Spacious three-bedroom apartment near riverside walks and direct pier services.
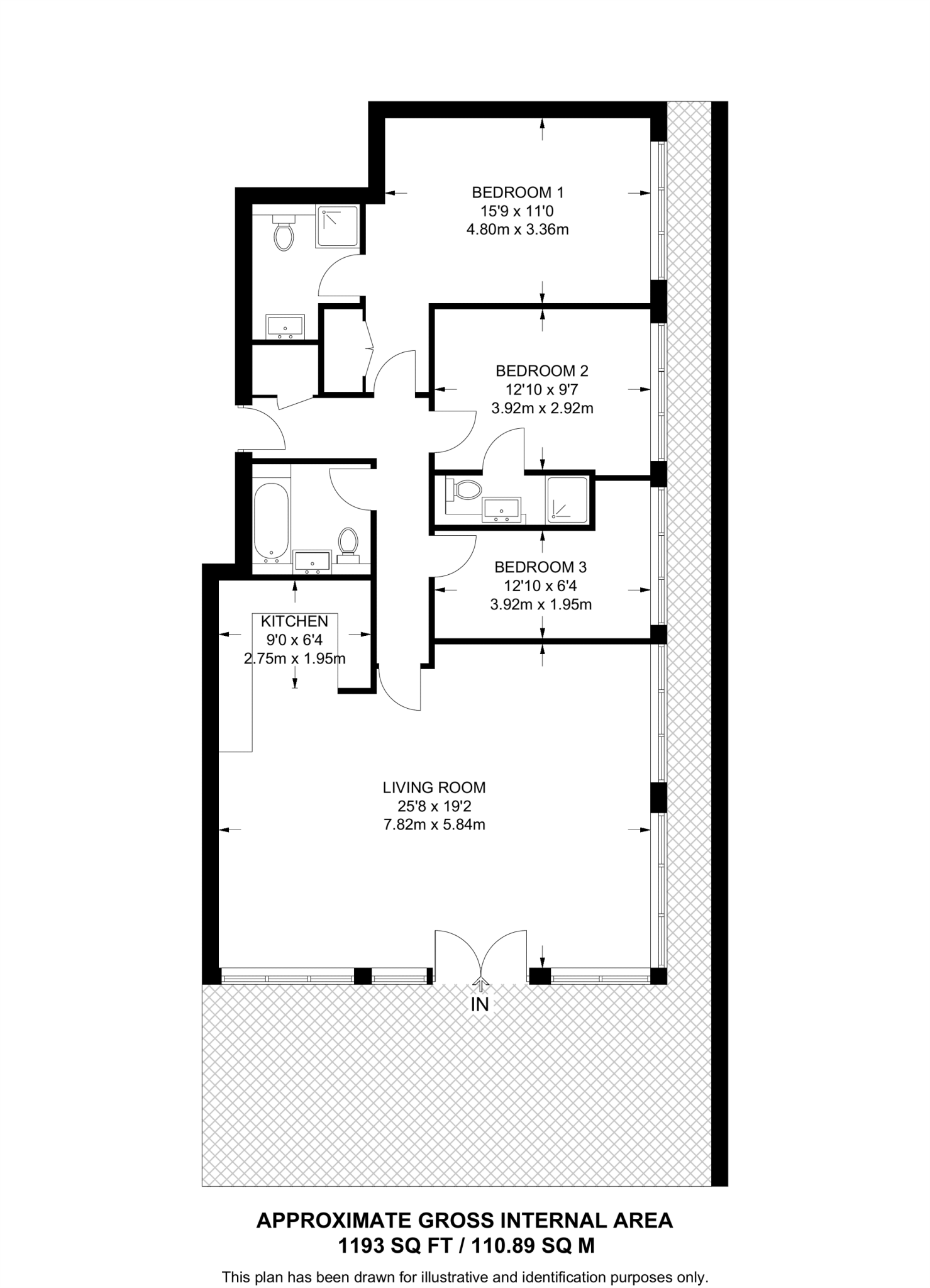
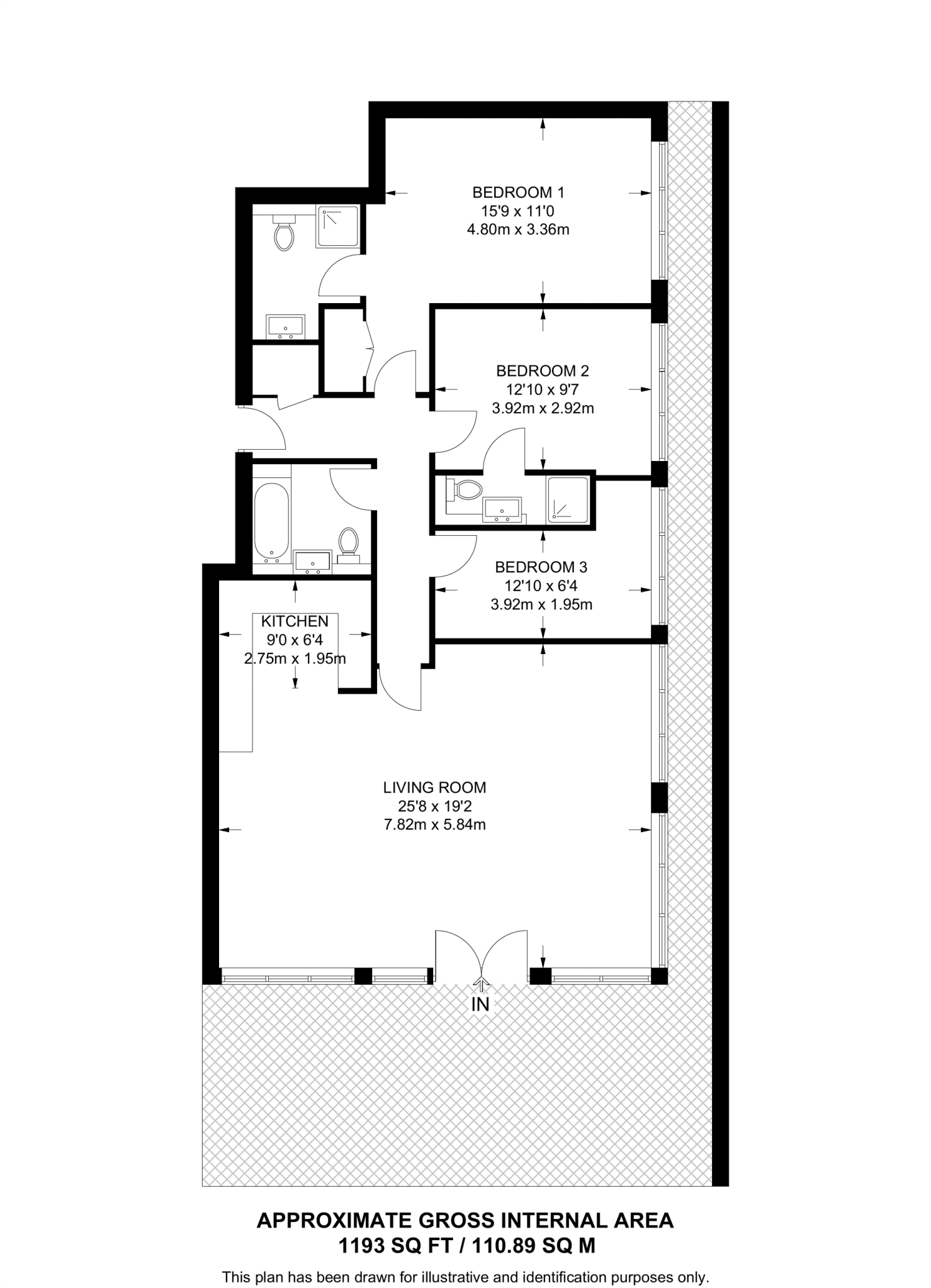
- 1,193 sq ft penthouse with large dual-aspect reception
- Private roof terrace with river and City views
- Open-plan kitchen and dining space, good natural light
- Three double bedrooms; two en suites plus family bathroom
- Built 1996–2002; modern construction and mains gas heating
- Leasehold with 973 years remaining; ground rent £492
- Double glazing fitted; install date unknown — verify
- Excellent transport links via Nelson Dock Pier and local buses
This fourth-floor penthouse offers bright, flexible living across an average-sized 1,193 sq ft layout. The large dual-aspect reception and open-plan kitchen create an easy entertaining flow, while three double bedrooms include two en suites and a separate family bathroom — ideal for family life or sharer households.
A standout is the private roof terrace with clear views across the river and the City, plus nearby riverside walks and Nelson Dock Pier for direct river services into central London. The development is modern (built 1996–2002) with mains gas heating, double glazing and good broadband and mobile coverage.
Practical points are straightforward: the property is leasehold with 973 years remaining and a ground rent of £492 (average). The flat is described in contemporary condition but is not newly refurbished; buyers should confirm glazing install dates and any maintenance history when viewing.
Overall this is a well-located, versatile three-bedroom penthouse that will suit families seeking local schools and riverside access, or investors targeting strong rental appeal close to central London transport links.
1 bedroom flat for sale in Rotherhithe Street, Rotherhithe, London, SE16 — £425,000 • 1 bed • 1 bath • 522 ft²
2 bedroom penthouse for sale in Providence Square, Shad Thames, London, SE1 — £1,075,000 • 2 bed • 2 bath • 1067 ft²
1 bedroom flat for sale in Rotherhithe Street, London, SE16 — £465,000 • 1 bed • 1 bath • 542 ft²
3 bedroom flat for sale in Admiral Place, London, SE16 — £625,000 • 3 bed • 2 bath • 1572 ft²
3 bedroom flat for sale in Odessa Street, Surrey Quays, London, SE16 — £795,000 • 3 bed • 2 bath • 1499 ft²
3 bedroom flat for sale in Rendel Apartments, Lock Side Way, Royal Docks, London, E16 — £800,000 • 3 bed • 2 bath • 1261 ft²


















































































































































































































































































































































































