**Standout Features:**
- Modern two-bedroom apartment ideal for first-time buyers or investors
- Open-plan living area with contemporary kitchen
- Master bedroom with walk-in wardrobe
- Allocated off-street parking
- Well-maintained communal outdoor space
**Potential Concerns:**
- Small overall size (512 sq ft)
- Located in an area with high crime rates
- Leasehold property, details of which should be confirmed
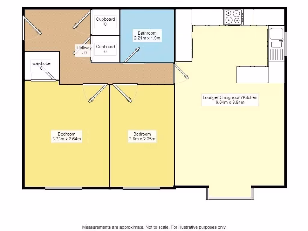
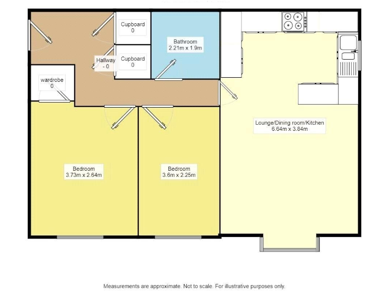
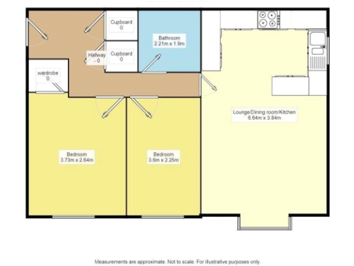
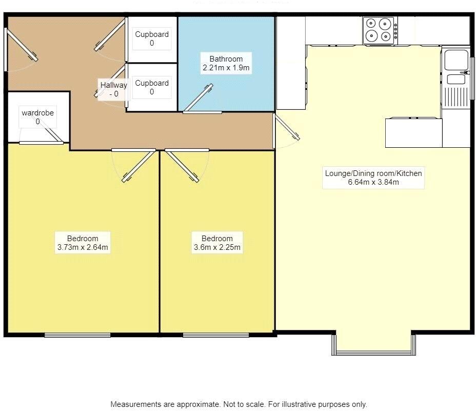
Discover a well-presented two-bedroom apartment in the sought-after Great Easthall development of Sittingbourne, perfect for first-time buyers or as a buy-to-let investment. This modern 1st-floor apartment boasts an inviting open-plan lounge and dining area, complete with a stylish kitchen featuring integrated appliances. The spacious master bedroom includes a convenient walk-in wardrobe, while the second bedroom offers flexibility for guests or a home office.
Convenience is key with allocated off-street parking and easy access to local amenities, including highly-rated primary and secondary schools nearby. Despite the property's smaller size, its modern features and appealing layout make it a comfortable choice in a vibrant community. However, buyers should note the area's high crime rates and its leasehold status. Seize this opportunity; properties like this don’t stay on the market for long!
1 bedroom apartment for sale in Limehouse Court, Sittingbourne, ME10 — £150,000 • 1 bed • 1 bath • 503 ft²
2 bedroom apartment for sale in Great Easthall Way, Barley House Great Easthall Way, ME10 — £169,950 • 2 bed • 1 bath • 581 ft²
2 bedroom apartment for sale in Abelyn Avenue, Sittingbourne, Kent, ME10 — £170,000 • 2 bed • 2 bath • 485 ft²
2 bedroom apartment for sale in Easton Drive, Sittingbourne, ME10 — £185,000 • 2 bed • 1 bath • 624 ft²
2 bedroom apartment for sale in Great Easthall Way, Barley House Great Easthall Way, ME10 — £165,000 • 2 bed • 1 bath • 605 ft²
2 bedroom flat for sale in Limehouse Court, Great Easthall, ME10 — £175,000 • 2 bed • 1 bath • 457 ft²






































































