Spacious Victorian family home facing Plumstead Common with south garden and strong transport links.
Overlooks Plumstead Common with direct open-space views
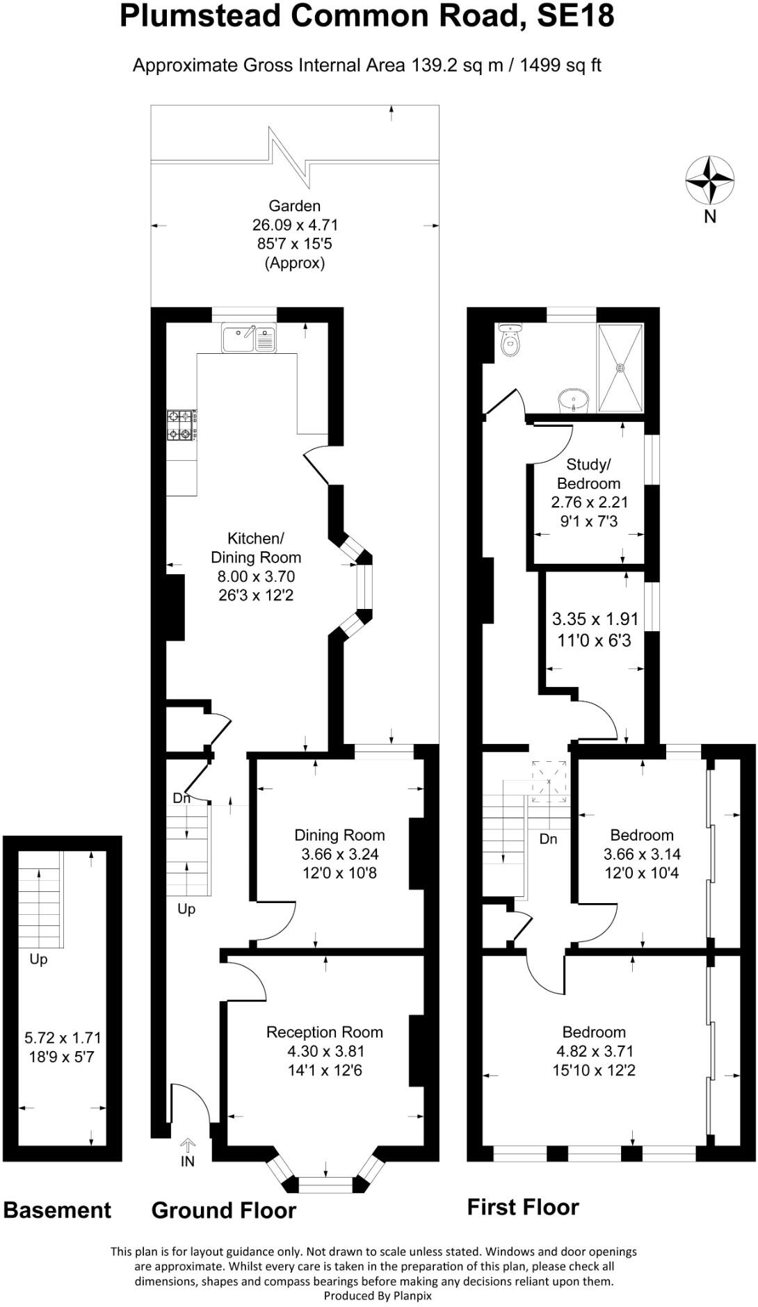
Set directly overlooking Plumstead Common, this four-bedroom Victorian terrace delivers generous family accommodation across multiple floors. High ceilings, a front sash bay and period character combine with neat decor throughout to create a comfortable, largely move-in-ready home. The south-facing garden is a notable asset, providing private outdoor space and strong natural light.
Practical benefits include gas central heating, double glazing and fast broadband/mobile signal — useful for families and commuters alike. Three nearby bus routes give easy access into Woolwich town centre and connections for the Elizabeth Line, DLR and Overground, supporting a straightforward commute.
The layout features a lounge, second reception room and a spacious kitchen/diner, plus four bedrooms and a large upstairs shower room. For some buyers, a single main bathroom may be constraining at peak times; further bathroom addition or reconfiguration could add value. The property sits in a neighbourhood popular with commuters and young families, close to several 'Good' primary schools and community amenities.
Overall this freehold Victorian terrace is a practical family purchase with scope for modest updating or reconfiguration to suit modern family life. It offers strong outdoor space, period charm and excellent transport links, balanced by the need to consider bathroom capacity and any personal preferences for layout changes.
4 bedroom terraced house for sale in Wernbrook Street, Plumstead, London, SE18 — £525,000 • 4 bed • 1 bath • 1234 ft²
4 bedroom terraced house for sale in Pegwell Street, Plumstead, SE18 — £550,000 • 4 bed • 2 bath • 1274 ft²
4 bedroom terraced house for sale in Plumstead Common Road, London, SE18 — £650,000 • 4 bed • 2 bath • 1545 ft²
4 bedroom end of terrace house for sale in Parkdale Road, Plumstead, London, SE18 1RW, SE18 — £575,000 • 4 bed • 2 bath • 1182 ft²
4 bedroom terraced house for sale in Purrett Road, Plumstead, London, SE18 — £550,000 • 4 bed • 2 bath • 1486 ft²
3 bedroom semi-detached house for sale in Plum Lane, London, SE18 — £725,000 • 3 bed • 2 bath • 1493 ft²


















































































