**Standout Features:**
- Spacious barn-style end-of-terrace house with modern design
- 4 bedrooms (including 2 ensuites) and 3.5 bathrooms
- Generous 137 sqm (0.033 acre) plot with a secluded garden
- Double carport and potential for seamless family living
- Built in 2014, offering energy efficiency with EPC rating of C
**Overview:**
This inviting barn-style end-of-terrace home, measuring 121 sqm (1305 sqft), is a modern retreat perfect for families or first-time buyers seeking a blend of tranquil village charm and contemporary living. Its four well-appointed bedrooms, including two with ensuite bathrooms, ensure privacy and convenience for all occupants. The open and airy ground floor features a guest cloakroom, while recent decorations add to the fresh atmosphere of this chain-free property.
The exterior, marked by its distinctive slate roof and black cladding, complements the light-filled interiors. A double carport and a generously sized garden bordered by mature trees offer a peaceful outdoor sanctuary ideal for gatherings or simply unwinding after a busy day.
Nestled in a community-rich village, you'll benefit from nearby local amenities, reputable primary schools like Meldreth and Foxton, and excellent transport links for easy commutes. While the local secondary options yield mixed results, the blend of a friendly neighborhood atmosphere and accessible conveniences makes this home an exclusive opportunity you won't want to miss. With an affordable price point of £525,000, and the potential for personal touches to enhance its charm, inquire today and make this unique property your own!
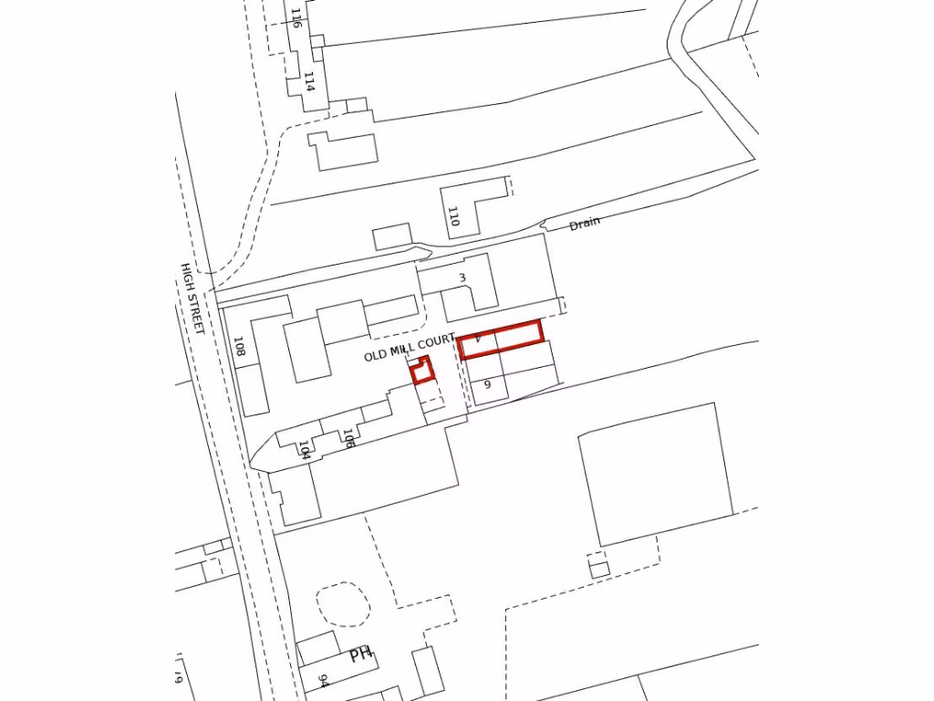
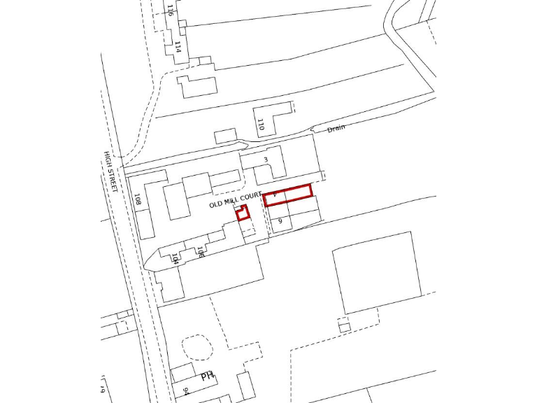
4 bedroom terraced house for sale in Old Mill Court, Meldreth, Royston, SG8 — £525,000 • 4 bed • 3 bath • 1275 ft²
2 bedroom detached bungalow for sale in Cam Farm, North End Meldreth, SG8 — £500,000 • 2 bed • 2 bath • 1177 ft²
3 bedroom detached house for sale in Millcroft Court, Barkway, Royston, SG8 — £800,000 • 3 bed • 2 bath • 2056 ft²
2 bedroom detached house for sale in North End, Meldreth, SG8 — £650,000 • 2 bed • 2 bath • 1869 ft²
4 bedroom detached house for sale in Brewery Lane, Meldreth, Cambridgeshire, SG8 — £1,200,000 • 4 bed • 3 bath • 3019 ft²
3 bedroom semi-detached house for sale in Pipers Close, Fowlmere, SG8 — £475,000 • 3 bed • 2 bath • 1179 ft²


























































































