Compact, well-kept one-bed ideal for first buyers or buy-to-let.
First (top) floor quarter-villa flat, bright lounge and large double bedroom
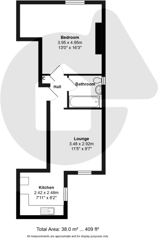
This well-presented 1-bedroom quarter villa sits on the preferred first (top) floor of a traditional period building on West Princes Street. At about 409 sq ft it offers compact, efficient accommodation with a bright lounge, modern fitted kitchen and a large front-facing double bedroom — a straightforward, low-maintenance home for a single person or couple.
Practical features include gas central heating, double glazing, a modern three-piece bathroom and a useful walk-in storage cupboard off the hall. The building is set back from the road with well-kept communal gardens to front and rear, and the flat is accessed via an attractive communal close. Helensburgh town centre, local amenities and the rail link to Glasgow are all within an easy walk, making this an appealing option for first-time buyers or buy-to-let investors seeking steady tenant demand.
Buyers should note the property is small (circa 409 sq ft) and sits within an area classified as very deprived, which can affect long-term resale or rental values. The price reflects the compact size and local market conditions. Overall, this is a tidy, move-in-ready flat with period character, sensible running costs and easy access to town and transport links.
2 bedroom flat for sale in 8A Glenborne Court, West King Street, Helensburgh G84 8QX, G84 — £145,000 • 2 bed • 1 bath • 788 ft²
2 bedroom flat for sale in East Princes Street, Helensburgh, Argyll and Bute, G84 — £95,000 • 2 bed • 1 bath
4 bedroom villa for sale in 28 West King Street, Helensburgh G84 8EB, G84 — £285,000 • 4 bed • 2 bath • 1500 ft²
2 bedroom flat for sale in West Princes Street, Helensburgh, Dunbartonshire, G84 — £95,000 • 2 bed • 1 bath • 581 ft²
1 bedroom flat for sale in 35 East King Street, Helensburgh G84 7QJ, G84 — £65,000 • 1 bed • 1 bath • 357 ft²
2 bedroom flat for sale in 1/1, 26 John Street, Helensburgh, G84 8BA, G84 — £95,000 • 2 bed • 1 bath • 645 ft²


















































