Spacious two-bed flat, long lease and two parking spaces — ideal near Radlett station..
Bright 700+ sq ft two-bedroom first-floor apartment
Short walk to Radlett station — 25 minutes to London Kings Cross
Two parking spaces: one undercover and one allocated
Leasehold with 173 years remaining
Currently let at £1,900 pcm until 29 February (income-producing)
Service charge ~£2,208pa; ground rent £150pa
Area records above-average crime — consider security implications
No flood risk; excellent broadband and mobile signal
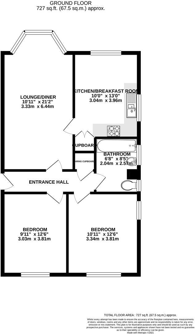
This well-presented two-bedroom first-floor apartment in Craigmount, Radlett, offers over 700 sq ft of practical living space and reliable rental income. The bay-front living/dining room and dual-aspect kitchen create a bright, comfortable home. Two allocated parking spaces (one undercover) add real convenience in a town-fringe location.
The flat is leasehold with 173 years remaining and is currently let at £1,900 pcm until 29 February, making it immediately income-producing for an investor. Service charge and ground rent are material ownership costs to budget for: approximately £2,208 per year service charge and £150 ground rent.
Location is a strong feature: a short walk to Radlett mainline station with 25-minute services to London and easy access to Radlett village shops, schools and local amenities. Broadband and mobile signal are excellent and there is no flood risk. Built in the mid-20th century, the apartment sits in a semi-detached block with double glazing and gas central heating.
Notable drawbacks are factual and should be considered: the wider area records above-average crime levels, and as a leasehold property there are ongoing charges and restrictions. The interior appears well kept but the building's 1950s–1960s construction and unspecified dates for glazing and services mean some buyers may want to budget for updating or checks (electrical, boiler service) on acquisition.
3 bedroom apartment for sale in Shenley Hill, Radlett, Hertfordshire, WD7 — £845,000 • 3 bed • 2 bath • 1329 ft²
2 bedroom apartment for sale in Park Road, Radlett, Hertfordshire, WD7 — £520,000 • 2 bed • 2 bath • 918 ft²
2 bedroom apartment for sale in Brook Court, Watling Street, Radlett, Hertfordshire, WD7 — £335,000 • 2 bed • 1 bath • 690 ft²
Studio flat for sale in Watling Street, Radlett, WD7 — £315,000 • 1 bed • 1 bath • 594 ft²
1 bedroom apartment for sale in Brook Court, Watling Street, Radlett, Hertfordshire, WD7 — £250,000 • 1 bed • 1 bath • 712 ft²
3 bedroom apartment for sale in Craigmount, Radlett WD7 — £435,000 • 3 bed • 1 bath • 858 ft²














































