Spacious village home with gated parking and generous garden.
Three double bedrooms with master en-suite and countryside views
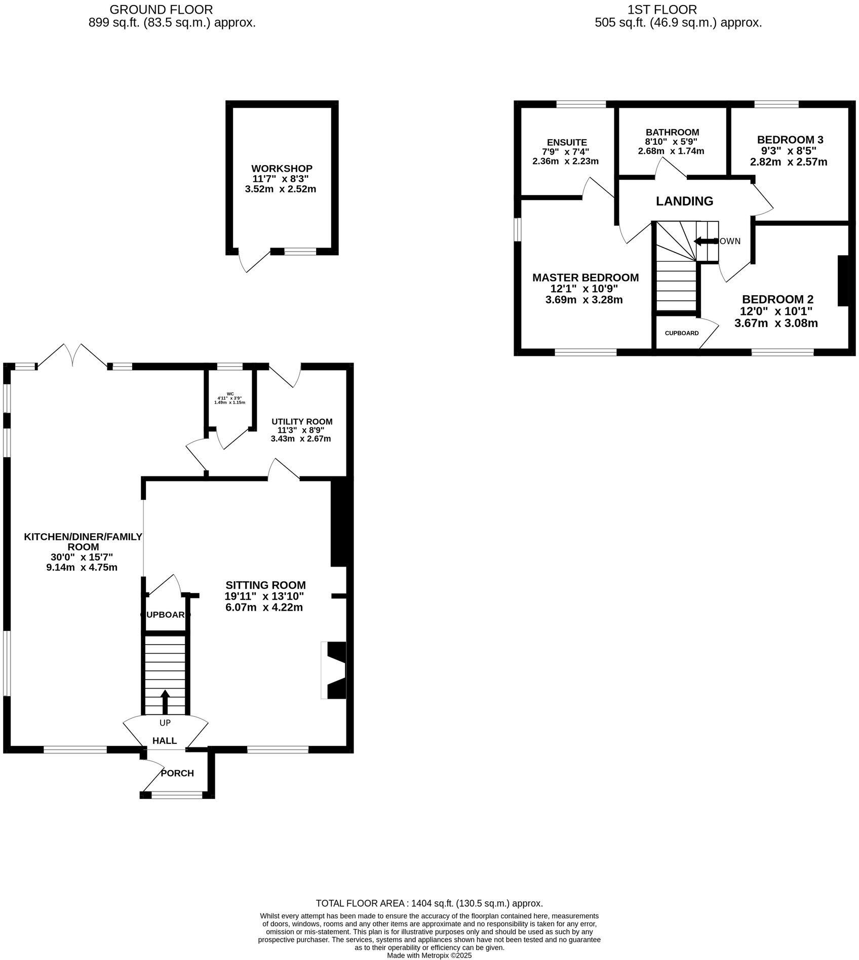
Set on a gated plot in the peaceful hamlet of Kinsey Heath, this extended three-bedroom semi-detached cottage combines Victorian character with contemporary open-plan living. The ground floor has generous room proportions, a sociable kitchen/diner with French doors to the garden, and a cosy sitting room with a log-burning stove — ideal for family life and entertaining.
The property has been newly renovated and is offered chain free, ready to move into. All bedrooms enjoy countryside views; the master includes an en-suite shower room and there is a family bathroom. Practical extras include a utility room, ample off-street parking on a large gravel driveway and a versatile outbuilding suitable for storage, a workshop or a home office (may require adaptation for other uses).
Important facts: the house is oil-heated with a boiler and radiators, is of solid brick construction (likely uninsulated within walls), and holds an EPC rating of E. Council tax is above average for the area. Broadband and mobile signals are strong, and the location suits those wanting quiet village life with good access to Nantwich/Crewe and local schools.
3 bedroom character property for sale in Corbrook, Audlem, CW3 — £425,000 • 3 bed • 1 bath • 1281 ft²
3 bedroom detached house for sale in Audlem Road, Crewe, CW3 — £350,000 • 3 bed • 2 bath • 1260 ft²
2 bedroom semi-detached house for sale in Hen Cottage, Heathfield Road, Audlem, CW3 — £400,000 • 2 bed • 1 bath • 989 ft²
3 bedroom semi-detached house for sale in Burleydam, Whitchurch, SY13 — £375,000 • 3 bed • 1 bath • 1280 ft²
3 bedroom detached house for sale in Damson Lane, Cox Bank, Cheshire, CW3 — £400,000 • 3 bed • 1 bath • 1455 ft²
4 bedroom detached house for sale in Green Lane, Audlem, CW3 — £715,000 • 4 bed • 2 bath • 1652 ft²






















































































































