**Standout Features:**
- Leasehold term of 125 years starting from 2006
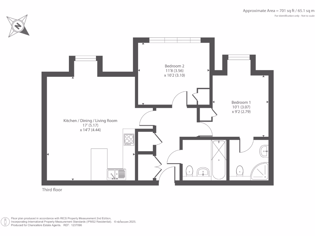
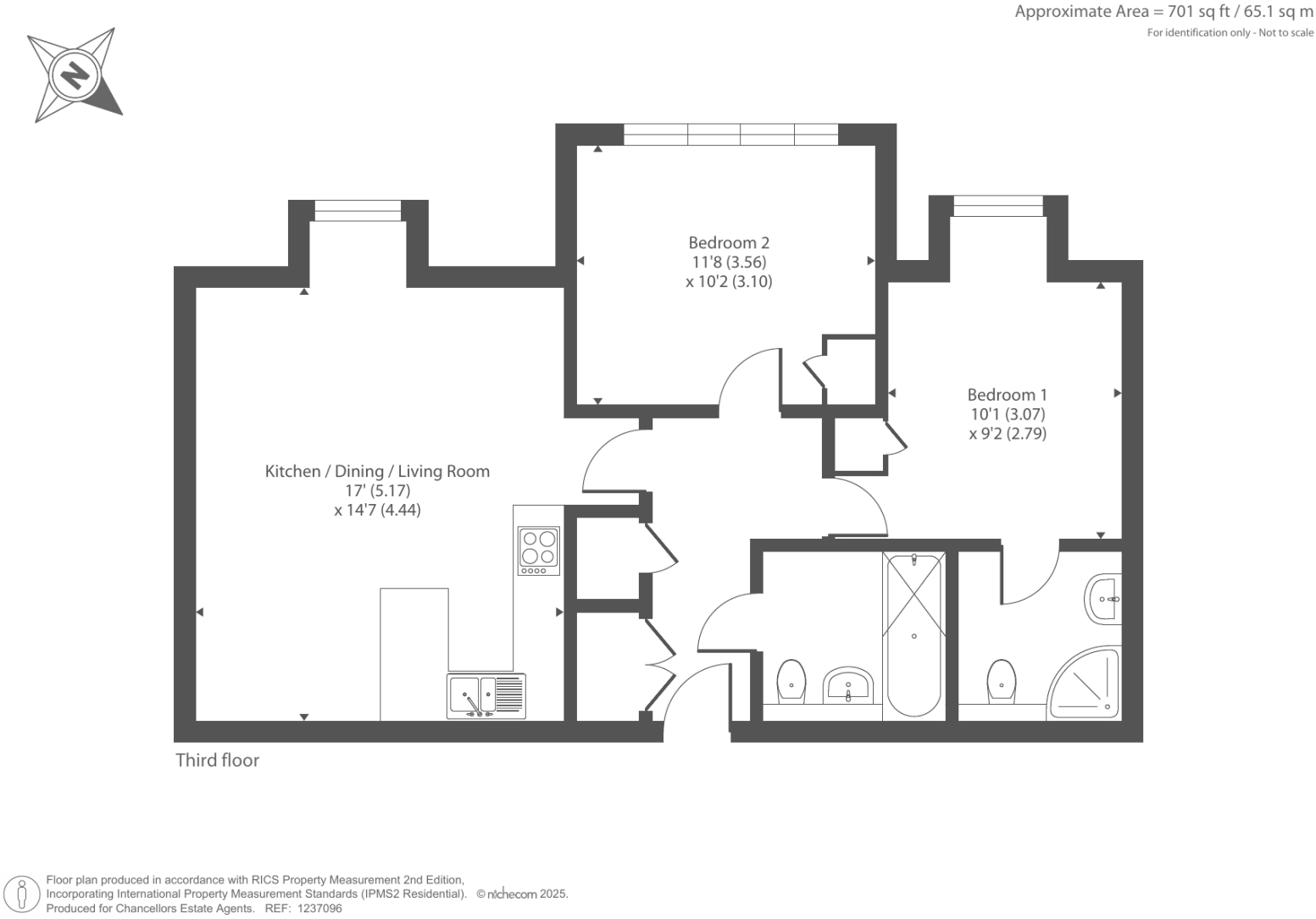
- Two double bedrooms, including a master bedroom with en-suite
- Modern open-plan kitchen/living/dining area
- Allocated off-street parking
- Chain-free sale, enabling a quicker purchase
**Concerns to Note:**
- Only 8 years remaining on the lease, which may hinder mortgage lending options
- Located in an area with high crime rates
Experience modern living in this stylish, contemporary apartment located in a vibrant multicultural neighborhood of Oxford (OX4 2FW). This inviting flat boasts two spacious double bedrooms, with an en-suite bathroom in the master suite, ideal for comfortable living or investment potential. The extensive open-plan layout merges kitchen, living, and dining spaces, perfect for entertaining or relaxing at home. With no onward chain, this property is ready for immediate occupancy.
While the apartment is located within walking distance of local amenities, it does face the challenge of a short lease, with only 8 years left—appealing primarily to cash buyers or those with alternative financing options. Yet, the fast broadband and excellent mobile signal ensure you’re connected, while allocated off-street parking adds convenience.
This unit offers proximity to well-rated primary and secondary schools, making it a potential family-friendly option. Due to its contemporary design and desirable location, this property represents an excellent opportunity for first-time buyers and investors who can envision its future potential amid the urban landscape. Don’t miss your chance—properties in this area can move quickly!
2 bedroom flat for sale in East Oxford, Oxford, OX4 — £360,000 • 2 bed • 1 bath • 739 ft²
2 bedroom flat for sale in East Oxford, Oxfordshire, OX4 — £325,000 • 2 bed • 1 bath • 844 ft²
2 bedroom flat for sale in Littlemore, Oxford, OX4 — £285,000 • 2 bed • 2 bath • 667 ft²
2 bedroom flat for sale in East Oxford, Oxford, OX4 — £325,000 • 2 bed • 2 bath • 795 ft²
2 bedroom flat for sale in Cowley, Oxfordshire, OX4 — £270,000 • 2 bed • 1 bath • 547 ft²
2 bedroom flat for sale in North Summertown, Oxfordshire, OX2 — £375,000 • 2 bed • 2 bath • 767 ft²






















































































































