**Standout Features:**
- Two bedrooms, one ideal for a home office
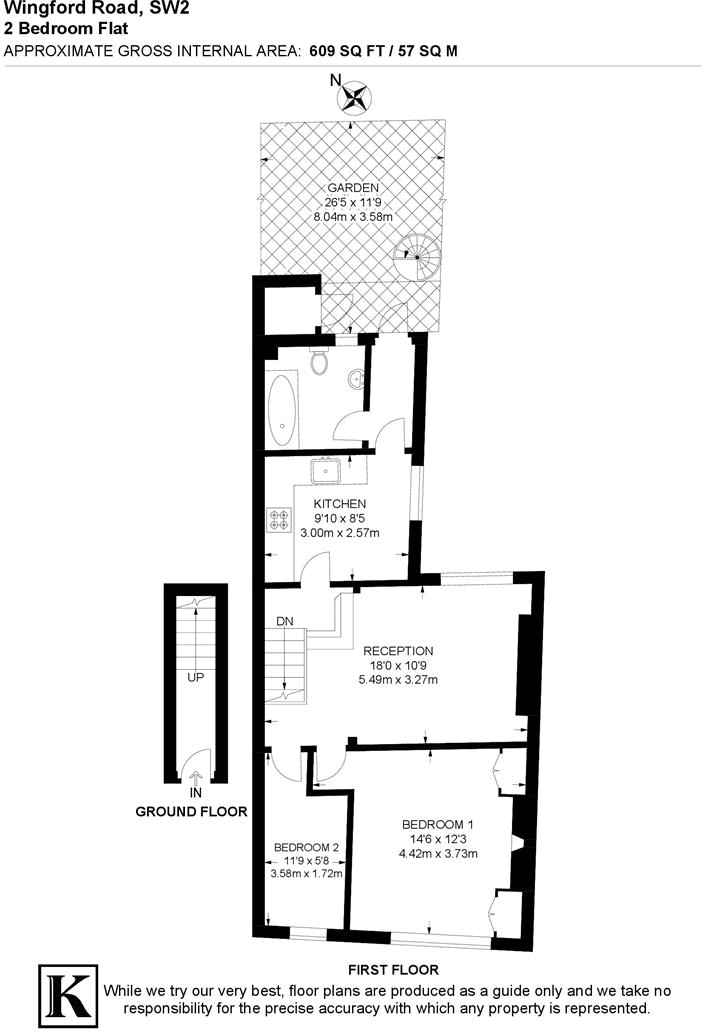
- Private landscaped garden with patio and decked areas
- Charming Victorian maisonette with a private entrance
- Demised loft space with extension potential (subject to planning permission)
- Recently renovated throughout
- Quiet residential street in a cosmopolitan area
**Summary:**
Discover this enchanting two-bedroom Victorian maisonette located on the serene Wingford Road, perfectly positioned between Brixton and Clapham in SW2. This newly renovated home boasts over 600 square feet of flexible living space, complete with a private entrance and a beautifully landscaped garden designed for outdoor dining and relaxation. The spacious reception area features engineered wooden flooring and bespoke shelving, creating a welcoming atmosphere perfect for entertaining.
The separate kitchen showcases modern yellow cabinetry and offers direct access to the garden, while both bedrooms provide a serene retreat for residents. With the added bonus of a demised loft area that holds significant potential for future expansion (STPP), this property caters to both lifestyle needs and investment opportunities. Enjoy the charm of a friendly neighborhood, complemented by nearby shops and excellent transport links that make commuting a breeze. This maisonette strikes the ideal balance for professionals and small families alike—embrace the lifestyle and make this characterful home yours before it’s gone!































































