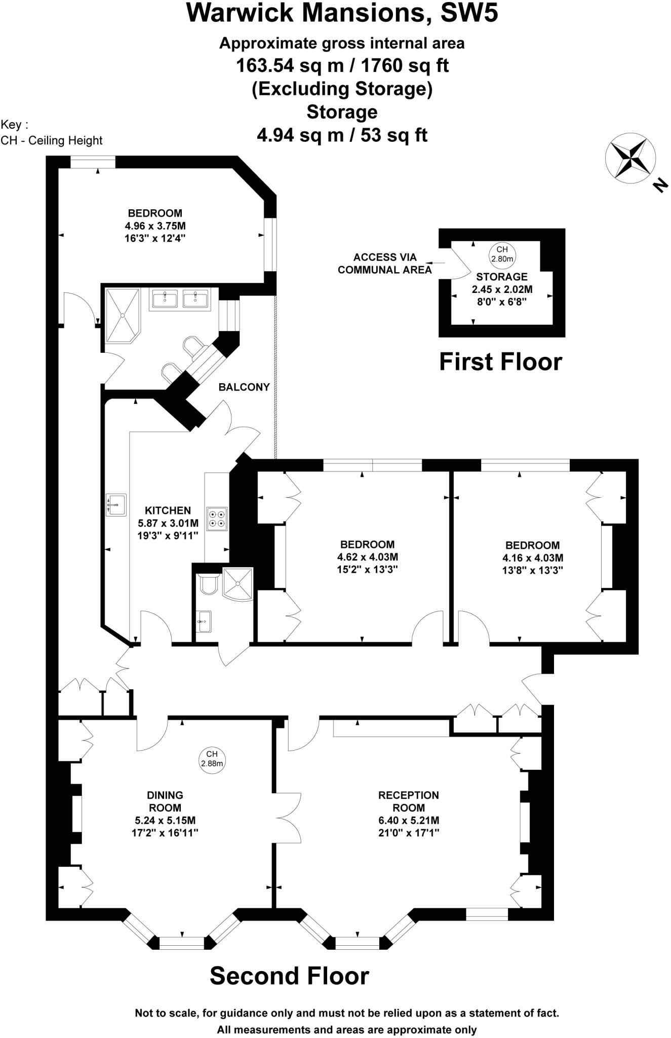
Spacious period apartment with secure storage and west-facing balcony.
Large lateral apartment — approximately 1,760 sq ft
Set within a prestigious red-brick mansion block, this expansive mid-floor apartment combines period grandeur with contemporary fittings. The grand double reception, twin working fireplaces and high ceilings create an elegant entertaining space, while large windows flood rooms with natural light. A west-facing balcony offers evening sun and views over Cromwell Crescent.
The principal suite is secluded and fitted with bespoke storage and a chic en suite; two further double bedrooms and a second bathroom complete the well-proportioned layout. Luxury wood flooring and a thoughtfully designed kitchen add modern comfort, while a highly secure private storeroom with alarm and mains electricity is a rare practical benefit.
Practical points to note: the property is leasehold (extremely long 950-year lease) with a small ground rent of £50. The building dates from before 1900 and has solid brick walls (no assumed cavity insulation), so owners should consider potential insulation or upgrade works. Council tax is described as quite expensive.
This apartment will suit buyers seeking spacious, characterful London living close to strong schools and excellent local amenities. It offers immediate comfort with clear potential to personalise finishes and improve energy performance over time.
2 bedroom flat for sale in Nevern Square, London, SW5 — £1,300,000 • 2 bed • 2 bath • 1098 ft²
3 bedroom flat for sale in Old Brompton Road, London, SW5 — £1,900,000 • 3 bed • 3 bath • 1701 ft²
2 bedroom apartment for sale in 29 Warwick Mansions, SW5 — £700,000 • 2 bed • 1 bath • 602 ft²
3 bedroom flat for sale in Old Brompton Road, London, SW5 — £3,250,000 • 3 bed • 3 bath • 1841 ft²
4 bedroom flat for sale in Trebovir Road, London SW5 — £3,300,000 • 4 bed • 3 bath • 2205 ft²
2 bedroom apartment for sale in Nevern Mansions, 27A Nevern Square, London, SW5 — £1,300,000 • 2 bed • 3 bath • 1098 ft²










































































