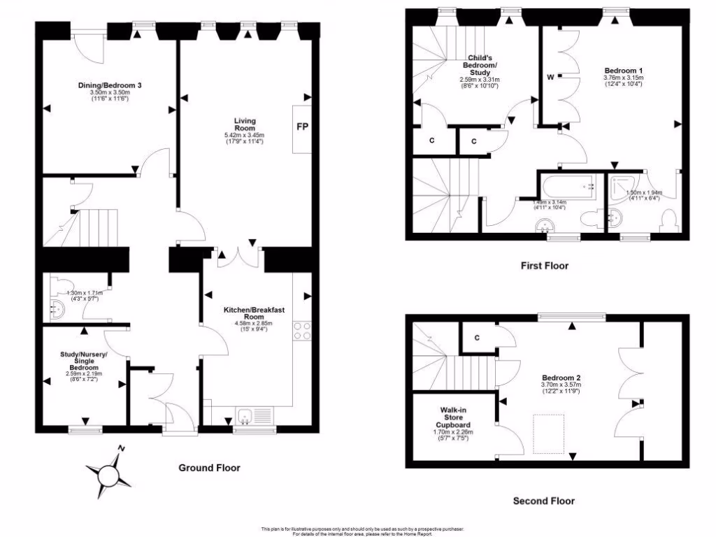
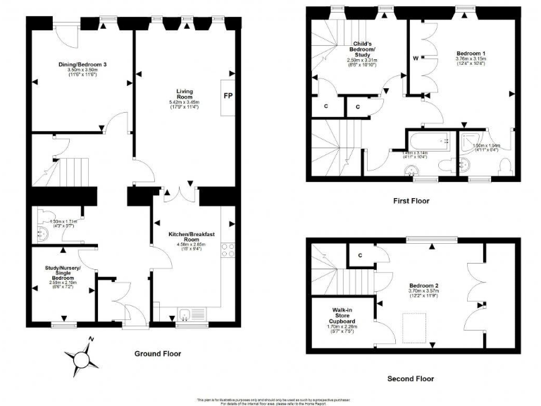
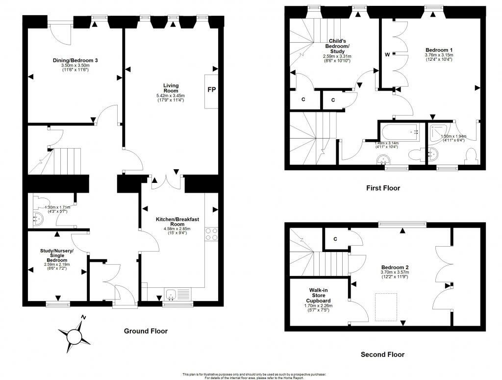
**Standout Features:**
- Exclusive four-bedroom mid-terrace home in prestigious Liberton
- Beautiful conversion of a Victorian convent with period features
- Flexible three-floor layout with modern breakfasting kitchen
- Two reception rooms, including a potential third bedroom
- Private parking and access to landscaped communal gardens
- Stunning views of Arthur's Seat
- High ceilings and characterful architectural details
**Potential Downsides:**
- Requires factoring fees of around £400/quarter
- Council tax may be considered expensive
- Area classified as deprived
Nestled in the sought-after suburb of Liberton, this stunning four-bedroom mid-terrace home is a rare find, perfectly blending historic charm with modern convenience. Part of the beautifully converted Mount Alvernia, this property showcases exquisite period features such as high ceilings, cusped windows, and a warm, inviting fireplace, creating a sense of elegance throughout. Enjoy flexible living across three levels, ideal for families or investors—two spacious reception rooms include a bright breakfasting kitchen with integrated appliances and the option for a third bedroom or dedicated study.
Outside, you'll appreciate private parking, serene communal gardens, and breathtaking views of Arthur's Seat, perfect for outdoor relaxation. With efficient energy ratings and ample storage, this property embodies comfort and functionality. While factoring fees and council tax are notable considerations, they don’t overshadow the unique opportunity to own a piece of history in a tranquil suburban setting. This home is a must-see for those looking to invest in a lifestyle of serenity and sophistication. Act fast, as opportunities like these are rare and won’t last long!
3 bedroom semi-detached house for sale in 85 Lasswade Road, Mount Alvernia, Edinburgh, EH16 6SZ, EH16 — £430,000 • 3 bed • 2 bath • 1122 ft²
2 bedroom ground floor flat for sale in 81/2 Kirk Brae, Liberton, Edinburgh EH16 6JJ, EH16 — £340,000 • 2 bed • 1 bath • 1119 ft²
5 bedroom terraced house for sale in 35 Liberton Brae, Liberton, Edinburgh, EH16 6AG, EH16 — £515,000 • 5 bed • 1 bath • 1165 ft²
4 bedroom semi-detached house for sale in 10 Kirkgate, Liberton, Edinburgh, EH16 6RY, EH16 — £525,000 • 4 bed • 2 bath • 1065 ft²
4 bedroom apartment for sale in 71/3 Carnbee Avenue, Liberton, Edinburgh, EH16 6GA, EH16 — £675,000 • 4 bed • 3 bath • 2756 ft²
3 bedroom semi-detached house for sale in The Stables, Southfield House, 83 Carnbee Avenue, Liberton, Edinburgh, EH16 6GA, EH16 — £525,000 • 3 bed • 2 bath • 1345 ft²














































































