**Standout Features:**
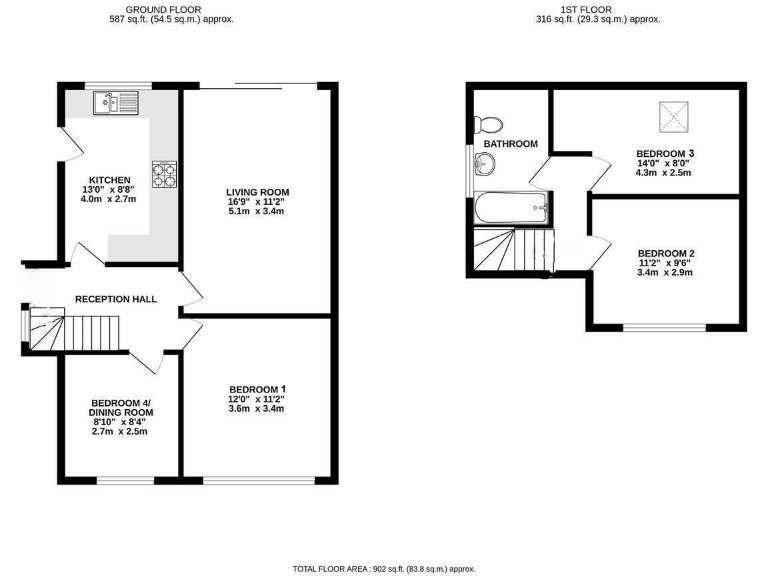
- Deceptively spacious semi-detached house with modern renovations
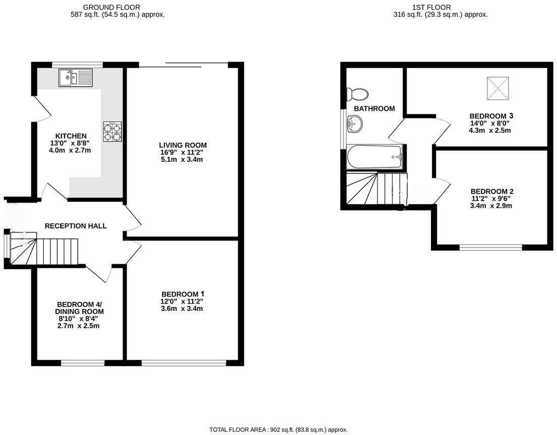
- Three well-proportioned bedrooms and a contemporary bathroom
- Two versatile reception rooms, including a spacious living area with patio doors
- Large, private garden—great for families or entertaining
- Off-road parking with a tidy front garden
- Located in the sought-after village of Ruyton XI Towns with low crime rates and community amenities
This stunning semi-detached home in the charming village of Ruyton XI Towns offers an appealing blend of modern living and traditional character. Recently updated, the property boasts a spacious living room with abundant natural light, a newly fitted kitchen with integrated appliances, and three inviting bedrooms across two levels. The large rear garden provides a serene outdoor space, perfect for family gatherings or enjoying nature.
With no upward chain, this freehold property is ready for immediate occupancy, making it an ideal choice for families or first-time buyers seeking a peaceful and affable setting. The village’s lovely historical ambiance, along with local conveniences like schools and shops, amplifies its allure. While the house is in great condition, it offers potential for future personalization, whether you want to expand the living space or enhance the garden. This property truly embodies comfort and community—don’t miss your chance to secure a home in this sought-after location!



























































