**Standout Features:**
- **Location:** Peaceful rural setting near Dunsford village, Dartmoor National Park.
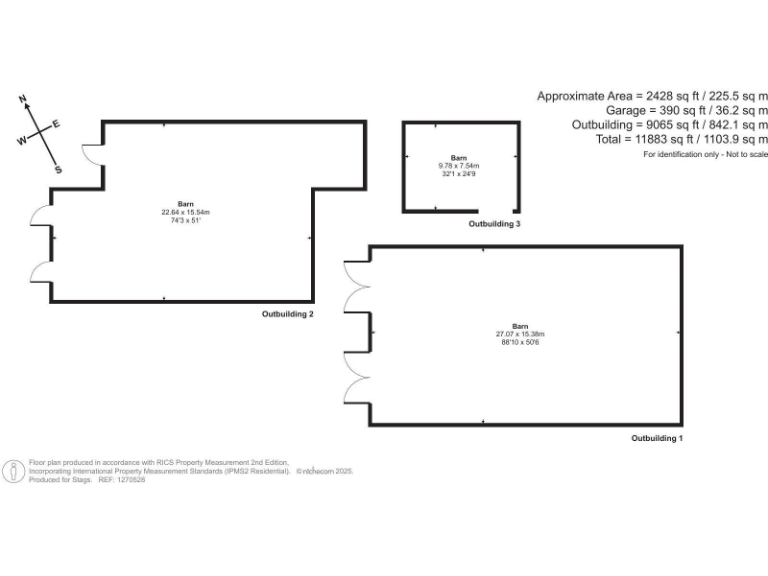
- **Size:** Spacious 4-5 bedroom bungalow with a total square footage of 2,428.
- **Land:** 22.22 acres, including pasture and ancient woodland.
- **Potential:** Possible annexe conversion (subject to planning).
- **Outbuildings:** Substantial agricultural buildings for storage/workspace.
- **Sustainability:** Solar panel system for energy efficiency.
**Potential Downsides:**
- **Broadband:** Very slow internet speeds.
- **Council Tax:** Band F, relatively high.
- **Maintenance:** Older construction (built in 1972) may require updating.
**Summary:**
Discover Kelland Copse, a versatile and spacious detached bungalow nestled in a tranquil rural hamlet, just a mile from the charming village of Dunsford. Perfect for families or investors, this property boasts four generously sized bedrooms, including two en-suites, alongside a well-appointed kitchen and expansive living areas complete with a modern conservatory and breathtaking countryside views. The surrounding 22.22 acres of lush pastures and enchanting woodlands provide a serene backdrop for outdoor activities or future developments.
With significant potential for converting outbuildings and the option of adding an annexe, this home truly embodies the spirit of rural living, while eco-friendly features enhance its appeal. Close to excellent local schools and only 8 miles from Exeter’s vibrant amenities, this property offers a rare blend of comfort, security, and future promise. Don't miss the opportunity to make this unique countryside retreat your own!
Land for sale in Dunsford, Exeter, EX6 — £1,250,000 • 4 bed • 3 bath • 2428 ft²
4 bedroom bungalow for sale in Dunsford, Exeter, EX6 — £790,000 • 4 bed • 3 bath • 2428 ft²
4 bedroom bungalow for sale in Kennford, Exeter, Devon, EX6 — £1,200,000 • 4 bed • 3 bath • 2414 ft²
4 bedroom detached house for sale in Tedburn St Mary, EX6 — £1,200,000 • 4 bed • 2 bath • 2161 ft²
3 bedroom detached house for sale in Dunchideock, Exeter, EX6 — £685,000 • 3 bed • 2 bath • 1458 ft²
3 bedroom detached house for sale in Bovey Tracey, Newton Abbot, Devon, TQ13 — £950,000 • 3 bed • 2 bath • 1066 ft²






































































































































