**Standout Features:**
- Stunning barn conversion with modern design, built in 2013
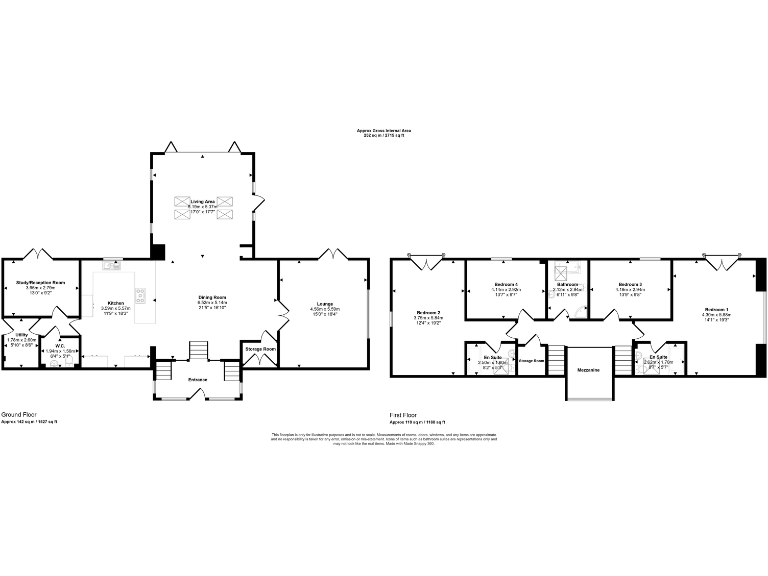
- Four bedrooms, two with en-suites
- Open plan kitchen, dining, and living area with expansive views
- Located in a secure gated community near Denbigh
- Large garden with beautiful countryside views
- Energy-efficient with solar panels and air source heat pump
- Off-street parking
**Potential Concerns:**
- Council tax rated quite expensive
- Broadband speeds are slow
- Average mobile signal reception
- Current area deprivation classification as very deprived
Experience the charm of rural living in this impeccably restored four-bedroom barn conversion, nestled just outside the historic town of Denbigh. With its panoramic views over the Vale of Clwyd and a secure gated community, this property offers both privacy and scenic beauty. The open-plan design features a modern kitchen with high-end fixtures, seamlessly flowing into a large living area complete with bi-fold doors that lead to patios—perfect for entertaining or enjoying tranquil evenings outdoors.
Upstairs, you will find a lavish master suite with stunning views and en-suite facilities, complemented by three additional bedrooms, one with its own private bath. The large garden is perfect for families and ideal for hosting gatherings, while the property's eco-friendly features, including 16 solar panels, promise energy savings and sustainability. While the property incurs a relatively high council tax and offers slow broadband, its unique charm, spacious layout, and renovation potential make it an exceptional family home or investment opportunity. Don’t miss out on the chance to own this remarkable property—schedule your viewing today!
4 bedroom end of terrace house for sale in Pennant Farm, Prion Rd, Denbigh, Denbighshire LL16 5ST, LL16 — £645,000 • 4 bed • 3 bath • 2016 ft²
4 bedroom barn conversion for sale in Prion Road, Denbigh, LL16 — £525,000 • 4 bed • 3 bath • 1864 ft²
4 bedroom house for sale in Mold Road, Denbigh, Denbighshire, LL16 — £375,000 • 4 bed • 3 bath • 1230 ft²
6 bedroom house for sale in Bodfari, Denbigh, LL16 — £799,995 • 6 bed • 4 bath • 2114 ft²
4 bedroom house for sale in Mold Road, Denbigh, LL16 — £465,000 • 4 bed • 2 bath • 1906 ft²
5 bedroom barn conversion for sale in Sun Bank, Llangollen, LL20 — £824,500 • 5 bed • 3 bath • 2688 ft²


































































































































































































































































