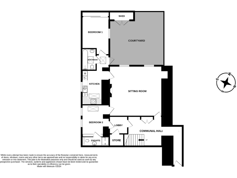
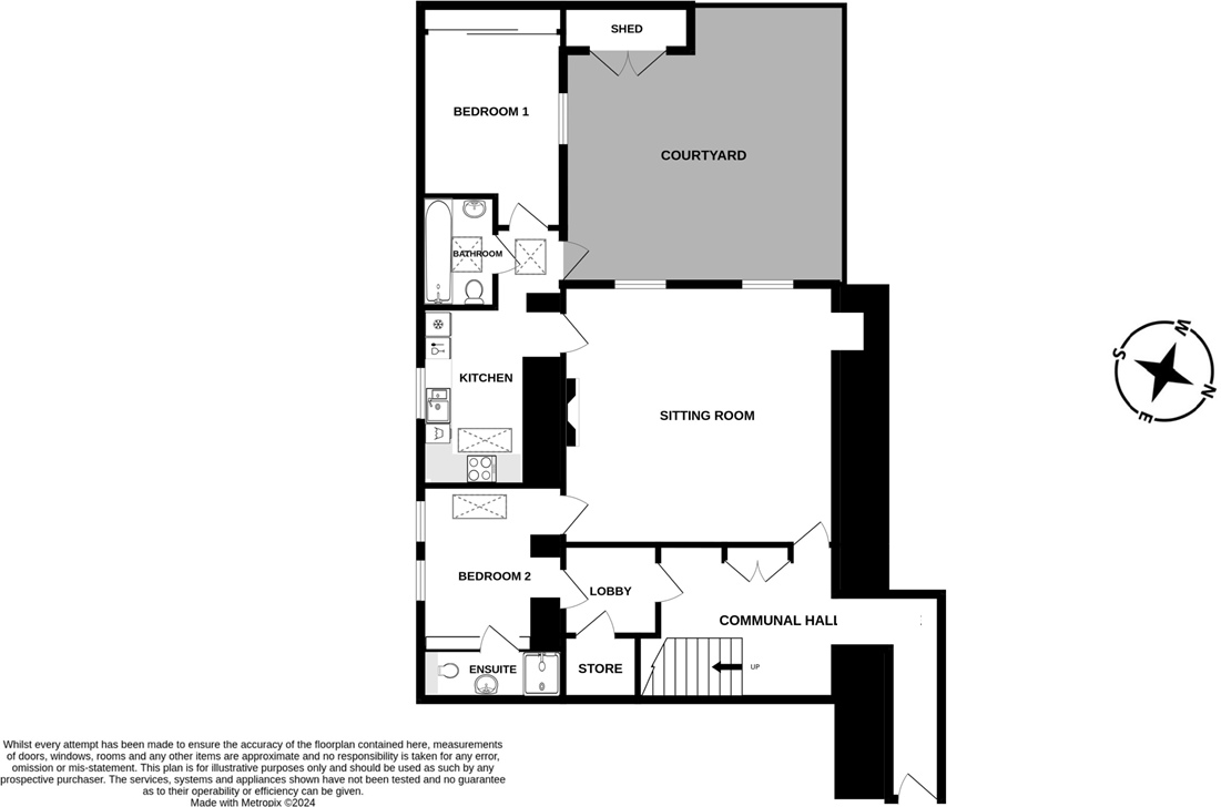
**Standout Features:**
- Charming Grade II Listed building
- Ground floor apartment with period character
- Two bedrooms, one with en-suite shower room
- Light-filled reception room with high ceilings
- Private enclosed courtyard garden and external storage
- Prime central location near amenities and the quay
- No onward chain for a smooth purchase
This delightful ground floor apartment, nestled within a historic Grade II Listed building, offers an attractive blend of period charm and modern convenience. Spanning an average of 620 square feet, this two-bedroom residence features a spacious reception room with high ceilings, original wooden floors, and period detailing that enhances its character. The separate fitted kitchen is equipped with modern appliances, ideal for culinary enthusiasts, while the two well-proportioned bedrooms include a sought-after en-suite shower room.
Step outside to discover a tranquil enclosed courtyard garden perfect for alfresco dining or a serene retreat. With its prime location just moments from town amenities and the beautiful quay, this property is perfect for families, first-time buyers, or investors seeking rental potential in a vibrant area. Though the listed status signifies some limitations for renovations, the charm and character of this home offer great potential for personalization within its accommodating layout.
Additional details such as affordable council tax, average crime rates, and excellent broadband speeds further enhance the appeal. Embrace the opportunity to own a piece of history—this property is ready for a new owner, and with no onward chain, it won't be available for long!
1 bedroom apartment for sale in The Quay, Wells-next-the-Sea, NR23 — £475,000 • 1 bed • 1 bath • 560 ft²
2 bedroom apartment for sale in Smugglers Cove, Northfield Lane, Wells-Next-The-Sea, Norfolk, NR23 — £350,000 • 2 bed • 1 bath • 704 ft²
1 bedroom apartment for sale in The Quay, Wells-next-the-Sea, NR23 — £499,950 • 1 bed • 1 bath • 648 ft²
1 bedroom apartment for sale in Mill Road, Wells-next-the-Sea, NR23 — £225,000 • 1 bed • 1 bath • 518 ft²
2 bedroom apartment for sale in Eagles Court, Wells-next-the-Sea, NR23 — £180,000 • 2 bed • 1 bath • 693 ft²
1 bedroom apartment for sale in Chain Free in Wells-next-the-Sea, NR23 — £290,000 • 1 bed • 1 bath • 470 ft²






























































































































































