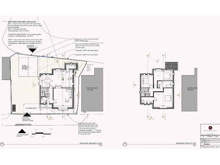
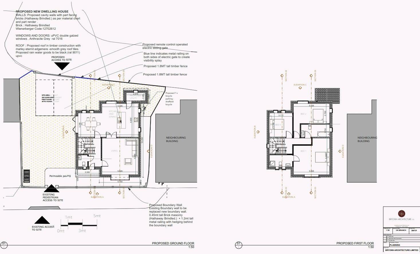
**Key Features:**
- Planning permission for a 5-bedroom detached house
- Site area: 307.5 sq. m. (0.076 acres)
- Freehold tenure
- Auction guide price: £95,000+
- Located in a densely populated residential area
This promising residential development site is situated adjacent to Robin Hood Apartments on Front Street, Chirton, North Shields. With granted planning permission for a spacious 5-bedroom detached house, this site offers investors and homebuilders a unique opportunity to capitalize on a well-connected area with excellent amenities nearby. Encompassing a total area of 307.5 square meters, the plot provides ample space for the development of a comfortable family home, perfect for meeting the growing demands of the local housing market.
Despite being in a major conurbation with high local crime rates, the convenience of walkable amenities including shops, restaurants, and community facilities enhances its appeal. The site is also strategically located with easy access to the A1068 and A19 roadways, making it ideal for commuting. As it is selling via auction, interested buyers should act quickly to seize this opportunity, as properties with such potential in this area are expected to attract attention. Renowned local schools receiving good ratings provide reassurance for families considering the area. Don’t miss out on this chance to create a modern residential home in a vibrant and developing community.
Land for sale in Land Adjacent To Hatfield House, Borough Road, North Shields, NE29 — £300,000 • 1 bed • 1 bath • 10890 ft²
Land for sale in Trevelyan Drive, Newbiggin Hall, Newcastle upon Tyne, Tyne and Wear, NE5 4FB, NE5 — £175,000 • 1 bed • 1 bath
Property for sale in North Shields, Tyne and Wear, NE29 — £350,000 • 1 bed • 1 bath
Land for sale in Clavering Road, Swalwell, Newcastle upon Tyne, Tyne and Wear, NE16 3JJ, NE16 — £115,000 • 1 bed • 1 bath
Land for sale in Brenkley Avenue, Shiremoor, Newcastle upon Tyne, Tyne and Wear, NE27 0PP, NE27 — £100,000 • 1 bed • 1 bath • 6904 ft²
Land for sale in 100 - 101 Greens Place, South Shields, Tyne and Wear, NE33 2AQ, NE33 — £199,000 • 1 bed • 1 bath






































