Victorian three-bed terrace near town, park and schools with private patio and renovation potential.
Victorian mid-terrace with stone façade and period features
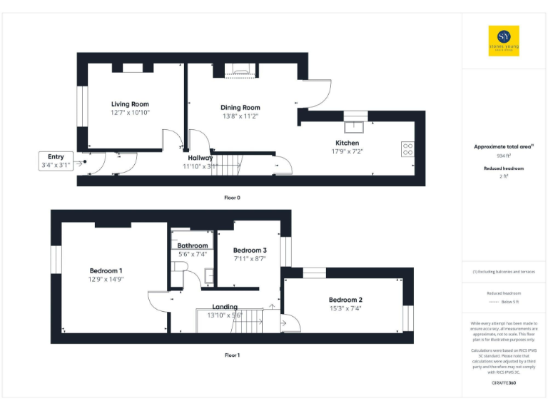
Three bedrooms, two receptions and modern three-piece bathroom
Good-sized rear patio yard with brick-built store
Planted forecourt garden; on-street parking nearby
EPC D; stone walls recorded with no added insulation (assumed)
Leasehold tenure — buyers must confirm lease details and charges
Walking distance to town, train station, parks and schools
Fast broadband and excellent mobile signal for remote working
Set on a sought-after terrace just off Waddington Road, this Victorian three-bedroom home combines period character with practical, modern updates. The property offers two reception rooms, a well-equipped kitchen and a modern three-piece bathroom — a layout that suits families and professionals alike. A planted forecourt and a private rear patio with a brick store extend living outdoors and add curb appeal.
Practical comforts include gas central heating, double glazing (install date not specified) and fast broadband and mobile signal — useful for home working and daily life. The location is a major draw: within easy walking distance of Clitheroe town centre, the train station, Brungerley Park and a range of primary and secondary schools including a top-rated grammar school.
Important practical notes: the property is leasehold and has an EPC rating of D. The stone external walls are recorded as having no added insulation (assumed), so there may be scope and cost for thermal upgrades. Some property details supplied are inconsistent on internal area; purchasers should verify the exact floor area and tenure details before proceeding.
Overall this terrace offers an attractive balance of period charm, convenient location and everyday practicality. It will suit families or buyers wanting a well-located home with potential to improve energy efficiency and personalise finishes.
3 bedroom terraced house for sale in Chester Avenue, Clitheroe, BB7 — £245,000 • 3 bed • 2 bath • 1044 ft²
3 bedroom terraced house for sale in Pimlico Road, Clitheroe, Lancashire, BB7 — £250,000 • 3 bed • 2 bath • 1505 ft²
2 bedroom terraced house for sale in Salthill Road, Clitheroe, BB7 1PE, BB7 — £170,000 • 2 bed • 1 bath • 927 ft²
2 bedroom end of terrace house for sale in Mitchell Street, Clitheroe, BB7 — £180,000 • 2 bed • 1 bath • 1163 ft²
3 bedroom cottage for sale in Pendle Road, Clitheroe, BB7 — £146,950 • 3 bed • 1 bath • 738 ft²
3 bedroom terraced house for sale in Wilson Street, Clitheroe, BB7 — £185,000 • 3 bed • 1 bath • 940 ft²






































































