**Standout Features:**
- Newly built detached bungalow, high specification
- 2 double bedrooms, ensuite shower to master
- Spacious open plan living/dining area with modern kitchen
- Multi-zone underfloor heating and air source heat pump
- Off-street parking for two vehicles
- Attractive rear garden
- Located in the heart of Thorverton village
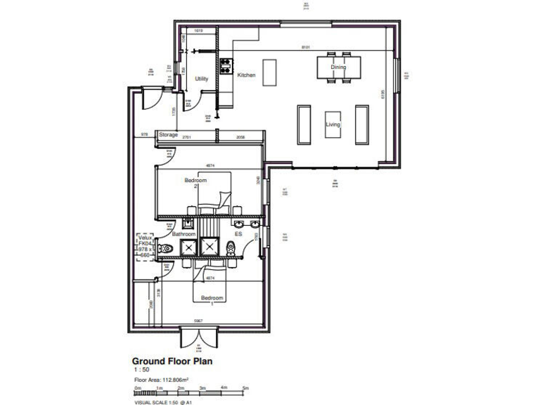
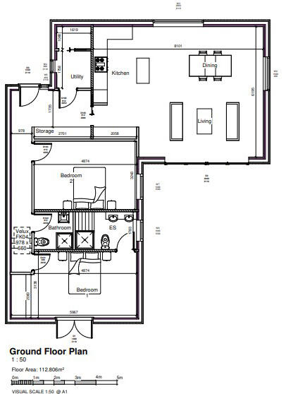
Embrace modern living in this stunning newly-built detached bungalow, offering 112m² of expertly designed space. Featuring two generous double bedrooms, including a master with an ensuite, this property combines comfort with contemporary style. The heart of the home boasts a spacious open plan lounge/dining area that seamlessly flows into a sleek modern kitchen, perfect for family gatherings or entertaining friends.
Set within the charming village of Thorverton, enjoy easy access to local amenities, including pubs, shops, and schools. This bungalow is built to an exceptionally high thermal performance standard, equipped with multi-zone underfloor heating and an air source heat pump, ensuring energy efficiency year-round. Outside, you will find a private rear garden and designated parking for two vehicles, an added convenience in this serene setting.
Although currently under construction with an expected completion in six months, this chain-free property presents a unique opportunity to secure a modern home in a peaceful environment. Don't miss out on the chance to own a slice of rural living in the desirable Exe Valley—where nature meets modern convenience. Envision yourself in a space that offers both comfort and a sense of community, and act fast, as homes in this area are highly sought after!
3 bedroom detached house for sale in Thorverton, Exeter, EX5 — £550,000 • 3 bed • 2 bath • 1382 ft²
4 bedroom detached bungalow for sale in Blackhorse Lane, Blackhorse, Exeter, EX5 — £775,000 • 4 bed • 2 bath • 1111 ft²
3 bedroom bungalow for sale in Ash Mill, South Molton, Devon, EX36 — £625,000 • 3 bed • 2 bath • 698 ft²
2 bedroom bungalow for sale in Church Lane, Cheriton Bishop, Exeter, EX6 — £450,000 • 2 bed • 2 bath • 859 ft²
2 bedroom bungalow for sale in Dinneford Street, Thorverton, Exeter, EX5 — £400,000 • 2 bed • 1 bath • 835 ft²
3 bedroom detached bungalow for sale in Bardsey Orchard, Sampford Peverell, EX16 — £539,995 • 3 bed • 2 bath










































