**Standout Features:**
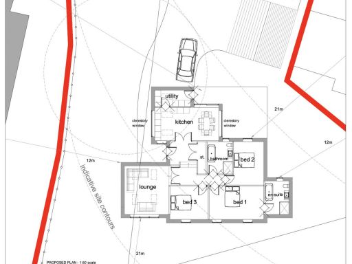
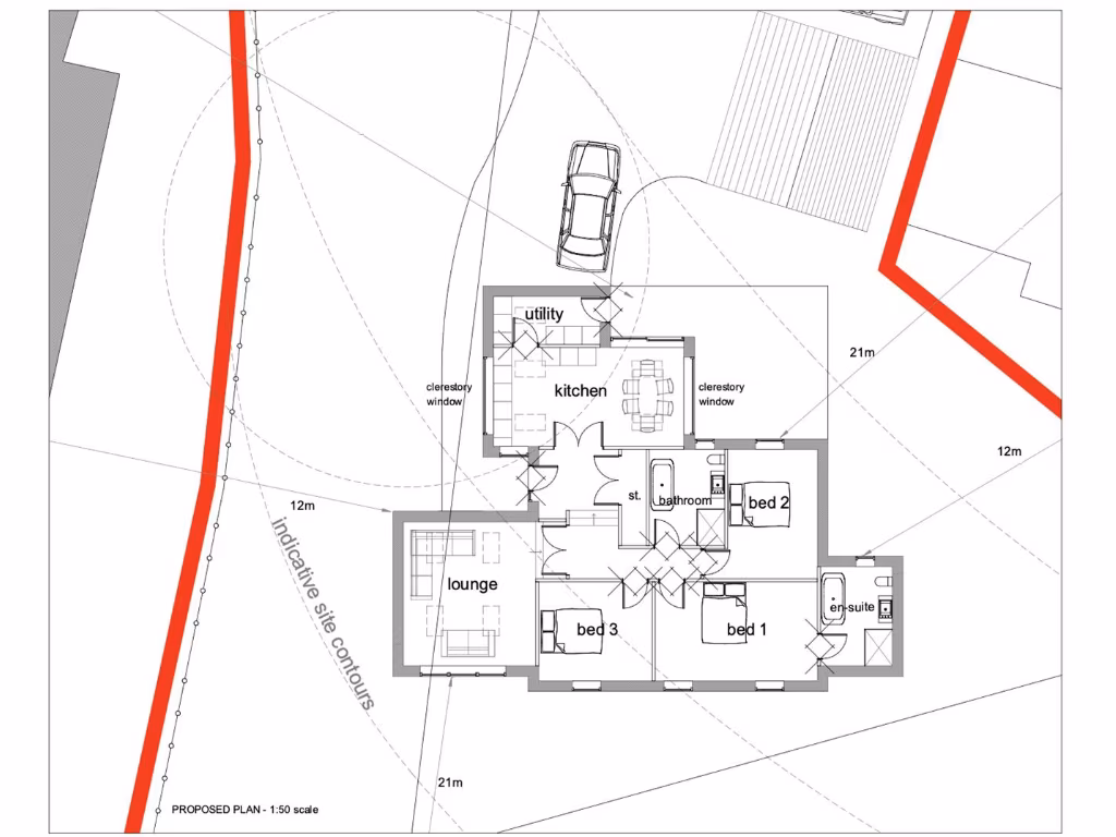
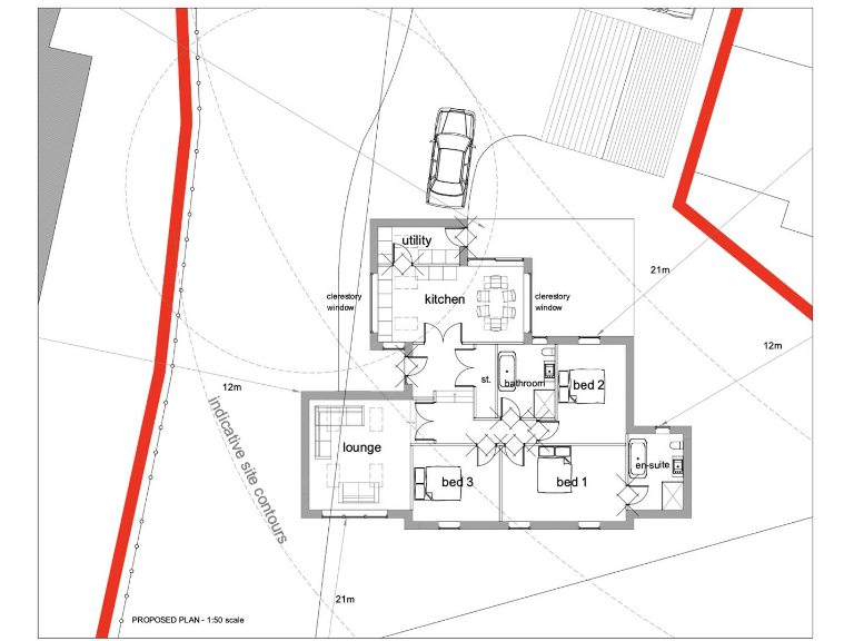
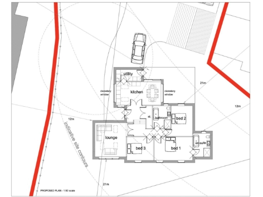
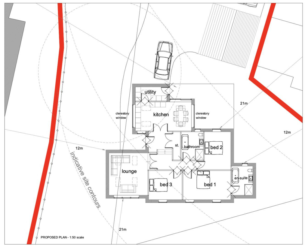
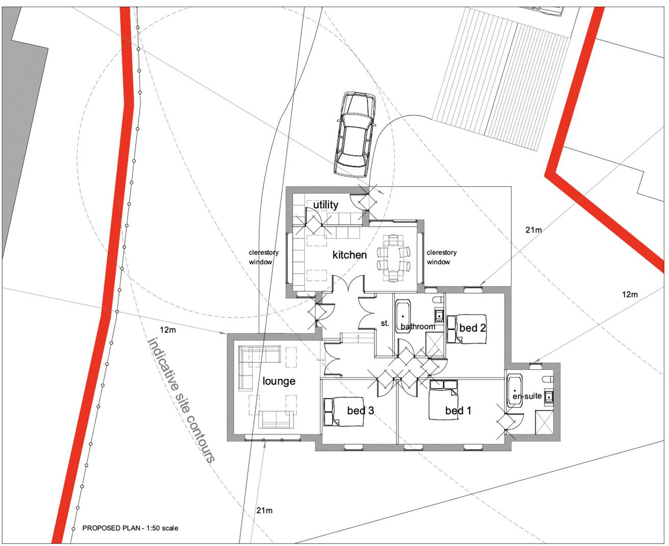
- Approved planning permission for a modern three-bedroom bungalow (Reference: 23/0854).
- Large plot of approximately 0.4 acres with the option to acquire an additional 1.8 acres for equestrian or landscaping use.
- Located in the peaceful village of How Mill, with easy access to Carlisle and Brampton.
- Excellent transport links and proximity to schools, including top-rated institutions.
- Off-street parking space available.
- Low crime rate in an affluent area.
**Potential Concerns:**
- Responsibility for installing services such as water, drainage, and electricity.
- Additional requirements include planting and maintaining 5 apple trees to satisfy planning conditions.
- No build covenant applies to the adjoining 1.8-acre field.
This idyllic building plot provides an incredible opportunity to create your dream home in the tranquil countryside of How Mill. With recent planning permission for a spacious three-bedroom single-story dwelling, potential buyers can design a comfortable family home complete with an expansive garden area. The additional paddock offers flexibility for outdoor use, whether for horses or landscaping, presenting a unique value proposition. Nestled within a tight-knit community, this area boasts low crime and excellent schools, making it perfect for families seeking a serene lifestyle. Don’t miss out on the chance to invest in a property with both immediate and long-term potential—start envisioning your future here today!
7 bedroom barn conversion for sale in How Mill, Brampton, CA8 — £399,000 • 7 bed • 6 bath • 3042 ft²
Residential development for sale in How Mill, Brampton, CA8 — £399,000 • 7 bed • 6 bath • 3042 ft²
Plot for sale in Lanercost Road, Brampton, CA8 — £250,000 • 4 bed • 3 bath
Land for sale in The Green, Wreay, CA4 — £250,000 • 4 bed • 3 bath
Land for sale in Hallbankgate, Brampton, Cumbria, CA8 — £120,000 • 1 bed • 1 bath
Land for sale in Hallbankgate, Brampton, Cumbria, CA8 — £170,000 • 1 bed • 1 bath






































