Bright family-ready home close to schools, transport and seafront.
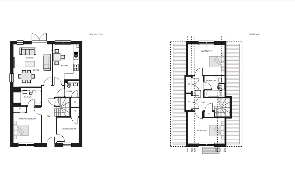
Approx. 1,350 sq ft four-bedroom detached home
This detached four-bedroom home in The Bruce offers a modern, family-focused layout across approximately 1,350 sq ft. The ground floor principal bedroom includes a four-piece en-suite and fitted wardrobe, plus a flexible ground-floor second bedroom ideal for a home study. Upstairs there are two further double bedrooms and a family bathroom, with generous storage throughout.
New-build specification includes a Jackton Moore kitchen with integrated appliances, an open-plan dining area and contemporary living room with French doors to the garden. Fast broadband and excellent mobile signal support home working and streaming, while selected plots enjoy views across to Arran and incentives are available on certain plots.
Practical positives include freehold tenure, a private garden and straightforward road and rail links to Glasgow and nearby airports. Local schooling and village amenities are strong for families, and the coastal location offers easy access to golf, shops and craft studios.
Important considerations: the development sits within an area recorded as very deprived and the immediate local classification indicates a higher proportion of social renters; buyers should weigh local socio-economic context. Views and incentives apply only to selected plots, and this is a new build rather than an established period property.
4 bedroom detached house for sale in Sharlee Wynd, West Kilbride, KA23 — £325,000 • 4 bed • 3 bath • 1304 ft²
4 bedroom detached house for sale in 2 Ronnie McNicol Place, Saltcoats, KA21 6BU, KA21 — £244,000 • 4 bed • 2 bath
5 bedroom detached house for sale in Cubrieshaw Park, West Kilbride, North Ayrshire, KA23 — £600,000 • 5 bed • 5 bath • 2936 ft²
4 bedroom detached house for sale in Mayfields
High Road,
Saltcoats,
KA21 — £275,000 • 4 bed • 1 bath • 1581 ft²
4 bedroom detached house for sale in Annick Grange, Crompton Way, Newmoor, Irvine, Ayrshire, KA12 0YF, KA12 — £285,000 • 4 bed • 1 bath • 1569 ft²
4 bedroom detached house for sale in Snowdon Gait,
Snowdon Terrace,
West Kilbride,
Ayrshire,
KA23 9HN, KA23 — £339,000 • 4 bed • 1 bath • 365 ft²






































































































































































































