Chain-free third-floor flat with parking near Central and Piccadilly lines.
Almost 800 sq ft open-plan living with private balcony
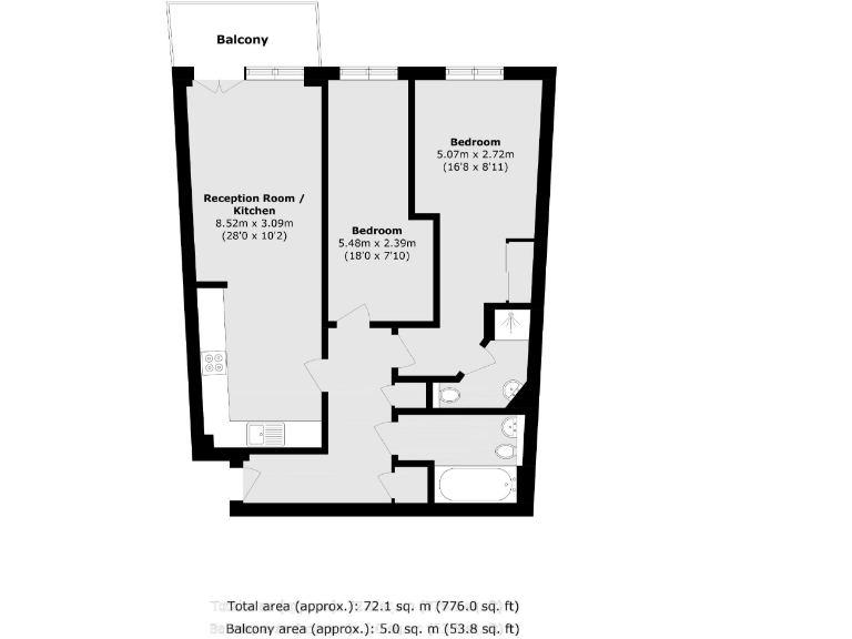
Bright, modern and ready to move into, this third-floor two-bedroom apartment offers almost 800 sq ft of open-plan living with a private balcony and allocated off-street parking. Positioned within half a mile of Hanger Lane (Central line) and Park Royal (Piccadilly line), the home suits a professional couple or a landlord seeking city rental demand. The sale is chain-free and the lease has 230 years remaining, giving long-term security for buyers.
The flat is in a contemporary purpose-built block with double glazing and contemporary finishes throughout. Two bathrooms and an open-plan reception with integrated kitchen make day-to-day living straightforward; recessed lighting and hardwood-style floors keep maintenance low. Travel connections are strong with the A40 and North Circular nearby for drivers.
Buyers should note the running costs: a high annual service charge (£4,446) and a significant ground rent (£797 pa). Heating is by electric room heaters rather than gas central heating, which can influence energy bills. The immediate area is classified as very deprived with above-average crime statistics — important factors to consider for families and some investors.
Overall this apartment offers sensible size, modern presentation and strong transport links, balanced by notable service costs and local area constraints. It will appeal most to first-time buyers wanting a low-maintenance city home or investors seeking a lettable, chain-free purchase with a long lease.
2 bedroom apartment for sale in Lakeside Drive, Park Royal, London, NW10 — £485,000 • 2 bed • 1 bath • 732 ft²
2 bedroom flat for sale in Abbeyfields Close, Acton, NW10 — £350,000 • 2 bed • 1 bath • 760 ft²
1 bedroom flat for sale in Lapis Close, Acton, NW10 — £300,000 • 1 bed • 1 bath • 448 ft²
2 bedroom flat for sale in Lakeside drive, Park Royal, London, NW10 — £475,000 • 2 bed • 2 bath • 896 ft²
2 bedroom apartment for sale in Luma Apartments, Park Royal, NW10 — £350,000 • 2 bed • 1 bath • 695 ft²
2 bedroom flat for sale in Lakeside Drive, Park Royal, NW10 — £499,950 • 2 bed • 2 bath • 765 ft²






























