Freehold plot with permission for six family homes, near Edinburgh commuter links.
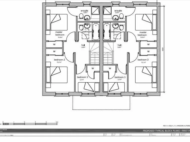
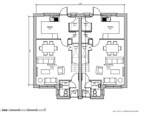
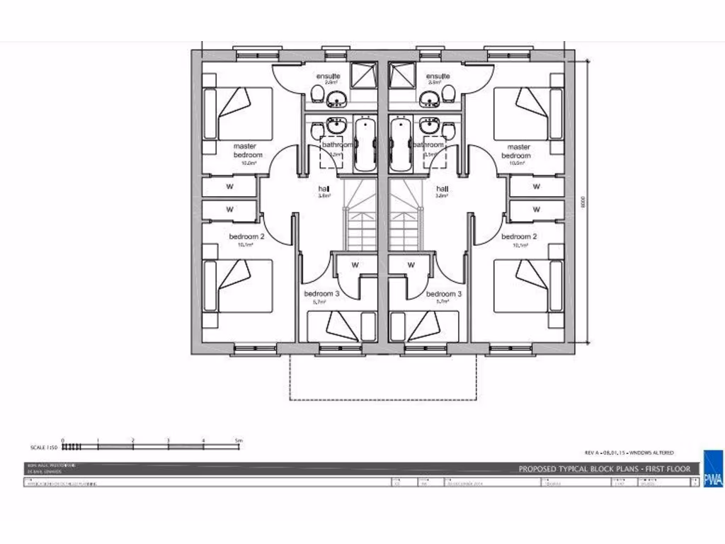
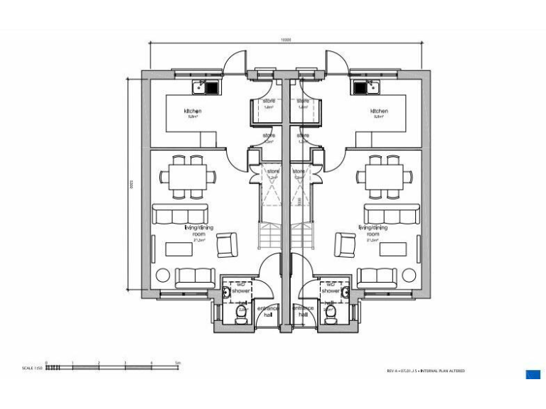
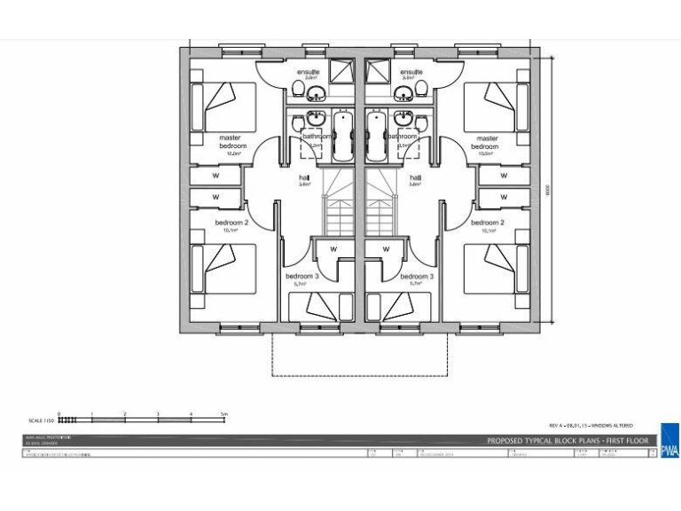
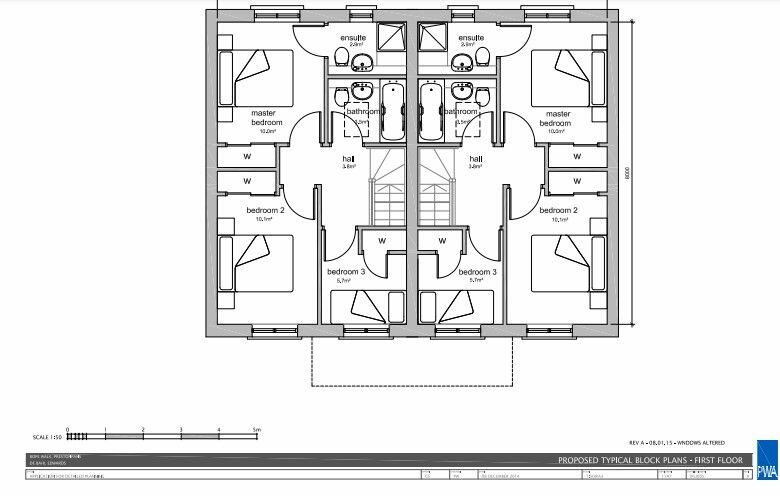
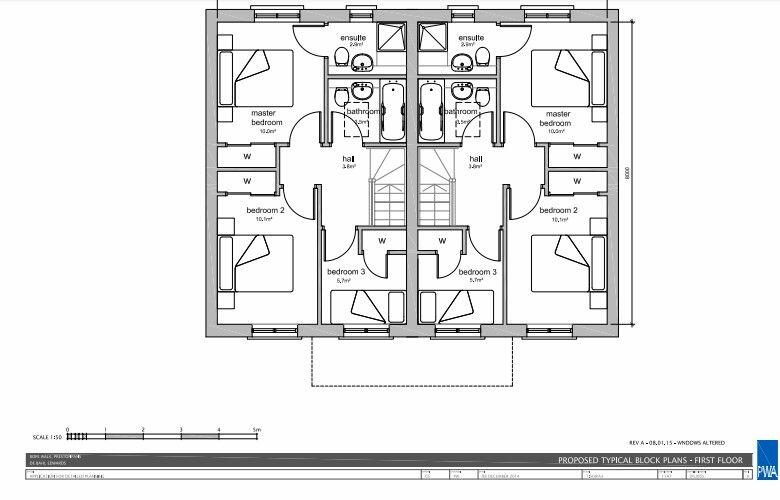
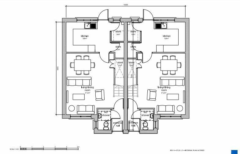
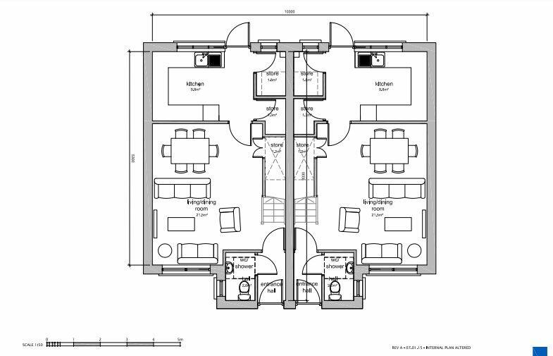
Full planning permission for 6 x 3-bed semi-detached houses
A ready-to-build residential plot with full planning permission for six 3-bedroom semi-detached homes (East Lothian Council ref: 20/00781/P). The freehold site sits centrally in Prestonpans, about 10 miles east of Edinburgh, offering quick commuter rail and bus links and local amenities within walking distance.
This is a niche development opportunity priced at £195,000 with a full technical pack available. Broadband is reported fast and mobile signal average; flood risk is nil. The layout and planning target family-style accommodation—each house with garden space and off-street provision as per approved drawings.
Notable practical points: mains services are believed to run close to the site but connections are not guaranteed. The purchaser will be responsible for installing drainage and securing power/water connections, and should review the technical pack and carry out their own site surveys. The wider area scores high on deprivation indices, which may affect tenant/demand profiles and values in the short term.
This plot suits a small developer or investor able to manage on-site infrastructure works and seeking a planning-permitted scheme near Edinburgh commuter routes. It offers development upside through completion of family homes in a market with steady commuter demand, but requires capital and hands-on delivery to realise value.
Plot for sale in Preston Avenue, Prestonpans, East Lothian, EH32 — £42,500 • 3 bed • 1 bath
Commercial development for sale in 2 Fraser Avenue, Edinburgh, EH5 2AE, EH5 — £145,000 • 1 bed • 1 bath
Residential development for sale in Grey Barn, Midlothian, Pathhead, EH37 — £360,000 • 1 bed • 1 bath
Residential development for sale in Rear of 73 - 77 High Street, Tranent , EH33 — £325,000 • 1 bed • 1 bath
Plot for sale in Plot - Mill Wynd, Tynebank Road, Haddington, East Lothian, EH41 4DW, EH41 — £175,000 • 4 bed • 4 bath
Land for sale in Gosford Road, Longniddry, East Lothian, EH32 — £375,000 • 4 bed • 4 bath • 2982 ft²


































