Chain-free bungalow with extension potential and excellent transport links.
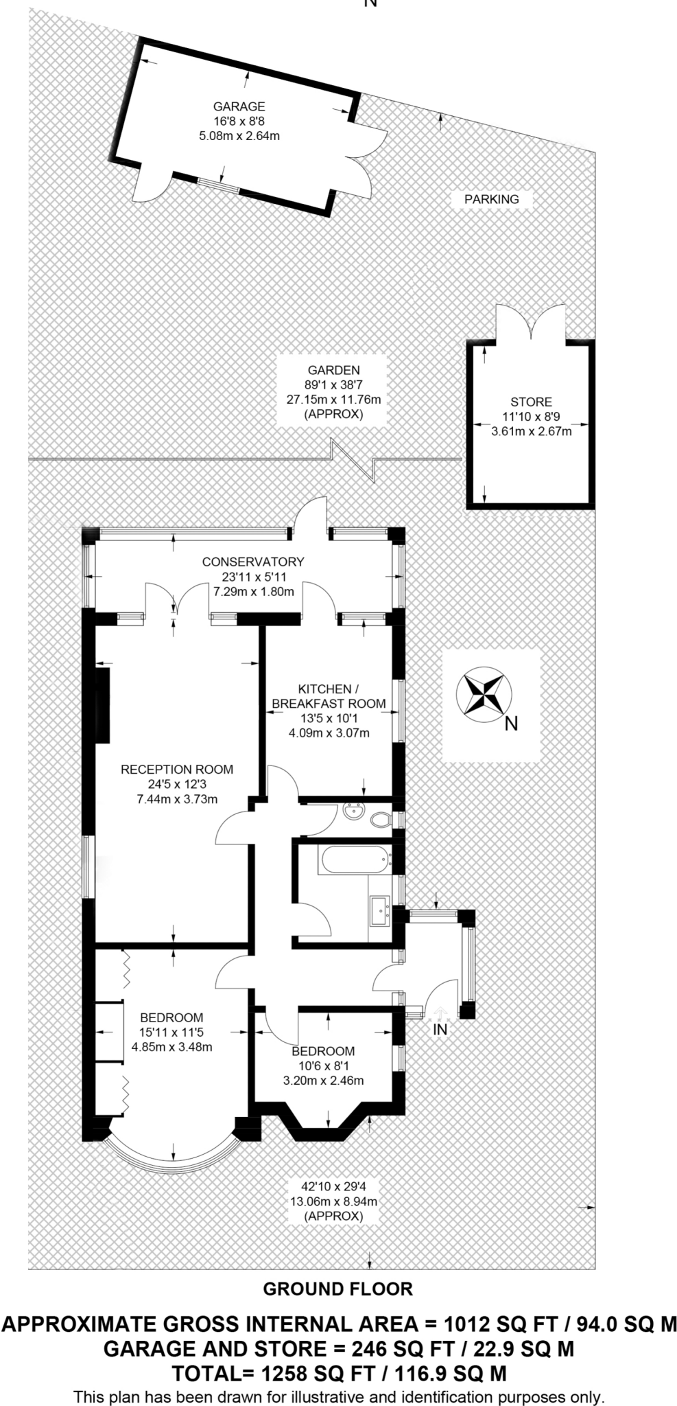
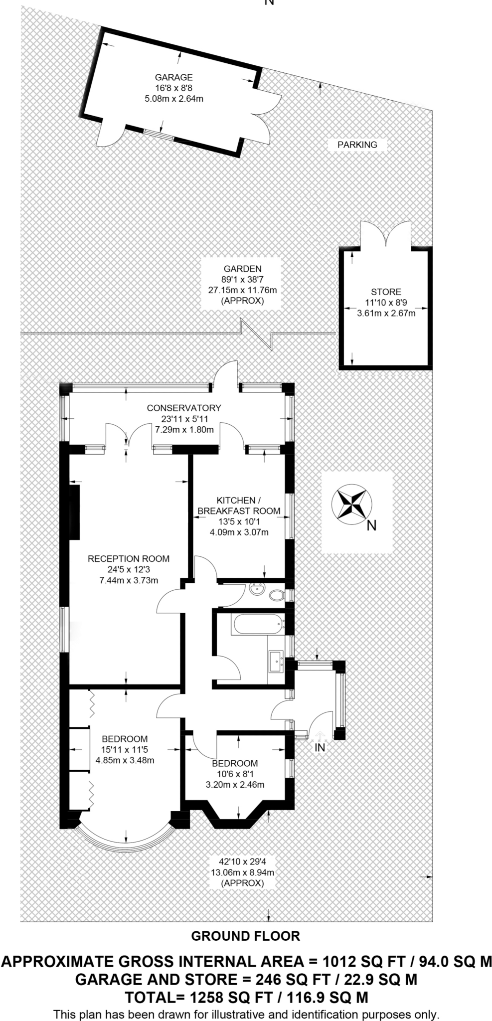
Detached two-bedroom bungalow on a large corner plot
Set on a generous corner plot in a well-regarded residential road of Berrylands, this detached two-bedroom bungalow offers roomy, single-storey living with clear potential for enlargement. The current layout includes a double reception room, eat-in kitchen and conservatory, and benefits from garage parking plus a garden storage room—useful for practical family storage or garden tools. Its location is a strong asset: Malden Manor station is within walking distance for fast links to London Waterloo, the A3 is nearby, and both New Malden and Surbiton amenities are easily reached.
The house is chain-free and Freehold, making it attractive for buyers wanting a straightforward purchase. There is scope to extend or redevelop subject to planning (stpp), so buyers seeking value-add potential will find this plot especially appealing. Local schools rated Good and Outstanding are close by, supporting a family-focused purchase.
Buyers should note this is a period property (c.1930–1949) with solid brick walls assumed to have no cavity insulation, and the double glazing install date is unknown. The garden appears neglected and will need landscaping; the property will suit someone prepared to update and modernise to realise its full potential. There is one bathroom and the accommodation is single-storey, so the layout suits downsizers or those wanting ground-floor living but limits larger-family space without extension.
3 bedroom bungalow for sale in Grand Avenue, Surbiton, KT5 — £585,000 • 3 bed • 1 bath • 895 ft²
3 bedroom detached bungalow for sale in Greenfield Avenue, Surbiton, KT5 — £725,000 • 3 bed • 1 bath • 871 ft²
2 bedroom detached bungalow for sale in Raeburn Avenue, Surbiton, KT5 — £700,000 • 2 bed • 2 bath • 1110 ft²
3 bedroom detached bungalow for sale in Grand Avenue, Surbiton, KT5 — £899,950 • 3 bed • 2 bath • 1390 ft²
3 bedroom detached bungalow for sale in Ruxley Close, West Ewell, Epsom, KT19 — £650,000 • 3 bed • 1 bath • 814 ft²
3 bedroom bungalow for sale in Knightwood Crescent, New Malden, KT3 — £749,950 • 3 bed • 1 bath • 1323 ft²


























































