**Standout Features:**
- Unique converted chapel, rich in period features
- Recently renovated, high-end finish throughout
- Spacious open-plan living/dining kitchen with integrated appliances
- Two double bedrooms
- Secure intercom access & allocated parking
- Leasehold with 959 years remaining
**Potential Downsides:**
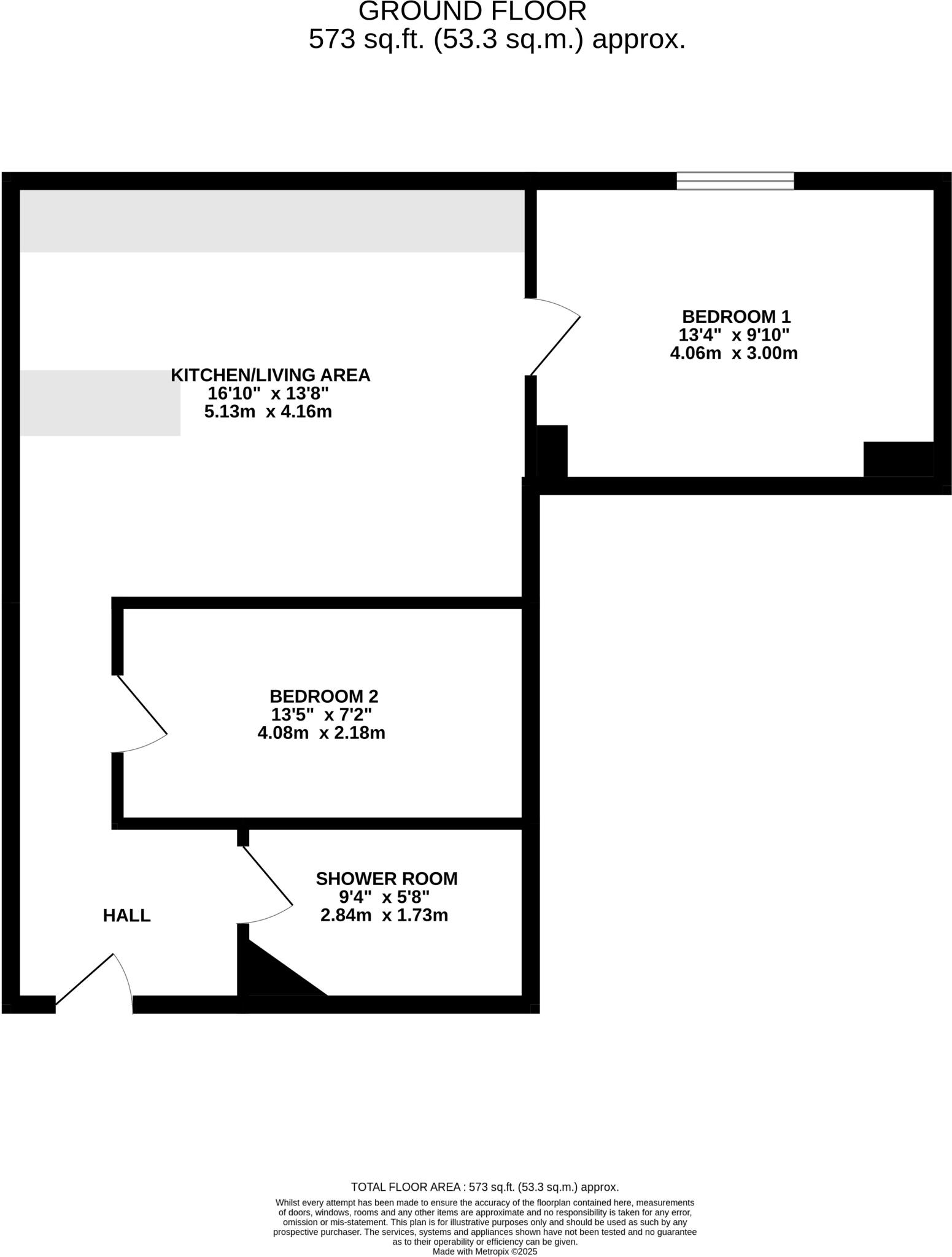
- Small square footage (573 sq ft)
- Higher annual service charge of £1327.45
Step into a beautifully presented, ground-floor apartment that seamlessly merges the charm of a historic chapel with modern luxury. Finished to a high standard, this residence features magnificent high ceilings, double-glazed arched windows, and a contemporary open-plan living/dining kitchen equipped with integrated appliances and a convenient breakfast bar. With two spacious double bedrooms, including a main bedroom with stylish decor, and a lavish three-piece shower room with underfloor heating, this apartment is ideal for first-time buyers looking for a unique living space.
Nestled in a serene backwater up in Yeadon, this property offers the best of both worlds—quietude while being just minutes away from local amenities, transport links, and the stunning Nunroyd Park. The allocated parking adds an extra layer of convenience. While the property does come with a sizable service charge, the exceptional condition and unique nature of this home make it a compelling investment. Don’t miss the opportunity to make this exclusive and character-rich apartment your own!
2 bedroom flat for sale in Trinity View, Bryan Street, Farsley, Pudsey, Leeds, LS28 — £190,000 • 2 bed • 1 bath • 628 ft²
1 bedroom apartment for sale in 6 Wesley Court, Park View, Yeadon, Leeds, West Yorkshire, LS19 — £95,000 • 1 bed • 1 bath • 452 ft²
1 bedroom flat for sale in Brookland House, Harper Lane, Yeadon, Leeds, West Yorkshire, LS19 — £209,950 • 1 bed • 1 bath • 633 ft²
2 bedroom apartment for sale in Booth Street, Burley In Wharfedale, LS29 — £175,000 • 2 bed • 2 bath • 741 ft²
3 bedroom flat for sale in Broadgate Lane, Horsforth, Leeds, LS18 — £200,000 • 3 bed • 1 bath • 709 ft²
2 bedroom apartment for sale in Bolton Grange, Yeadon, Leeds, LS19 — £140,000 • 2 bed • 1 bath • 473 ft²






















































