**Standout Features:**
- Modern one-bedroom flat on the 26th floor with spectacular city views
- First-class residents' amenities including a gym and communal roof terraces
- Prime location 0.5 miles from Canary Wharf Jubilee Line station
- Contemporary open-plan layout with large windows and a private balcony
- Leasehold property with an EPC rating of B
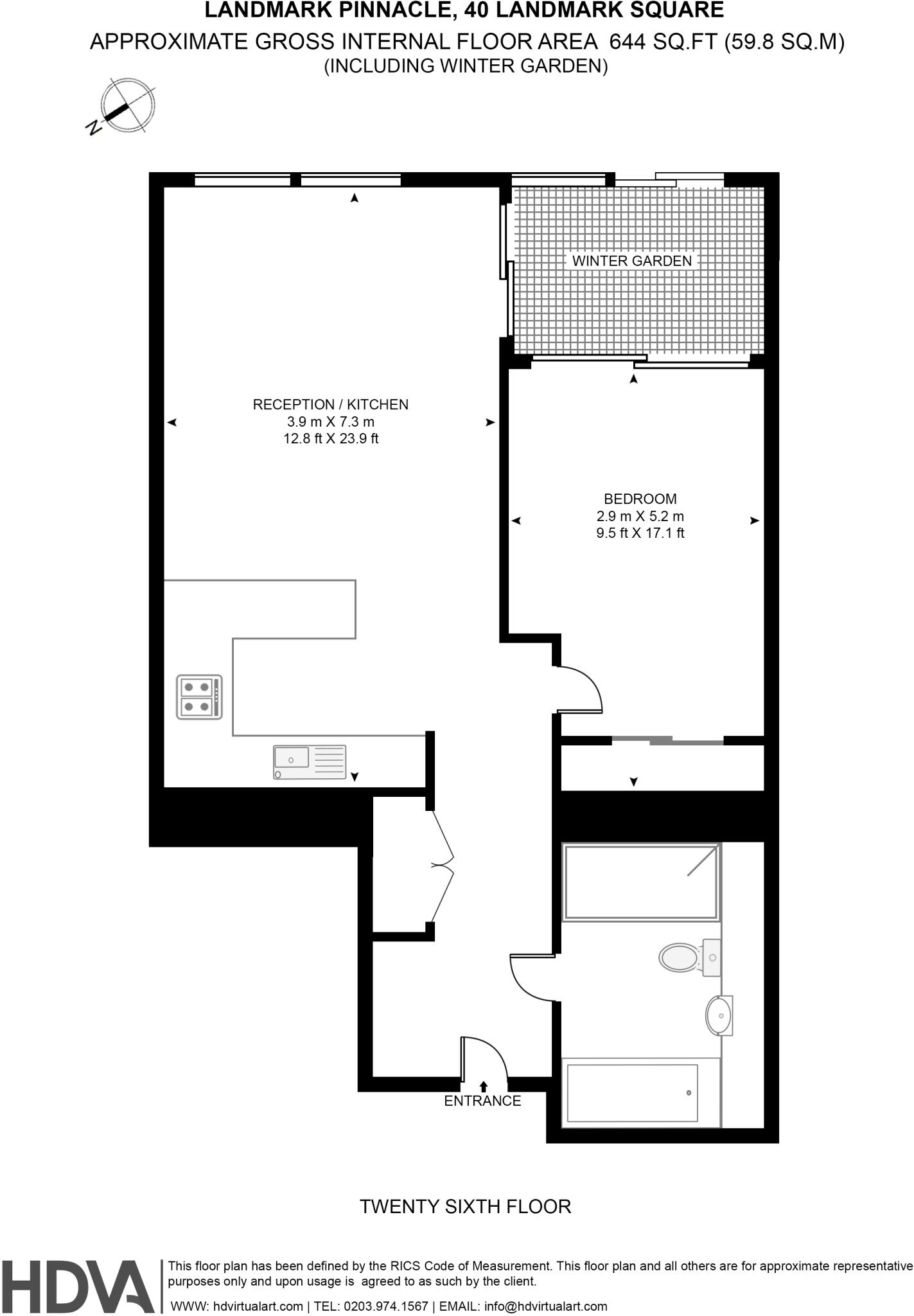
This stunning one-bedroom apartment in the prestigious Landmark Pinnacle development offers not only luxury living but also breathtaking views of London’s skyline from the 26th floor. With 644 sq ft of thoughtfully designed open-plan space, it features floor-to-ceiling windows that flood the home with natural light, a modern kitchen with integrated appliances, and a tranquil bedroom with built-in storage. Step out onto your private balcony for a perfect retreat amidst the hustle and bustle of city life.
Residents benefit from outstanding amenities, including a first-class gym, 24-hour concierge service, and inviting communal roof terraces perfect for socializing. Positioned in the heart of Canary Wharf, this apartment places you moments away from upscale shops, diverse dining options, and vibrant nightlife. Commute easily with excellent transport links, including the nearby Jubilee Line, DLR, and the forthcoming Elizabeth Line.
While current heating and cooling systems are delivered via a communal system with separate charges, the apartment offers a prime investment opportunity in a highly sought-after area with significant rental potential, especially appealing to first-time buyers and young professionals looking for a modern urban lifestyle. Don’t miss your chance to make this exclusive property your home!
1 bedroom flat for sale in Landmark Pinnacle, Marsh Wall E14 — £635,000 • 1 bed • 1 bath • 596 ft²
1 bedroom flat for sale in Marsh Wall London E14 — £715,000 • 1 bed • 1 bath • 644 ft²
1 bedroom flat for sale in Landmark Pinnacle, Marsh Wall E14 — £635,000 • 1 bed • 1 bath • 532 ft²
1 bedroom flat for sale in Landmark Pinnacle, Marsh Wall E14 — £765,000 • 1 bed • 1 bath • 725 ft²
2 bedroom flat for sale in Landmark Pinnacle, Marsh Wall E14 — £1,150,000 • 2 bed • 2 bath • 862 ft²
1 bedroom apartment for sale in Landmark Pinnacle, Marsh Wall E14 — £690,000 • 1 bed • 1 bath • 596 ft²










































































