South-facing deck and park facilities close to the Broads.
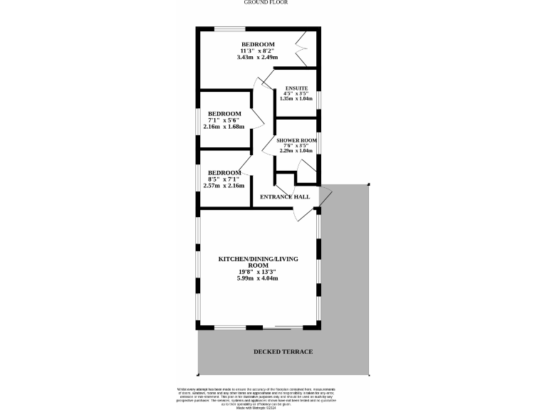
Three bedrooms with master ensuite and shower room
Set on Cherry Tree Holiday Park, this compact three-bedroom park home offers contemporary, open-plan living and a large south-facing deck for outdoor relaxation. High-quality fixtures and an ensuite to the master bedroom give a finished, holiday-ready feel, while on-site leisure facilities (indoor and outdoor pools) add rental and owner-enjoyment potential.
Important practical points affect suitability: the property is leasehold with only 18 years remaining and an unusually high ground rent of £7,000 per year. Many mortgage lenders will refuse loans on this lease length, limiting purchase to cash buyers or specialist lenders; buyers should expect additional legal and re-financing complexity. Broadband speeds are very slow and the park is closed for December (11-month season), which may affect holiday-let income.
For buyers who value location and park amenities over traditional ownership security, the home’s proximity to the Broads National Park and dedicated parking make it an attractive holiday base or short-term rental. Prospective purchasers should verify lease terms, service charges and lending options with their solicitor before committing.
3 bedroom park home for sale in Mill Road, Burgh Castle, Great Yarmouth, NR31 — £50,000 • 3 bed • 1 bath • 442 ft²
2 bedroom park home for sale in Butt Lane, Burgh Castle, NR31 — £30,000 • 2 bed • 2 bath
2 bedroom park home for sale in Mill Road, Burgh Castle, Great Yarmouth, NR31 — £35,000 • 2 bed • 1 bath • 468 ft²
3 bedroom park home for sale in Butt Lane, Burgh Castle, NR31 — £25,000 • 3 bed • 2 bath
2 bedroom park home for sale in Butt Lane, Burgh Castle, NR31 — £34,995 • 2 bed • 2 bath
2 bedroom park home for sale in Butt Lane, Burgh Castle, NR31 — £15,000 • 2 bed • 2 bath






























































































