Well-presented family home with large south-facing garden and generous garage.
Extended three-bedroom semi-detached home with conservatory
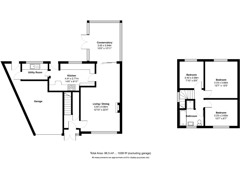
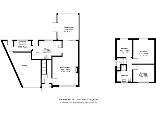
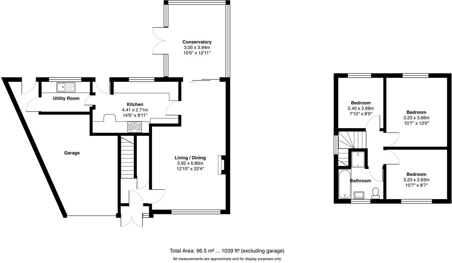
This extended three-bedroom semi-detached house on Sutherland Drive is arranged over two floors and suits a growing family seeking ready-to-move-in accommodation. The ground floor offers a living room with patio access to a conservatory, a modern fitted kitchen with breakfast area, useful utility room and a downstairs cloakroom. Upstairs are three well-proportioned bedrooms and a refitted bathroom with separate shower cubicle.
Outside the property benefits from a generous attached garage, tiered tarmac driveway for off-street parking and a private, south-facing rear garden that is maturely planted and offers excellent outdoor space for children and entertaining. Central heating and double glazing are fitted throughout, making the home comfortable year-round.
Practical considerations: the EPC is rated D and cavity walls likely have no added insulation (assumed), so there is scope to improve energy performance and reduce bills. Broadband availability is reported as slow which may affect home-working; mobile signal is strong. The property was built mid-20th century (1950s–1960s), so buyers should note the age when considering longer-term maintenance or upgrades.
Located on a quiet cul-de-sac on the edge of Wombourne village, the house sits close to good local amenities, green walking routes and a mix of primary and secondary schools (Ofsted ratings vary). This home presents straightforward family living with immediate usability and clear potential to personalise and improve energy efficiency over time.
3 bedroom semi-detached house for sale in 44 Sandringham Road, Wombourne, Wolverhampton, WV5 — £287,000 • 3 bed • 1 bath • 852 ft²
3 bedroom semi-detached house for sale in 34 Rennison Drive, Wombourne, Wolverhampton, WV5 — £350,000 • 3 bed • 2 bath • 1111 ft²
3 bedroom semi-detached house for sale in Vicarage Road, Bilston, WV14 — £290,000 • 3 bed • 1 bath • 1276 ft²
3 bedroom semi-detached house for sale in Hollybush Lane, Wolverhampton, West Midlands, WV4 — £250,000 • 3 bed • 1 bath • 895 ft²
3 bedroom semi-detached house for sale in Clee View Road, Wombourne, WV5 — £279,950 • 3 bed • 1 bath • 628 ft²
3 bedroom semi-detached house for sale in 77 Wombourne Park, Wombourne, WV5 — £285,000 • 3 bed • 1 bath • 961 ft²






























































