Family terrace with long west garden and off-road parking, ripe for modernisation.
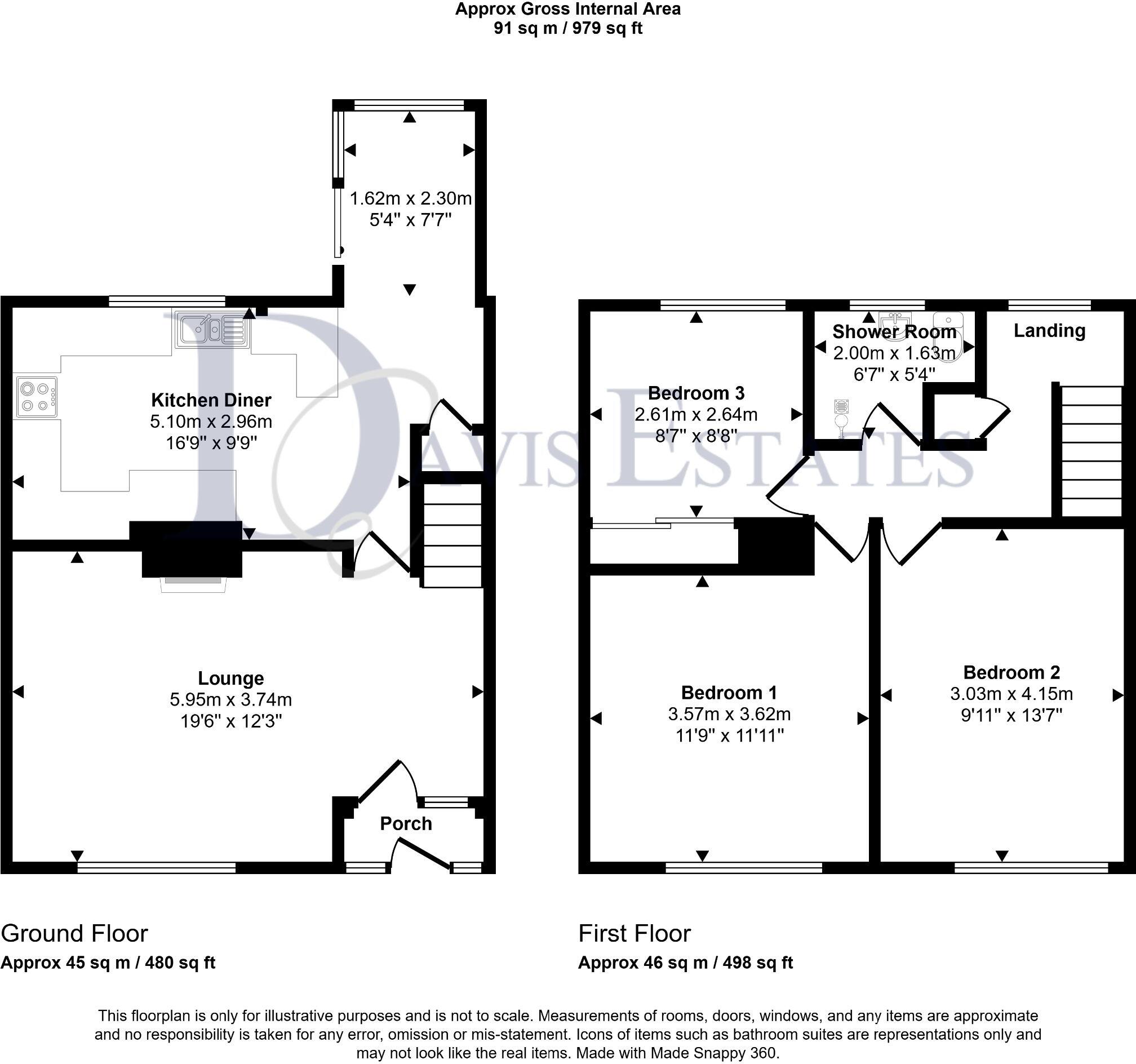
Chain free freehold three-bedroom mid-terrace, approx. 979 sq ft
A spacious three-bedroom mid-terraced house offered chain free on a freehold title, set on Petersfield Avenue in Harold Hill. The property has a long westerly-facing rear garden of approximately 55' and off-road parking to the front, plus an extended kitchen/diner and a large lounge — a practical family layout across a 979 sq ft footprint. Gas central heating and double glazing are already installed.
The interior shows clear signs of mid‑20th century styling and will benefit from cosmetic modernisation. Rooms are serviceable but dated — wood panelling, floral wallpaper and older bathroom and kitchen fittings remain. This creates scope for value uplift after refurbishment, particularly given the size of garden and parking provision.
Location is convenient for local shops, bus links and several primary and secondary schools (most rated Good by Ofsted). Note the wider area is classified as a hard-pressed, hampered neighbourhood with higher deprivation levels; crime is average. Practical points: Council Tax Band C, awaiting EPC, and the property is sold freehold and chain free.
This home will appeal to families seeking space and outside amenity with potential to modernise, or investors planning a straightforward refurbishment. A personal viewing is recommended to assess the scope of works and the house’s potential fully.
3 bedroom terraced house for sale in Petersfield Avenue, Harold Hill, Romford, RM3 — £425,000 • 3 bed • 1 bath • 928 ft²
3 bedroom terraced house for sale in Amersham Close, Romford, RM3 — £450,000 • 3 bed • 1 bath • 749 ft²
3 bedroom terraced house for sale in Dagnam Park Drive, Harold Hill, RM3 — £300,000 • 3 bed • 2 bath • 969 ft²
3 bedroom terraced house for sale in Elm Park Avenue, Elm Park, Essex, RM12 4PE, RM12 — £415,000 • 3 bed • 1 bath
3 bedroom end of terrace house for sale in Tring Gardens, Harold Hill, RM3 — £425,000 • 3 bed • 1 bath • 862 ft²
3 bedroom terraced house for sale in Chatteris Avenue, Romford, RM3 — £400,000 • 3 bed • 1 bath • 969 ft²


















































